Emil Neckelmanns Vej 15G, st. tv., Fraugde
5220 Odense SØ

Sagsnr. 30953

Ejendomstype

Etageareal

Energiklasse

124 m²

A2010

Årlig leje

Leje pr. m²

Depositum

Årlig driftsudgift

Årlig driftsudgift pr. m²

102.300 kr.

825 kr.

51.150 kr.

4.956 kr.

40 kr.

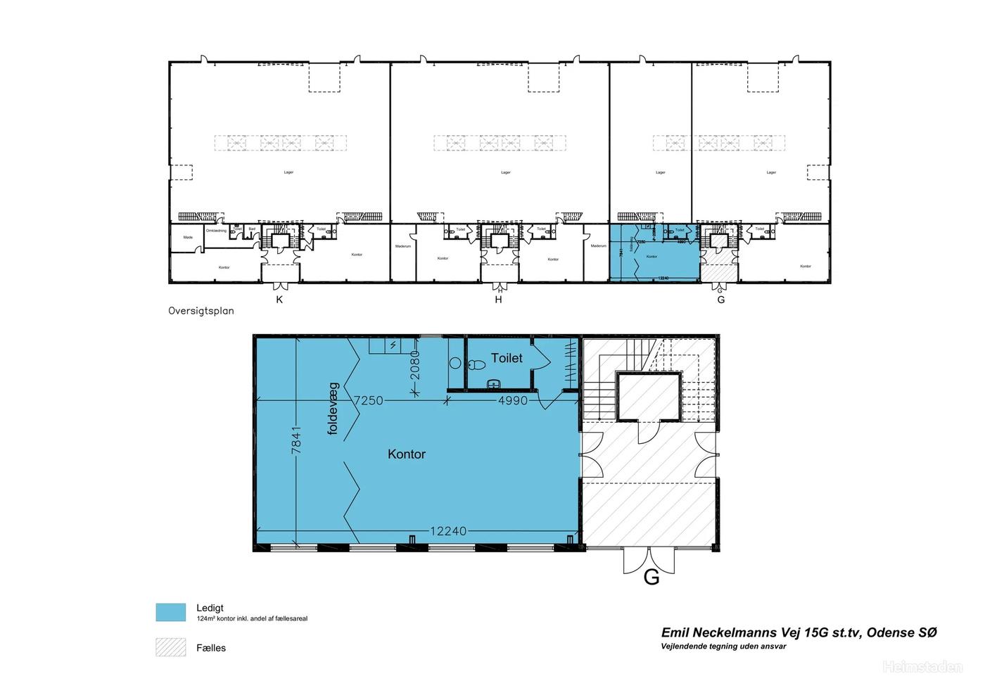
Nydeligt kontorlejemål i Tietgenbyen

Lejemålet ligger på Emil Neckelmanns Vej 15G i den sydøstlige del af Odense, tæt på det fynske motorvejsnet.

Lejemålet andrager 124 m² og fremstår fint og nydeligt.

Lejemålet entreres via et præsentabelt fælles indgangsparti med højt til loftet og store vinduespartier.

Lejemålet består af et åbent kontorrum samt et stort møderum med foldevæg. Derudover er der mindre tekøkken og toilet.

Planløsningen er rummelig og fleksibel og passer til mange typer virksomheders behov.

Ejendommens udenomsarealer er udlagt til parkering til rådighed for ejendommens brugere.

Læs mere

Vil du vide mere?

Christopher Bøje

cbo@nordicals.dk

+4551271918

Kongensgade 27, 1. sal, 5000 Odense C

+4566138060

5000@nordicals.dk

Besøg vores mæglerside

Lignende ejendomme

Til top