Emil Neckelmanns Vej 15H, st. tv., Fraugde
5220 Odense SØ

Sagsnr. 30955

Ejendomstype

Etageareal

Energiklasse

123 m²

A2010

Årlig leje

Leje pr. m²

Depositum

Årlig driftsudgift

Årlig driftsudgift pr. m²

101.681 kr.

825 kr.

50.841 kr.

5.196 kr.

42 kr.

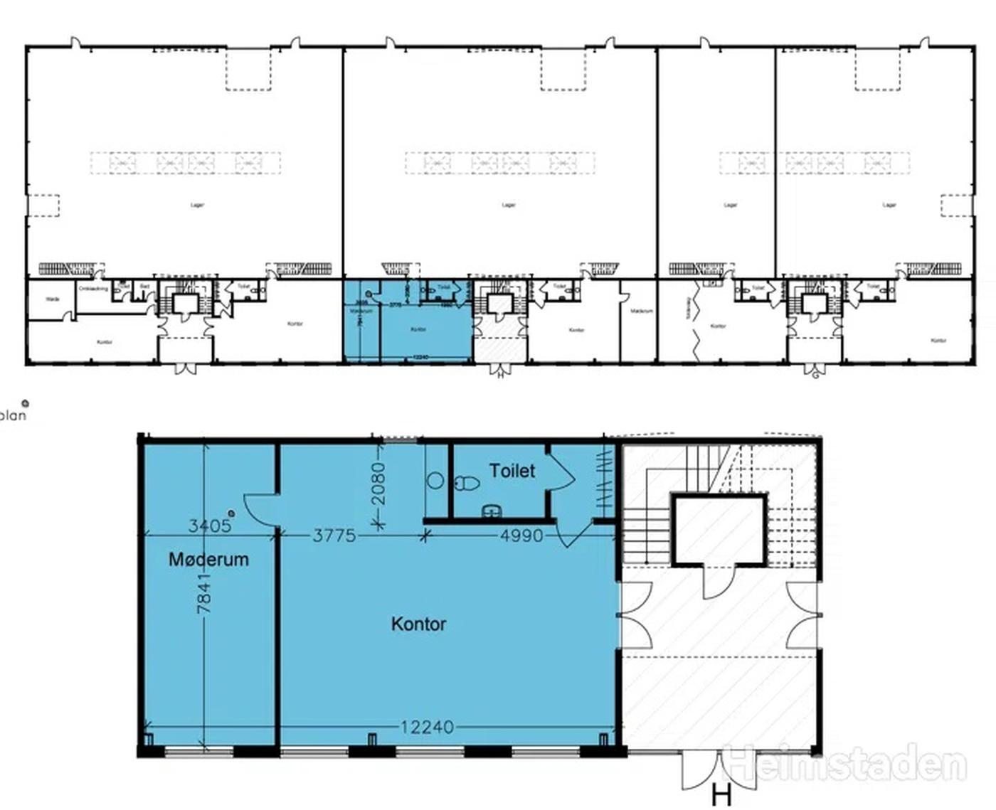
Indflytningsklart kontorlejemål tæt på motorvej

Mindre kontor i attraktivt erhvervsområde udbydes til leje.

Lejemålet er på brutto 123 m² og er beliggende i stor præsentabel ejendom opført i 2009.

Lejemålet er indrettet med åbent kontormiljø, mindre tekøkken samt toilet. I kontoret er der tæpper på gulvene, lyddæmpende lofter med indbygget grundbelysning og kabelbakker.

Lokalerne fremtræder pæne og velholdte, og er indflytningsklare.

Tietgenbyen er et nyere erhvervsområde langs den fynske motorvej, der har tiltrukket mange større og mindre virksomheder indenfor såvel kontor-, lager-, produktions- og logistikvirksomheder.

Der er gode parkeringsforhold på ejendommen.

Læs mere

Vil du vide mere?

Christopher Bøje

cbo@nordicals.dk

+4551271918

Kongensgade 27, 1. sal, 5000 Odense C

+4566138060

5000@nordicals.dk

Besøg vores mæglerside

Lignende ejendomme

Til top