Peder Skrams Vej 18
5220 Odense SØ

Sagsnr. 30927

Ejendomstype

Etageareal

Grund

Energiklasse

695 m²

2.610 m²

A2010

Kontantpris

Købspris pr. m²

Årlig driftsudgift

Årlig driftsudgift pr. m²

4.950.000 kr.

7.122 kr.

46.120 kr.

66 kr.

Lager-/kontorejendom

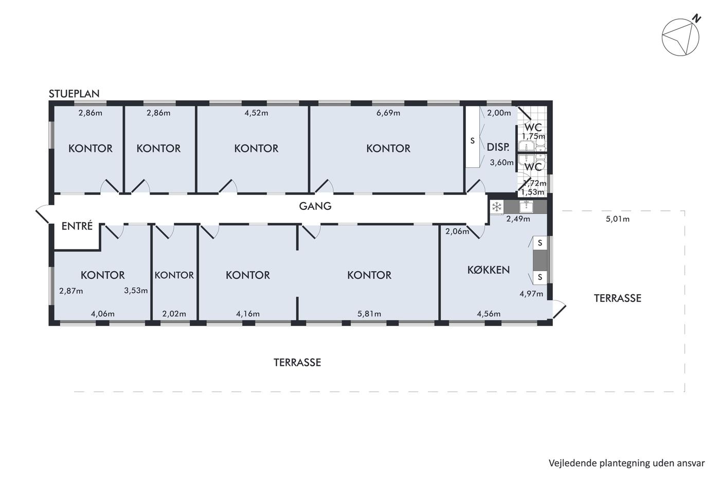
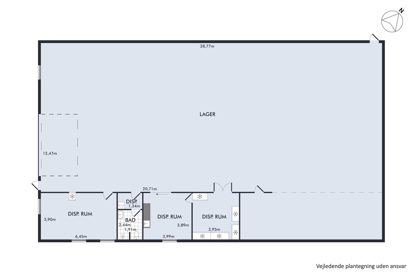
Ejendommen på Peder Skrams Vej 18, Odense SØ, er en erhvervsejendom med et samlet areal på 695 kvm, hvoraf 195 kvm er kontor og resten er lagerhal. Ejendommen er velvedligeholdt, og kontorerne, som er opført i 2016, er opbygget som kontorpavillioner men fremstår som en reel bygning beklædt for et helhedsudtryk. Kontoret er indrettet med cellekontorer, storrumskontorer, mødelokale, køkken/frokoststue, omklædning med toiletter. Den er opvarmet med fjernvarme og har aircondition installeret. Lagerdelen er i god stand og har en port i niveau, hvilket gør det nemt at få adgang til lageret.

Ejendommen er beliggende i et attraktivt erhvervsområde i Odense SØ, som er kendt for sin gode infrastruktur og nemme adgang til motorvejsnettet. Området er veludbygget med både erhvervs- og boligområder, og der er gode parkeringsmuligheder på ejendommen, som er belagt med sf-sten og kørefast underlag. Der er også gode offentlige transportmuligheder i nærheden, hvilket gør det nemt for medarbejdere og kunder at komme til og fra ejendommen.

Sammenfattende er ejendommen på Peder Skrams Vej 18 en velholdt og funktionel erhvervsejendom med gode adgangsforhold og en attraktiv beliggenhed i Odense SØ.

Læs mere

Vil du vide mere?

Jesper Engskov

jen@nordicals.dk

+4526141426

Kongensgade 27, 1. sal, 5000 Odense C

+4566138060

5000@nordicals.dk

Besøg vores mæglerside

Lignende ejendomme

Til top