Svovlhatten 3, 1. tv., Tornbjerg
5220 Odense SØ

Sagsnr. 30958

Ejendomstype

Etageareal

Energiklasse

256 m²

B

Årlig leje

Leje pr. m²

Depositum

Årlig driftsudgift

Årlig driftsudgift pr. m²

152.320 kr.

595 kr.

76.160 kr.

17.500 kr.

68 kr.

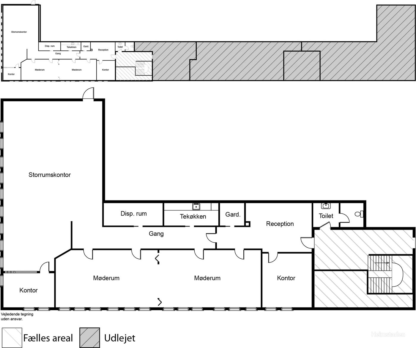
Attraktivt beliggende kontorlejemål

På Svovlhatten 3, 1. tv. får du et lejemål på 256 m² med god rumfordeling og attraktiv beliggende i Odense SØ. Lejemålet indeholder:

- Indgangsområde
- Lyse storrumskontorer og mindre kontorer
- Tekøkken
- Fin grundbelysning
- Koksgrå tæppefliser
- Hurtig indflytning
- Gratis parkering

Læs mere

Vil du vide mere?

Christopher Bøje

cbo@nordicals.dk

+4551271918

Kongensgade 27, 1. sal, 5000 Odense C

+4566138060

5000@nordicals.dk

Besøg vores mæglerside

Lignende ejendomme

Til top