Svovlhatten 3, st., Tornbjerg
5220 Odense SØ

Sagsnr. 30960

Ejendomstype

Etageareal

Energiklasse

1.309 m²

B

Årlig leje

Leje pr. m²

Depositum

Årlig driftsudgift

Årlig driftsudgift pr. m²

648.175 kr.

495 kr.

324.088 kr.

57.264 kr.

44 kr.

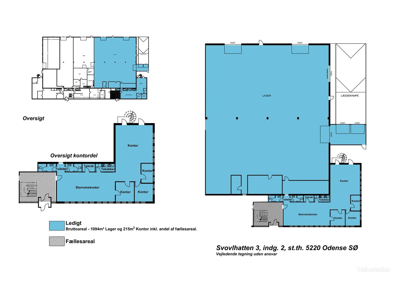
Attraktivt beliggende lager-/kontorlejemål nær motorvej

Lagerlejemål på 1.094 m² samt tilhørende flotte kontorer på 215 m². Direkte adgang mellem kontor og lager.

Lageret har loftshøjde på ca. 5 m og ca. 4,5 m under drager, portadgange, dobbelt rampe, slusehus, og er velegnet til både opbevaring og let produktion.

Optimale tilkørselsforhold som sikrer effektiv logistik. Der er kørefast udenomsareal med god plads til lastbiler og af- og pålæsning.

De præsentable kontorer er indrettet med 2 storrumskontorer samt 3 gode mindre kontorer, flere med glasskillevægge, tekøkken, toiletsektion, bad samt teknikrum.

Godt lysindfald samt ny LED-belysning. Flotte lyse trægulve. Klimaunits for behageligt indeklima.

Fleksible indretningsmuligheder.

Gratis parkeringspladser på ejendommen/foran lejemålet, ligesom ejendommen har god eksponering mod den befærdede Ørbækvej med lejemålets facade direkte mod denne.

Læs mere

Vil du vide mere?

Christopher Bøje

cbo@nordicals.dk

+4551271918

Kongensgade 27, 1. sal, 5000 Odense C

+4566138060

5000@nordicals.dk

Besøg vores mæglerside

Lignende ejendomme

Til top