Poppelvej 83
5230 Odense M

Sagsnr. 30748

Ejendomstype

Etageareal

Grund

Energiklasse

783 m²

2.014 m²

C

Kontantpris

Købspris pr. m²

Årlig driftsudgift

Årlig driftsudgift pr. m²

9.995.000 kr.

12.765 kr.

87.173 kr.

111 kr.

Kontordomicil på attraktiv placering i Hunderup

Ejendommen anvendes i dag og har siden 1966 været anvendt af Danske Slagtermestre, men er nu klar til at finde en ny ejer.

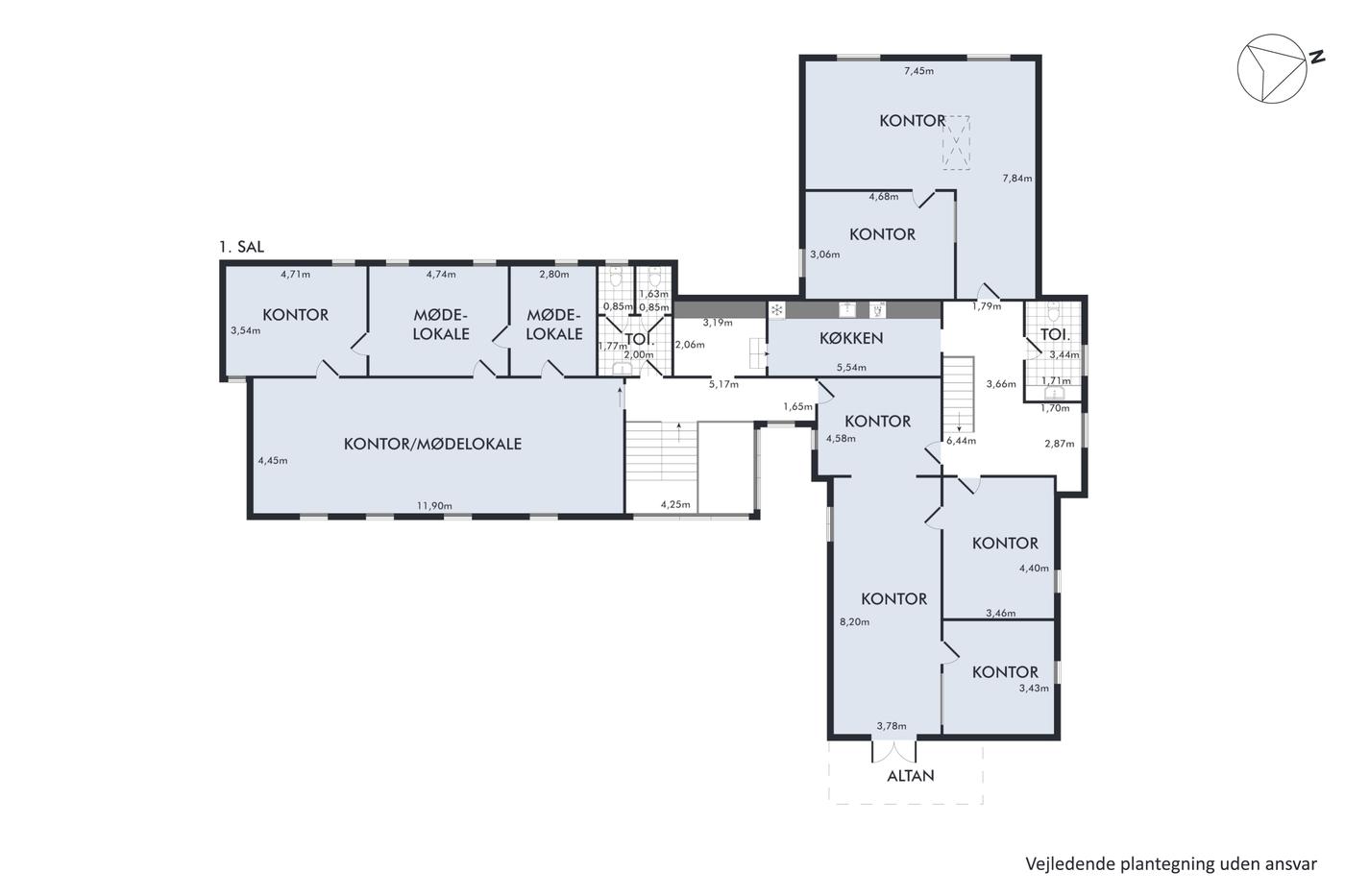
Ejendommens primære areal udgør 683 m² i 2 plan, der fordeler sig i 2 bygninger forbundet af et trappetårn i glas, som fungerer som indgang for medarbejder som såvel kunder af huset.

Hovedhuset er i stueplan indrettet med 4 store kontorer, depotrum, tekøkken, samt den oprindelige hall, mens 1.salen er indeholdende 2 storrumskontorer, 3 cellekontorer samt toilet og tekøkken.

Tilbygningen fra 1983 er i stueplan indrettet med et stort køkkenområde med tilhørende depotrum, som med fordel vil kunne anvendes til frokoststue eller alternativt omdannes til kontorbrug efter behov. 1. salen består af et storrumskontor, 3 mindre kontor/møderum samt toiletfaciliteter.

Ejendommen består derudover af 100 m² kælder under hovedhuset som bliver benyttet til depotrum.

Ejendommen er strategisk godt placeret med kort afstand til centrum samt den Fynske Motorvej, som giver optimale tilkørselsforhold. Derudover er der på ejendommen gode parkeringsforhold for medarbejdere som såvel kunder.

Læs mere

Vil du vide mere?

Simon Vinther Blach

svb@nordicals.dk

+4523111988

Kongensgade 27, 1. sal, 5000 Odense C

+4566138060

5000@nordicals.dk

Besøg vores mæglerside

Lignende ejendomme

Til top