Tagtækkervej 4
5230 Odense M

Sagsnr. 30533

Ejendomstype

Etageareal

Energiklasse

4.686 m²

F

Årlig leje

Leje pr. m²

Depositum

Årlig driftsudgift

Årlig driftsudgift pr. m²

4.418.004 kr.

943 kr.

2.209.002 kr.

549.450 kr.

117 kr.

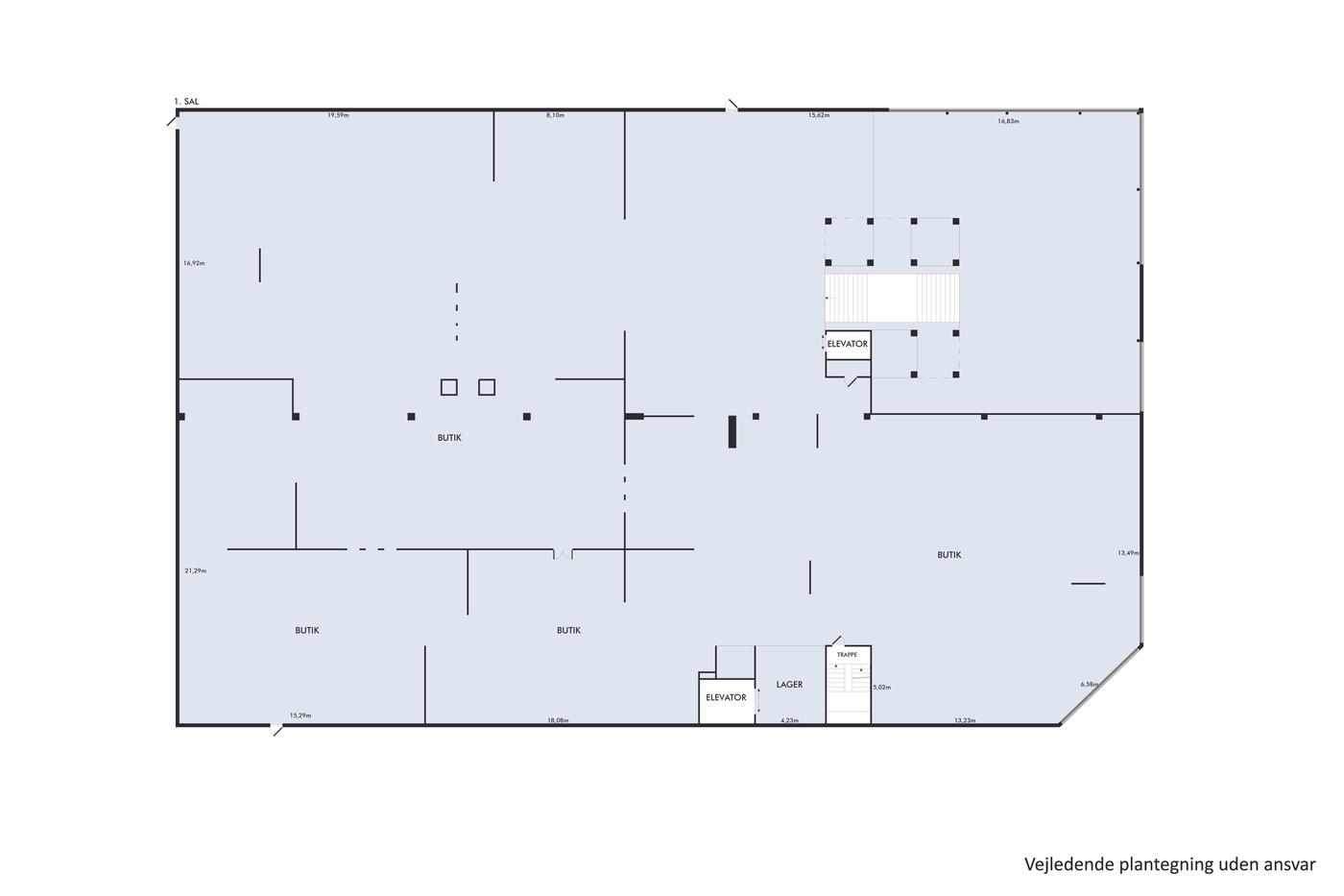
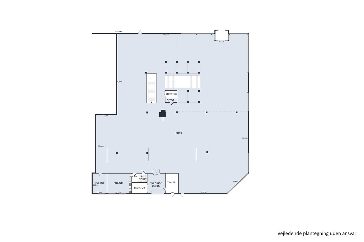
Attraktivt butikslejemål med god synlighed

Lejemålet på Tagtækkervej 4, beliggende i det attraktive Rosengårdcenter område i Odense, tilbyder en unik mulighed for etablering af butik i et højt frekventeret handelsmiljø. Rosengårdcentret er et af Danmarks største indkøbscentre og et populært shopping destination, hvilket skaber ideelle betingelser for detailhandel med god synlighed og kundetiltrækning.

Ejendommen har et samlet salgsareal på 3.529 m², som er smagfuldt og moderne indrettet, hvilket skaber en attraktiv og indbydende atmosfære for kunder. Derudover findes lagerfaciliteter på 1.157 m². Ejendommen har hidtil været udlejet til ILVA, hvilket understøtter lejemålets egnethed til større detailbutikker og inspirerer til fortsat anvendelse i samme kategori.

Ejendommen er omgivet af kendte detailforretninger, hvilket gør området yderst velegnet til erhvervsdrivende, der ønsker at placere sig i et dynamisk og stærkt kommercielt miljø. Med nabobutikker, der omfatter nogle af de mest populære brands, er Tagtækkervej 4 en strategisk beliggenhed med potentiale til høj kundetrafik og øget synlighed.

Dette lejemål er ideelt for virksomheder, der ønsker en moderne og rummelig base med tæt tilknytning til Rosengårdcentrets brede udvalg af butikker og servicetilbud.

Læs mere

Vil du vide mere?

Christopher Bøje

cbo@nordicals.dk

+4551271918

Kongensgade 27, 1. sal, 5000 Odense C

+4566138060

5000@nordicals.dk

Besøg vores mæglerside

Lignende ejendomme

Til top