Tagtækkervej 1B
5230 Odense M

Sagsnr. 31177

Ejendomstype

Etageareal

Energiklasse

610 m²

A2015

Årlig leje

Leje pr. m²

Depositum

Årlig driftsudgift

Årlig driftsudgift pr. m²

732.000 kr.

1.200 kr.

366.000 kr.

48.800 kr.

80 kr.

Nyistandsat og regulært kontorlejemål på attraktiv placering

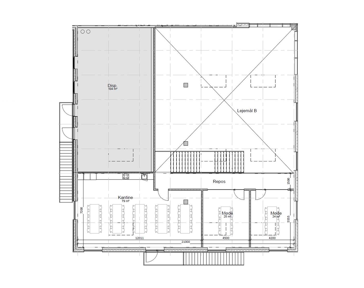
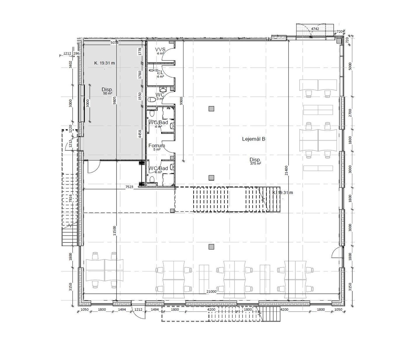
På attraktiv placering i Odense M udbydes her et regulært kontorlejemål, hvor man som lejer vil have medindflydelse på indretningen. Plantegningen i materialet skal alene ses som et forslag, som vil kunne justeres til efter behov.

Lejemålet fremtræder på nuværende tidspunkt i dets rå form, men vil i forbindelse med udlejningen blive istandsat efter nærmere aftale.

Lejemålets i alt 610 m² udgør 452 m² i stueetagen, indeholdende et åbent kontorareal, toiletfaciliteter, et mindre lager på ca. 50 m² samt et teknikum. Herudover består lejemålet af en repos på 158 m², som på plantegningen er indrettet med to mødelokaler samt en frokoststue. Det er muligt helt eller delvist af fjerne det indtegnede repos, såfremt man ikke har behov for arealet.

På ejendommen forefindes mange parkeringspladser, hvoraf 10 p-pladser særskilt vil medfølge det lejede.

For yderligere informationer om mulighederne, kontakt Nordicals Fyn.

Læs mere

Vil du vide mere?

Simon Vinther Blach

svb@nordicals.dk

+4523111988

Kongensgade 27, 1. sal, 5000 Odense C

+4566138060

5000@nordicals.dk

Besøg vores mæglerside

Lignende ejendomme

Til top