Holkebjergvej 95, Højme
5250 Odense SV

Sagsnr. 30679

Ejendomstype

Etageareal

Energiklasse

7.911 m²

C

Årlig leje

Leje pr. m²

Depositum

Årlig driftsudgift

Årlig driftsudgift pr. m²

3.782.400 kr.

478 kr.

1.891.200 kr.

458.838 kr.

58 kr.

Motorvejsnær lager-/logistikejendom i attraktivt erhvervsområde

I attraktivt erhvervsområde i Odense SV og med under 1 km til den Fynske Motorvej udbydes denne lager-/logistikejendom til leje.

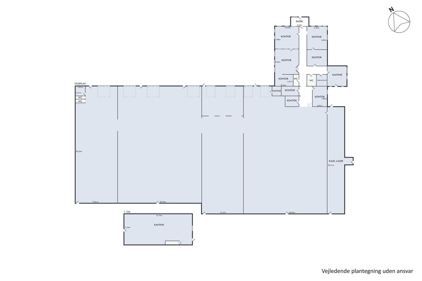
Ejendommens areal udgør i alt 7.911 m², som er fordelt med 7.350 m² højloftet lager med tilhørende administrationsafdeling på 561 m².

Lagerarealet består af 6 isolerede og opvarmede lagerhaller opdelt i 4 sektioner med sadeltag med indbygget rytterlys, som sikrer et godt lysindfald. Lageret fremstår derudover med kørefast betongulv og loft til kip, med 8 m frihøjde i kip og 5 m i siderne. Lageret fremtræder meget pænt og velholdt, og dets indretning sikrer effektiv varehåndtering med 10 store porte, hvoraf 8 er med individuelle slusehuse samt 2 porte er med niveaufri adgang.

Administrationsafdelingen udgør 561 m² og er indrettet med entré, en variation af åbne kontorer med tæppefliser og troldtektlofter, toilet-, omklædnings- og badefaciliteter samt en stor kantine/frokoststue på 1. salen. Fra administrationsafdelingen er der direkte adgang til lageret.

Hele ejendommen er indhegnet. Udenomsarealerne foran ejendommen er befæstet med asfalt med god plads til manøvrering af lastbiler samt gode parkeringsforhold til medarbejdere.

Ejendommen er beliggende i attraktivt og veletableret erhvervsområde med gode til- og frakørselsmuligheder med kort afstand til afkørsel 52 Odense SV på den Fynske Motorvej.

For yderligere information eller dialog om mulighederne for ejendommen, kontakt Nordicals Odense.

Læs mere

Vil du vide mere?

Simon Vinther Blach

svb@nordicals.dk

+4523111988

Kongensgade 27, 1. sal, 5000 Odense C

+4566138060

5000@nordicals.dk

Besøg vores mæglerside

Lignende ejendomme

Til top