Lindevej 65, Dalum
5250 Odense SV

Sagsnr. 29813

Ejendomstype

Etageareal

Grund

Energiklasse

429 m²

1.759 m²

D

Smukt kontordomicil i Dalum.

Ejendommen er en nydelig villa, i flot arkitektonisk stil.

Ejendommen er opført i røde mursten, har sortglaseret tegltag og hvide termovinduer.

Bygningerne er opført på 1.759 m² stor grund, som er befæstet med sten og udlagt til parkering. De øvrige udenomsarealer er primært udlagt til grønne områder med græs, buske og lignende.

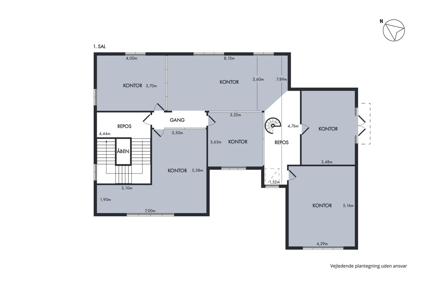
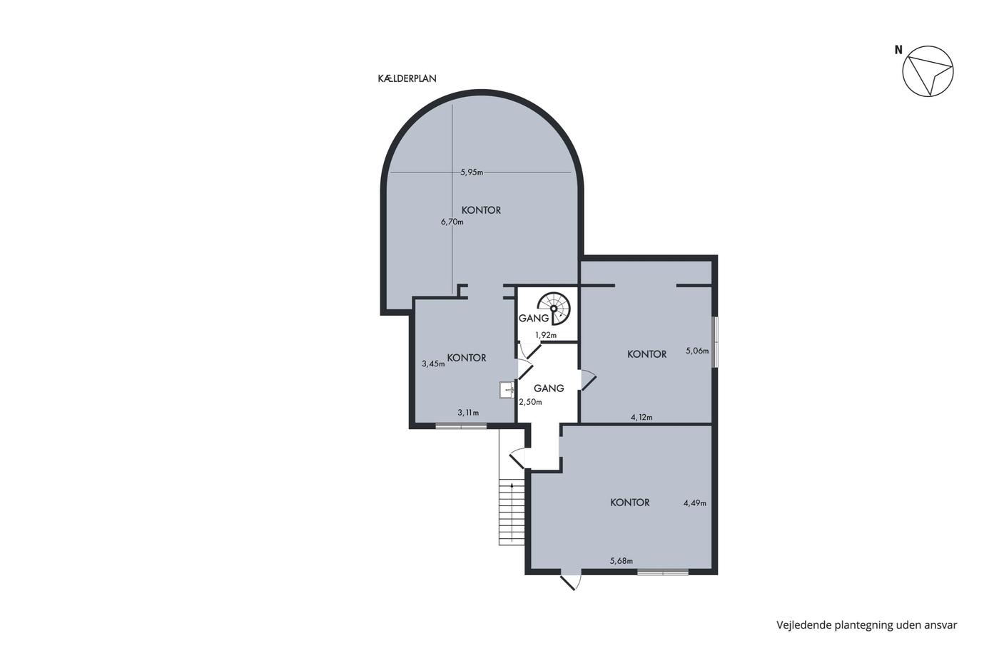
Bygningerne består at et kontordomicil på 429 m² og en garage på 38 m².

Ejendommen er beliggende i et af Odenses mest populære beboelsesområder, tæt på Odense Å, og med kort afstand til Odense Centrum.

Ejendommen er desuden beliggende med kort afstand til motorvejen, hvilket gør ejendommen let tilgængelig for personale, kunder og gæster.

Det er en yderst præsentabel ejendom, som vil passe godt til mange forskellige typer af virksomhed - lige fra et lægehus til alle former for liberalt erhverv.

Læs mere

Denne ejendom er solgt

Vil du vide mere?

Max Klinkby-Silver

mks@nordicals.dk

+4524373787

Kongensgade 27, 1. sal, 5000 Odense C

+4566138060

5000@nordicals.dk

Besøg vores mæglerside

Lignende ejendomme

Til top