Egegårdsvej 3
5260 Odense S

Sagsnr. 29795

Ejendomstype

Etageareal

Energiklasse

663 m²

F

Kontor/lager - tæt på motorvej

Kontor- og lagerlejemål beliggende i udbygget erhvervsområde, tæt på større indfaldsvej til Odense og tæt ved motorvejstilkørsel.

Lejemålet er placeret midt i populær erhvervspark med en del trafik dagen igennem. Lokalerne har mange anvendelsesmuligheder, herunder f.eks. til engrosbutik eller showroom med tilhørende lager/værksted, udover almindeligt kontor med tilhørende lager/værksted.

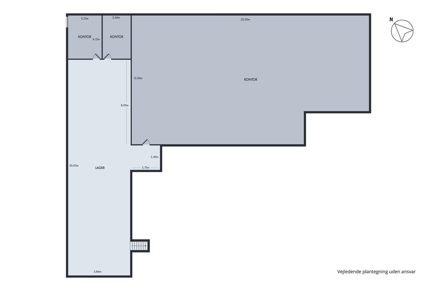
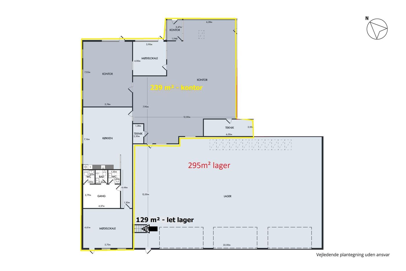
Kontorarealet på 239 m² indeholder stort forrumskontor, der nemt kan anvendes som butik/showroom. Derudover mødelokale samt yderligere et stort kontor. Stor frokoststue med pænt køkken samt toiletter. Kontorerne fremtræder pæne og indbydende.

Lager/værkstedsdelen på 295 m² er med 6 meter til loftet og der er adgang fra kontor eller indgang fra bagsiden af bygningen. Adgang er via 3 store rulleporte - heraf 2 elektriske. Der er mulighed for at anvende etagedækket over kontorarealet til let lager/opbevaring.

Læs mere

Denne ejendom er udlejet

Vil du vide mere?

Christopher Bøje

cbo@nordicals.dk

+4551271918

Kongensgade 27, 1. sal, 5000 Odense C

+4566138060

5000@nordicals.dk

Besøg vores mæglerside

Lignende ejendomme

Til top