Klaus Berntsens Vej 5, Højby
5260 Odense S

Sagsnr. 30849

Ejendomstype

Etageareal

Grund

Energiklasse

847 m²

2.932 m²

B

Investeringsejendom i Højby

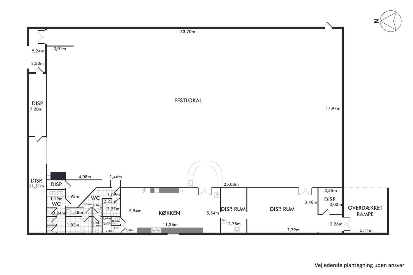
I Højby udbydes hermed tidligere dagligvareforretning, som siden 2020 har ændret anvendelse og i dag anvendes til festlokaler.

Selve ejendommen udgør 847 m² og er beliggende på en 2.932 m² stor befæstet grund som sikrer gode parkeringsforhold.

Ejendommen er indrettet med et stort festlokale, produktionskøkken, flere disponible rum samt gode toiletfaciliteter.

Beliggende i Højby med få kilometer til drejebænken ved den Fynske Motorvej og med gåafstand til bus- og togforbindelse, har denne ejendom en god beliggenhed i forhold til anvendelsen, da det er nemt at komme til og fra ejendommen.

For yderligere information om ejendommen, kontakt Nordicals Odense.

Læs mere

Denne ejendom er solgt

Vil du vide mere?

Simon Vinther Blach

svb@nordicals.dk

+4523111988

Kongensgade 27, 1. sal, 5000 Odense C

+4566138060

5000@nordicals.dk

Besøg vores mæglerside

Lignende ejendomme

Til top