Landbrugsvej 6, Hjallese
5260 Odense S

Sagsnr. 30013

Ejendomstype

Etageareal

Grund

Energiklasse

1.803 m²

3.559 m²

B

Velbeliggende ejendom med kontor, lager-/produktionsfaciliteter

Nordicals har hermed fornøjelsen at udbyde denne velbeliggende erhvervsejendom. Ejendommen blev tidligere anvendt af LOGOS, som har benyttet ejendommen gennem en længere årrække. De fraflyttede på grund af pladsmangel.

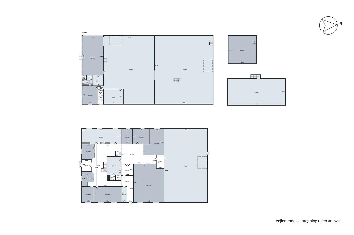
Ejendommen består af to separate bygninger. Bygningerne indeholder begge kontorlokaler og tilhørende lager-/produktionsfaciliteter.

Udvendigt er bygningerne primært belagt med bølgeplader. Forreste del af bygning A er opført med en muret facade og større vinduespartier, hvilket sikrer naturligt lys til både indgangen og kontorfaciliteterne. Denne bygning blev brugt som hovedindgangen for ejendommens bruger og indeholder også et større kontorareal end bygning B.

Bygning A består primært af kontor og indeholder blandt andet kantine samt baderum til ansatte. Derudover udgør en mindre del af arealerne værksted og lager.

Bygning B består af værksted og et mindre kontorlandskab samt køkken m.m. Den bagerste del af ejendommen blev tidligere anvendt til pluklager.

Begge facader sikrer god eksponering ud mod Landbrugsvej.

Udenomsarealerne er belagt med kørefast underlag, hvilket sikrer nem adgang til ejendommens porte, som befinder sig bagerst i hver bygning.

Muligheden for tilpasning af ejendommens faciliteter giver derfor en fremtidig ejer fleksibilitet, afhængig af virksomhedens behov.

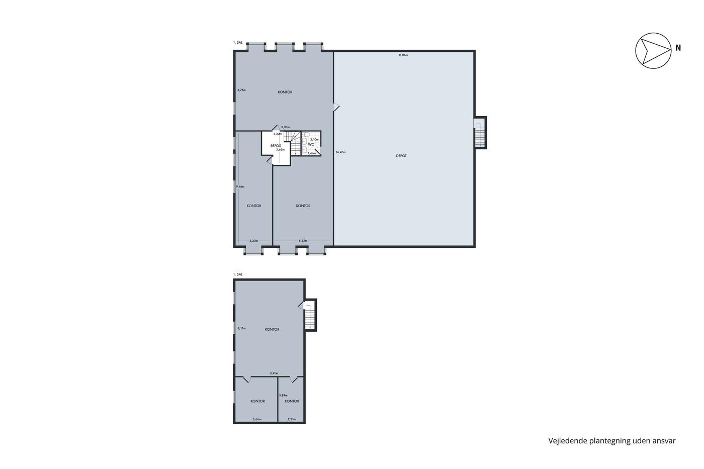
Arealerne er fordelt således i Bygning A:
- 498 m² kontor.
- 305 m² lager.
- 170m² mezzanin (bruges i dag også som lager).

Arealerne er fordelt således i Bygning B:
- 99 m² kontor.
- 280 m² lager.
- 150 m² mezzanin (bruges i dag også som lager).
- 317 m² værksted.

Det understreges at ovennævnte arealer er anslåede.

Læs mere

Denne ejendom er solgt

Vil du vide mere?

Morten Nielsen

mni@nordicals.dk

+4530508375

Kongensgade 27, 1. sal, 5000 Odense C

+4566138060

5000@nordicals.dk

Besøg vores mæglerside

Lignende ejendomme

Til top