Landbrugsvej 8, st. th.
5260 Odense S

Sagsnr. 30912

Ejendomstype

Etageareal

Energiklasse

150 m²

D

Årlig leje

Leje pr. m²

Depositum

104.250 kr.

695 kr.

26.063 kr.

Lyst og fleksibelt lejemål med gode parkeringsforhold

En yderst velbeliggende erhvervsejendom med attraktive lejemål.

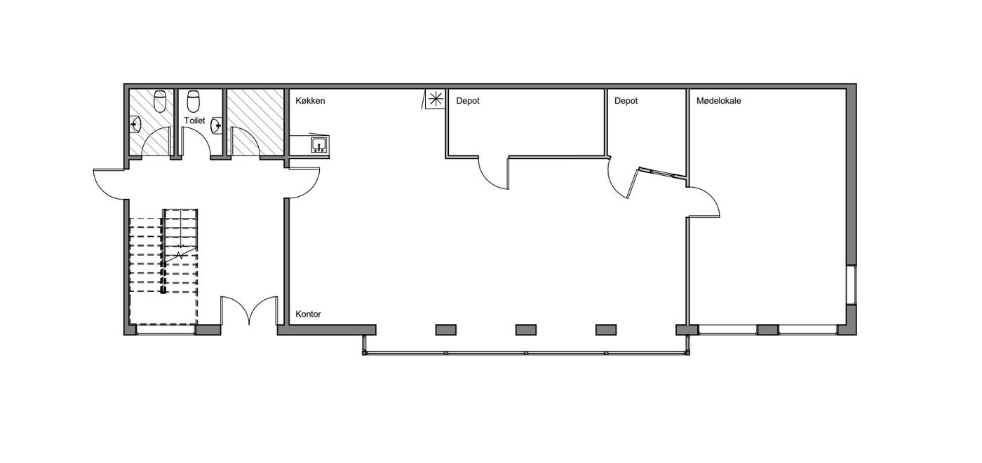
På Landbrugsvej 8, st. th. udlejes 150 m² lokaler til brug for kontor, webshop m.fl.

Lejemålet har indgang via fælles forhal fra gadeplan. Lokalerne er inddelt i et stort rum (kan deles op), stort og lyst mødelokale, køkken og depotrum. Der er pålagt mørke tæpper i lejemålet. Der er adgang til toilet.

Lejemålet er yderst fleksibelt så en lejers eventuelle indretningsønsker vil kunne tilgodeses.

Parkeringspladserne er beliggende foran lejemålets hovedindgang.

Lejemålet kan overtages nymalet såfremt en ny lejer ønsker dette.

Gode parkeringsforhold foran ejendommen.

De første 6 måneder får lejer en særlig lejerabat på i alt kr. 15.000 svarende til, at den årlige leje kun er kr. 495 pr. m² i de første 6 måneder.

Læs mere

Vil du vide mere?

Peter Aagaard Nielsen

pan@nordicals.dk

+45 2347 4476

Kongensgade 27, 1. sal, 5000 Odense C

+4566138060

5000@nordicals.dk

Besøg vores mæglerside

Lignende ejendomme

Til top