Lucernemarken 24, Hjallese
5260 Odense S

Sagsnr. 31305

Ejendomstype

Etageareal

Grund

Energiklasse

773 m²

1.660 m²

A2010

Kontantpris

Købspris pr. m²

Årlig driftsudgift

Årlig driftsudgift pr. m²

10.500.000 kr.

13.583 kr.

49.127 kr.

64 kr.

Flot kontordomicil

Ejendommen på Lucernemarken 24 fremstår som et moderne og velindrettet domicilkontor på i alt 702 m², opført i 2011 og løbende moderniseret. Ejendommen ligger i et attraktivt erhvervsområde med nærhed til SDU, Cortex Park og med nem adgang til både motorvej og Odenses centrale bydele.

Sammensætning af ejendommen

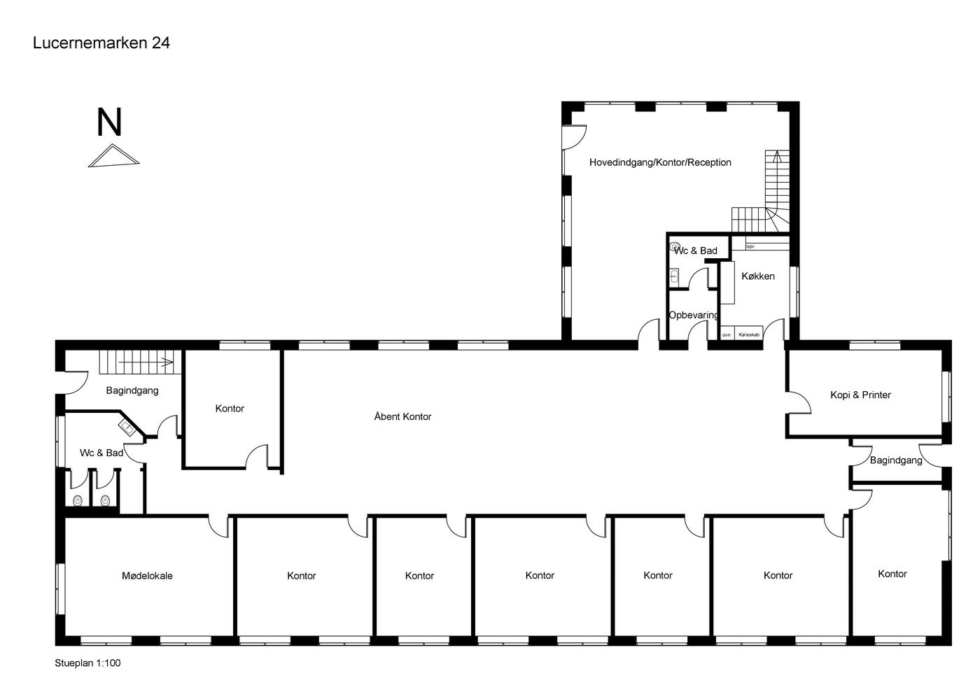
Stueetagen udgør 593 m² og indeholder en kombination af åbne storrumskontorer og flere enkeltkontorer, hvilket giver gode muligheder for fleksibel indretning eller opdeling i afdelinger.

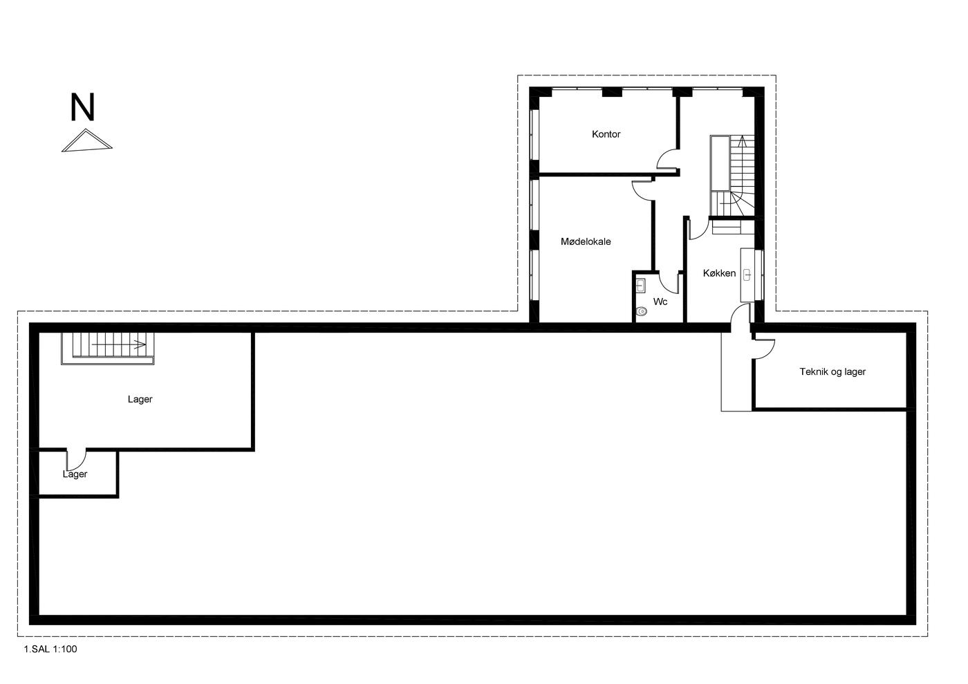
På 1. salen findes yderligere 109 m² kontorareal som er indrettet til mødelokale, separat kontor, ventileret serverrum, toilet og køkken.

Hertil kommer en isoleret dobbeltgarage/lagerbygning på 71 m², som kan anvendes til let produktion, lager, opbevaring eller firmakøretøjer.

Ejendommen er opført i blødstrøgne teglsten med træ/aluminiumsvinduer og et tag med listedækket tagpap, og kontorområderne er moderniseret med tidssvarende installationer. En blanding af koksgrå tæppebelægning og massive egetræsgulve samt trappe. Ejendommen har energimærke A2010, hvilket sikrer en energieffektiv drift.

Foran bygningen ligger en præsentabel parkeringsplads i chaussesten, og langs begge sider af ejendommen findes yderligere parkeringsmuligheder på granitskærver. Området ligger tæt på Syddansk Universitet, samt erhvervsklyngen omkring Cortex Park, som rummer både virksomheder, uddannelsesinstitutioner og stærke infrastrukturelle forbindelser.

Der er kort afstand til E20-motorvejen via Ørbækvej samt gode busforbindelser mod Odense C og Odense Banegård.

Denne ejendom udgør et moderne og funktionelt domicil med fleksible anvendelsesmuligheder i et af Odenses mest udviklingsstærke erhvervsområder.

Læs mere

Vil du vide mere?

Niels Jørgensen

nij@nordicals.dk

+4551252825

Kongensgade 27, 1. sal, 5000 Odense C

+4566138060

5000@nordicals.dk

Besøg vores mæglerside

Lignende ejendomme

Til top