Fynsvej 1
5500 Middelfart

Sagsnr. 29782

Ejendomstype

Etageareal

Grund

Energiklasse

200 m²

10.543 m²

F

Kontorlejemål i Middelfart erhvervsområde med central placering

Pænt og velindrettet kontorlejemål med central placering i Middelfart erhvervsområde.

Lokalerne fremstår pæne og velvedligeholdte med tæppefliser og hvide systemlofter med indbygget grundbelysning.

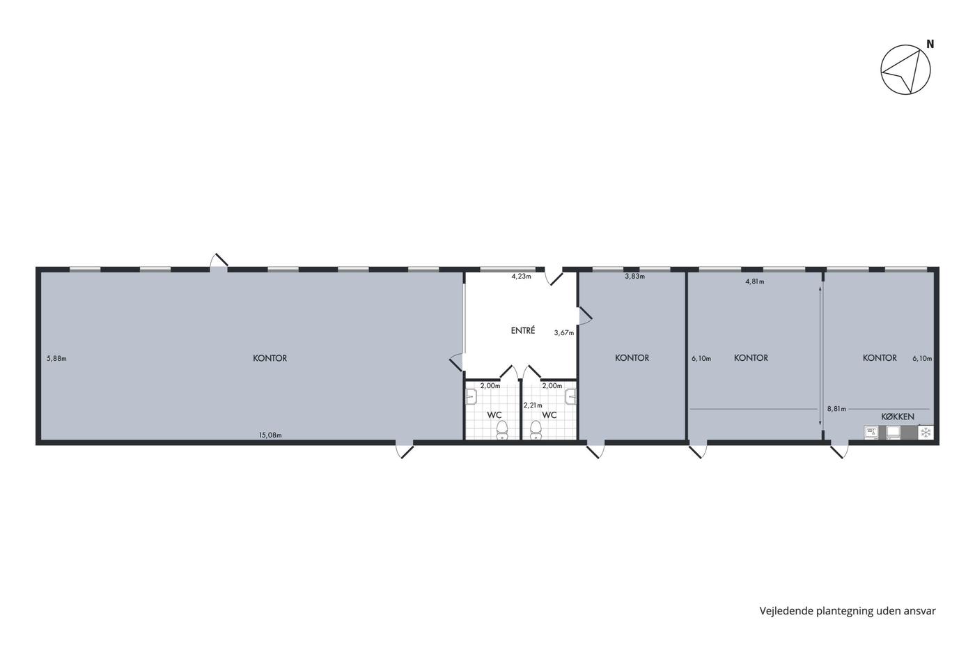
Lejemålet er indrettet med et modtagelsesområde/entré med to toiletter, et gennemgangskontor samt to store åbne kontorarealer,
hvoraf det ene har tekøkken og kan opdeles med en foldedør.

Det er muligt at leje yderligere areal i ejendommen i form af omklædningsrum med toilet- og badefaciliteter, hvor adgang til denne del foregår gennem Nettolagers arealer (fremgår ikke på plantegningen).

Der er gode parkeringsforhold foran det lejede.

Fra lejemålet er der kort afstand til Middelfart centrum samt den Fynske Motorvej afkørsel 58B.

Læs mere

Denne ejendom er udlejet

Vil du vide mere?

Simon Vinther Blach

svb@nordicals.dk

+4523111988

Kongensgade 27, 1. sal, 5000 Odense C

+4566138060

5000@nordicals.dk

Besøg vores mæglerside

Lignende ejendomme

Til top