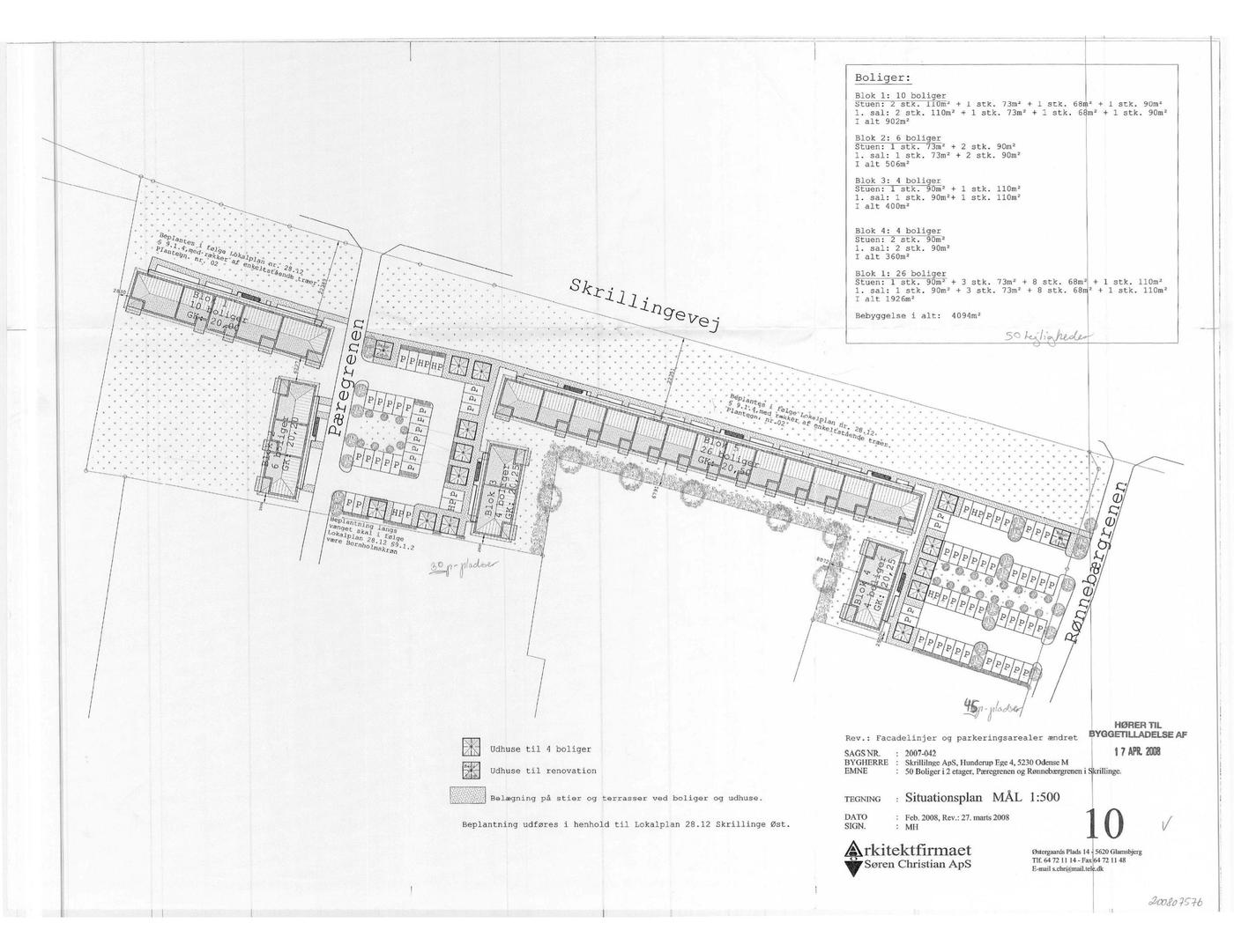
Pæregrenen 1-20, Rønnebærgrenen 2-34
5500 Middelfart

Sagsnr. 28934

Ejendomstype

Etageareal

Grund

Energiklasse

4.412 m²

14.978 m²

A2010

Kontantpris

Købspris pr. m²

Afkast

Årlig lejeindtægt

Årlig lejeindtægt pr. m²

Årlig driftsudgift

Årlig driftsudgift pr. m²

80.000.000 kr.

18.132 kr.

4,65 %

4.407.945 kr.

999 kr.

737.119 kr.

167 kr.

Boligudlejningejendom

Bemærk afkast ved selskabshandel udgør 5,05%

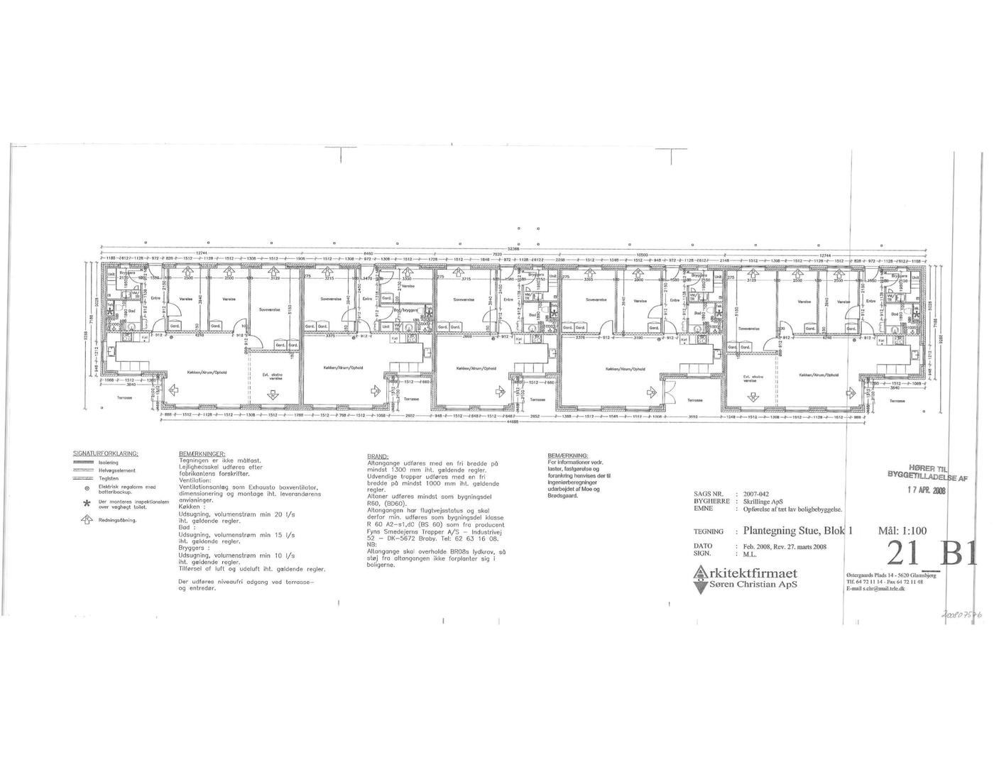
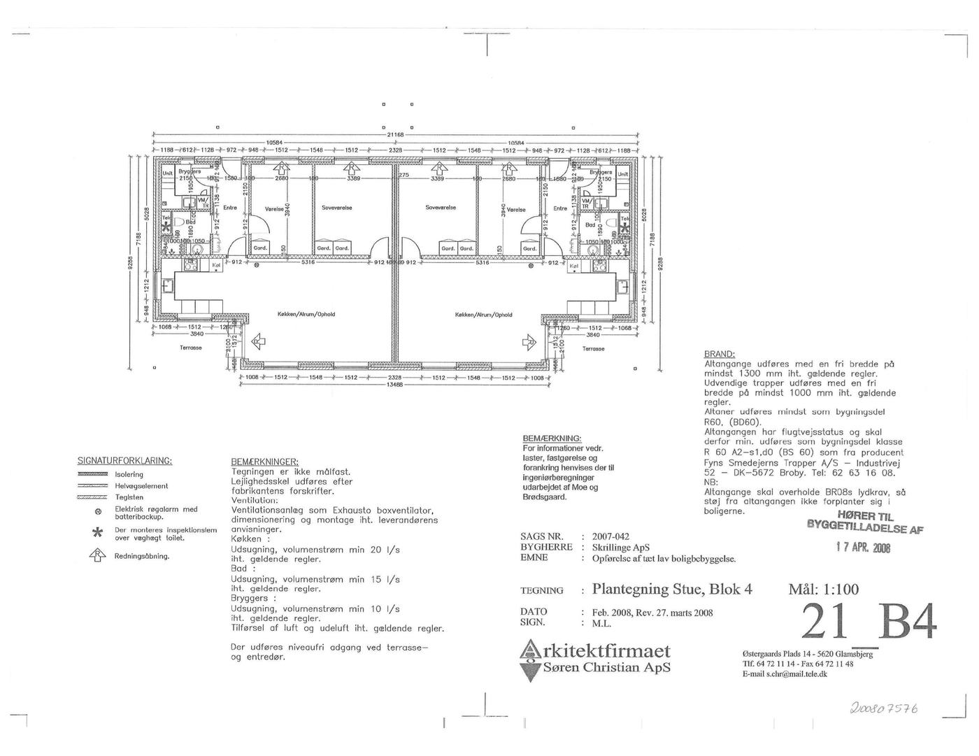
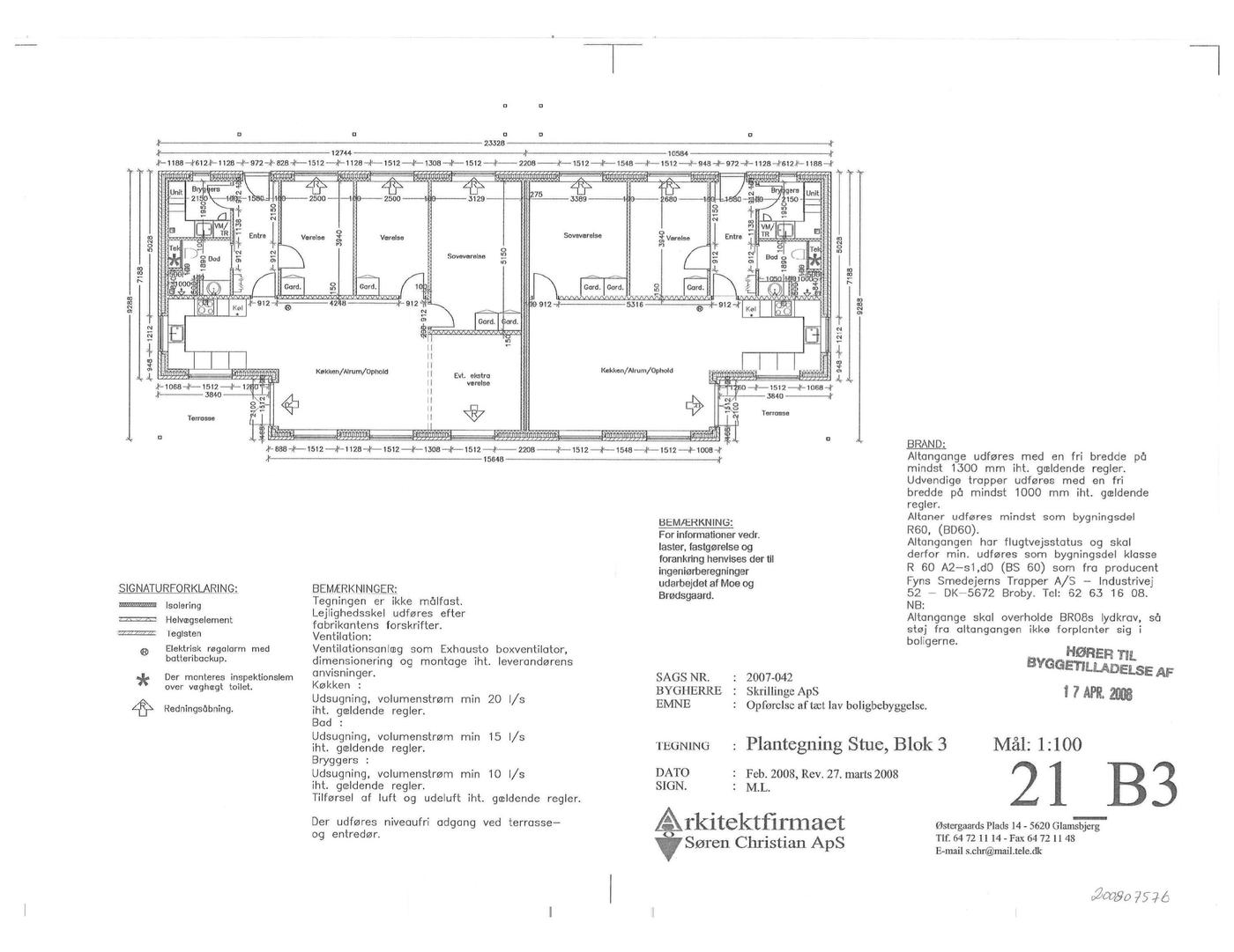
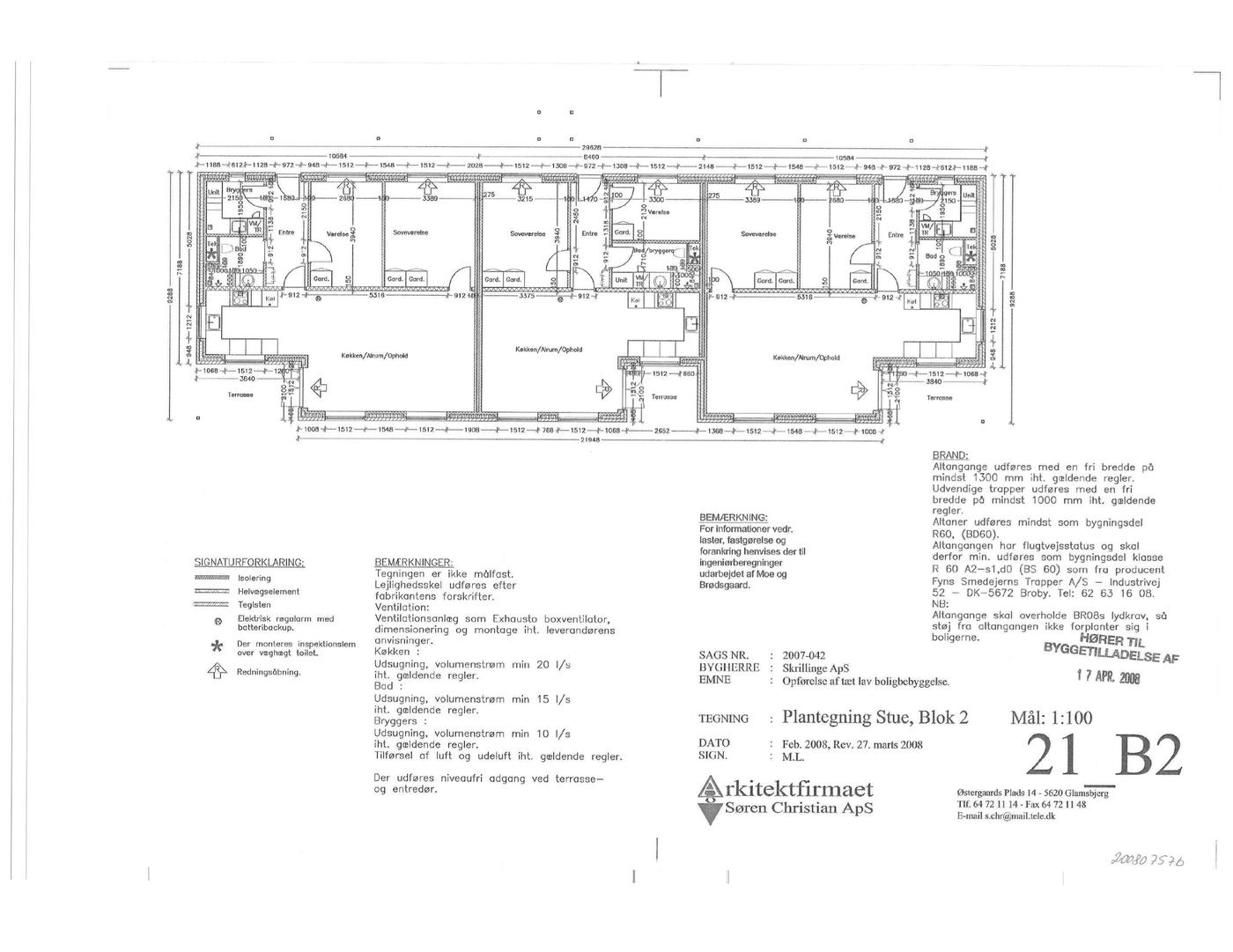
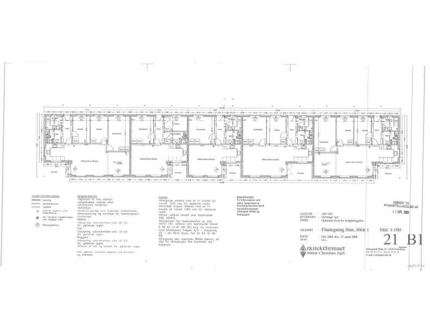
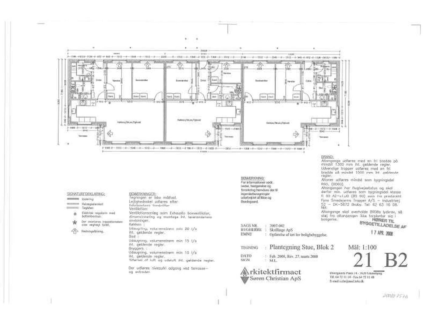
Rækkehusene på Pæregrenen og Rønnebærgrenen er opført i 2009 med ydervæg af gule mursten, træ/aluminiums vinduer og tag med tagpap. Ejendommen opvarmes med fjernvarme, hvortil hver enhed har egne forbrugsmålere til el, vand og varme. Alle boligerne er i et plan, hvor 1/2 ligger i stueplan og 1/2 på 1. sal med svalegang. Der er i år 2017 monteret elevator i den største boligblok.

Rækkehusene er beliggende i Skrillinge - et område der har været under udstykning de senere år, primært til boligformål. Byggeriet i området er derfor af varierende karakter - hovedsageligt bebygget med parcelhuse og rækkehuse.

Selve nærområdet omkring boligerne er ligeledes veludviklet med alle dagligdagens fornødenheder inden for rækkevidde, såsom skole, daginstitutioner, dagligvareindkøb (Rema1000 m.fl.), legepladser, træningsplads med alle træningsredskaber, busstoppesteder, stisystemer til centrum, små søer og meget mere.

Der er fire enheds typer:

8 stk. 5 værelses boliger på 116 - 117 m²
14 stk. 3. værelses boliger på 96 - 97 m²
10 stk. 3 værelses boliger på 79 - 80 m²
18 stk. 2 værelses boliger på 74 - 75 m²

Alle boligerne er indrettet med hvide køkkener med mørk trækant og gråmeleret laminatbordplade, hvilket går igen badeværelse. Der er faste skabe i alle soverum. Badeværelser med beige klinker på gulve og i bruseniche samt rummelig entré med skabe. Herudover fremstår enhederne med trægulve og hvidmalede vægge samt træværk, der er lyst og imødekommende med store vinduespartier. I boligerne på 1. sal er der ca. 6 m² store altaner indbygget i facaden, mens der er fliseterrasse og lille have til alle boligerne i stueplan.

19 af boligerne er med serviceringspligt af hvidevarer (komfur/emhætte/køle/fryseskab & opvaskemaskine)
31 af boligerne er uden serviceringspligt af hvidevarer (udover komfur/emhætte).

Denne ejendom udbydes som en selskabshandel af selskabet Skrillinge ApS, hvis eneste aktiv er ejendommen. Ejendommen værdisættes til kr. 80 mio. + regulering for drift eller skat fra 1/10-2023 + kontant omregnet restgæld. Udskudt skat udgør ca. kr. 6.010.000.

Læs mere

Vil du vide mere?

Niels Jørgensen

nij@nordicals.dk

+4551252825

Kongensgade 27, 1. sal, 5000 Odense C

+4566138060

5000@nordicals.dk

Besøg vores mæglerside

Lignende ejendomme

Til top