Teglgårdsparken 101
5500 Middelfart

Sagsnr. 30497

Ejendomstype

Etageareal

Energiklasse

2.559 m²

C

Årlig leje

Leje pr. m²

Depositum

Årlig driftsudgift

Årlig driftsudgift pr. m²

2.169.150 kr.

848 kr.

1.084.575 kr.

281.240 kr.

110 kr.

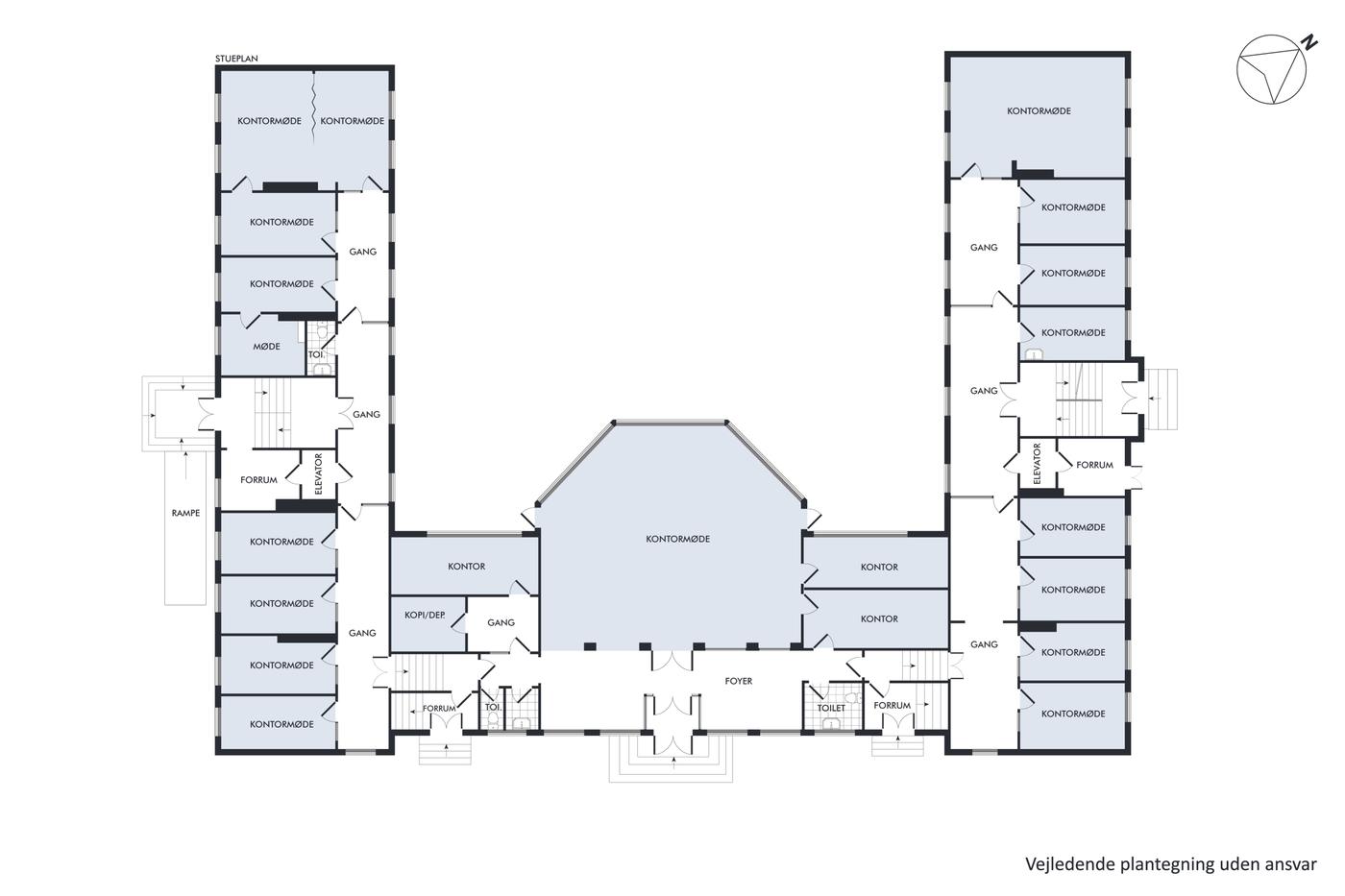
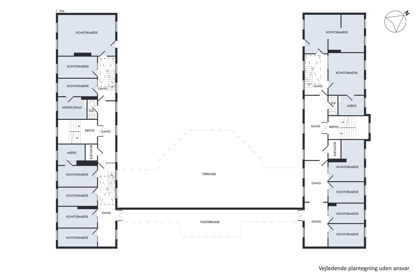
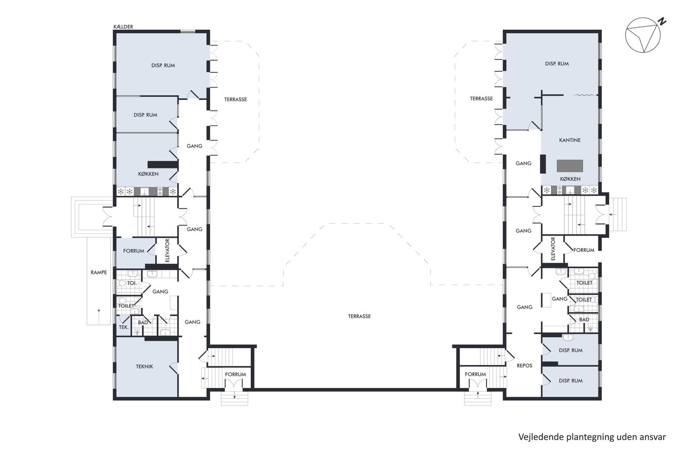
Kontordomicil med attraktiv beliggenhed

Flot og velholdt ejendom med en attraktiv beliggenhed i Middelfart - tæt på motorvejen og med få meter til vandet.

Ejendommen fremstår i rigtig god stand, med gode parkeringsarealer og store udearealer med belægningssten og flotte grønne områder.

Lokalerne er senest brugt af lokalpsykiatrien, men lokalerne kan anvendes til mange formål, f.eks. kontordomicil for offentlige eller private kontorvirksomheder.

Bygningen er i de senere år blevet gennemrenoveret og fremstår unik, lys og indbydende.

Bygningen indeholder store flotte plankegulve, glasskillevægge og er smagfuldt indrettet.

Læs mere

Vil du vide mere?

Niels Jørgensen

nij@nordicals.dk

+4551252825

Kongensgade 27, 1. sal, 5000 Odense C

+4566138060

5000@nordicals.dk

Besøg vores mæglerside

Lignende ejendomme

Til top