Markedspladsen 7E-F
5600 Faaborg

Sagsnr. 31174-1

Ejendomstype

Etageareal

Energiklasse

619 m²

B

Årlig leje

Leje pr. m²

Depositum

Årlig driftsudgift

Årlig driftsudgift pr. m²

139.275 kr.

225 kr.

69.638 kr.

32.504 kr.

53 kr.

Fleksibelt lagerlejemål i velfungerende erhvervsområde

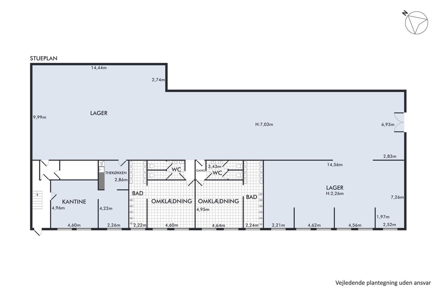
På Markedspladsen 7 i Faaborg udbydes et attraktivt og funktionelt erhvervslejemål på i alt 619 m², ideelt til virksomheder, der søger gode, praktiske rammer i et etableret erhvervsområde. Til lejemålet kan tillejes kontor på 426 m².

Lejemålet udgør 619 m² med loftshøjde op til ca. 6,5 meter, gode adgangsforhold, mulighed for etablering af port samt plads til både opbevaring og lettere produktion.

Ejendommen har gode parkeringsforhold og er beliggende i et roligt, men velbesøgt erhvervsområde med kendte naboer som JYSK, Jem & Fix, Harald Nyborg og thansen.

Lejemålet tilbydes med stor fleksibilitet i indretning og istandsættelse, så det kan tilpasses præcis efter lejers ønsker og driftsbehov.

Læs mere

Vil du vide mere?

Peter Aagaard Nielsen

pan@nordicals.dk

+45 2347 4476

Kongensgade 27, 1. sal, 5000 Odense C

+4566138060

5000@nordicals.dk

Besøg vores mæglerside

Lignende ejendomme

Til top