Reventlowsvej 2
5600 Faaborg

Sagsnr. 73178-6

Ejendomstype

Etageareal

Grund

391 m²

4.960 m²

Brahetrolleborg Vandmølle

Efter omfattende restaurering udbydes hermed Brahetrolleborg Vandmølle til salg.

Brahetrolleborg Mølle er oprindelig opført som slotsmølle i 1792 for Brahetrolleborg Slot, som har en lang og spændende historie, der strækker sig helt tilbage til midten af 1100 tallet.

Bygningen ligger overfor slottet og slotssøen, hvor Silke Å udspringer fra. Til bagsiden er der flot udsigt over engdrag med Silke Å, der blev nyslynget for ca. 10 år siden, hvilket har bidraget til det rige dyreliv i området.

Ejendommen er beliggende ca. 1 km. øst for Korinth, en by med ca. 1.000 indbyggere. Korinth er tidligere kåret til "Årets Landsby" pga. af bl.a. det rige foreningsliv.

Området er meget naturskønt med store søer, bakket terræn og vidtstrakte skove.

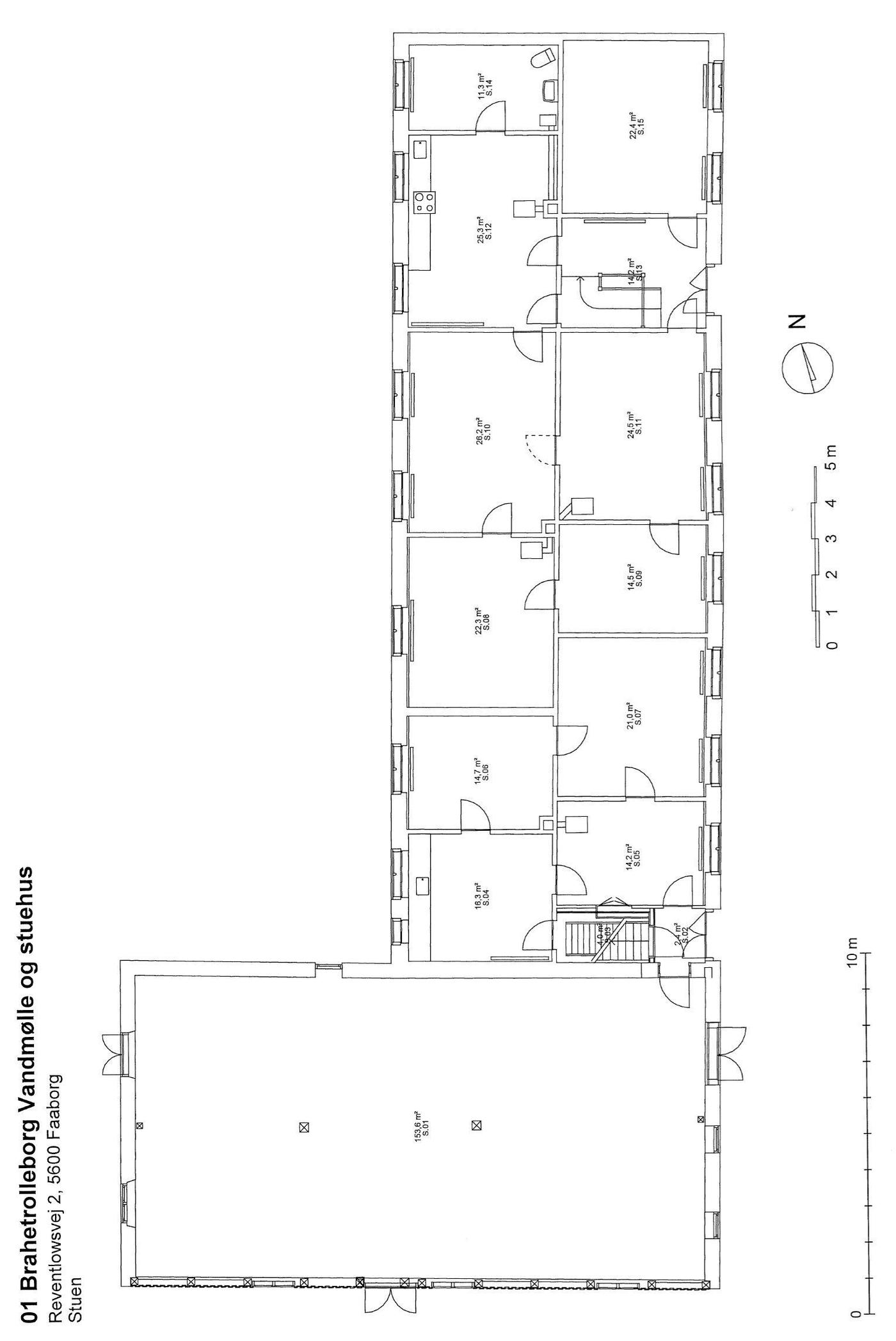
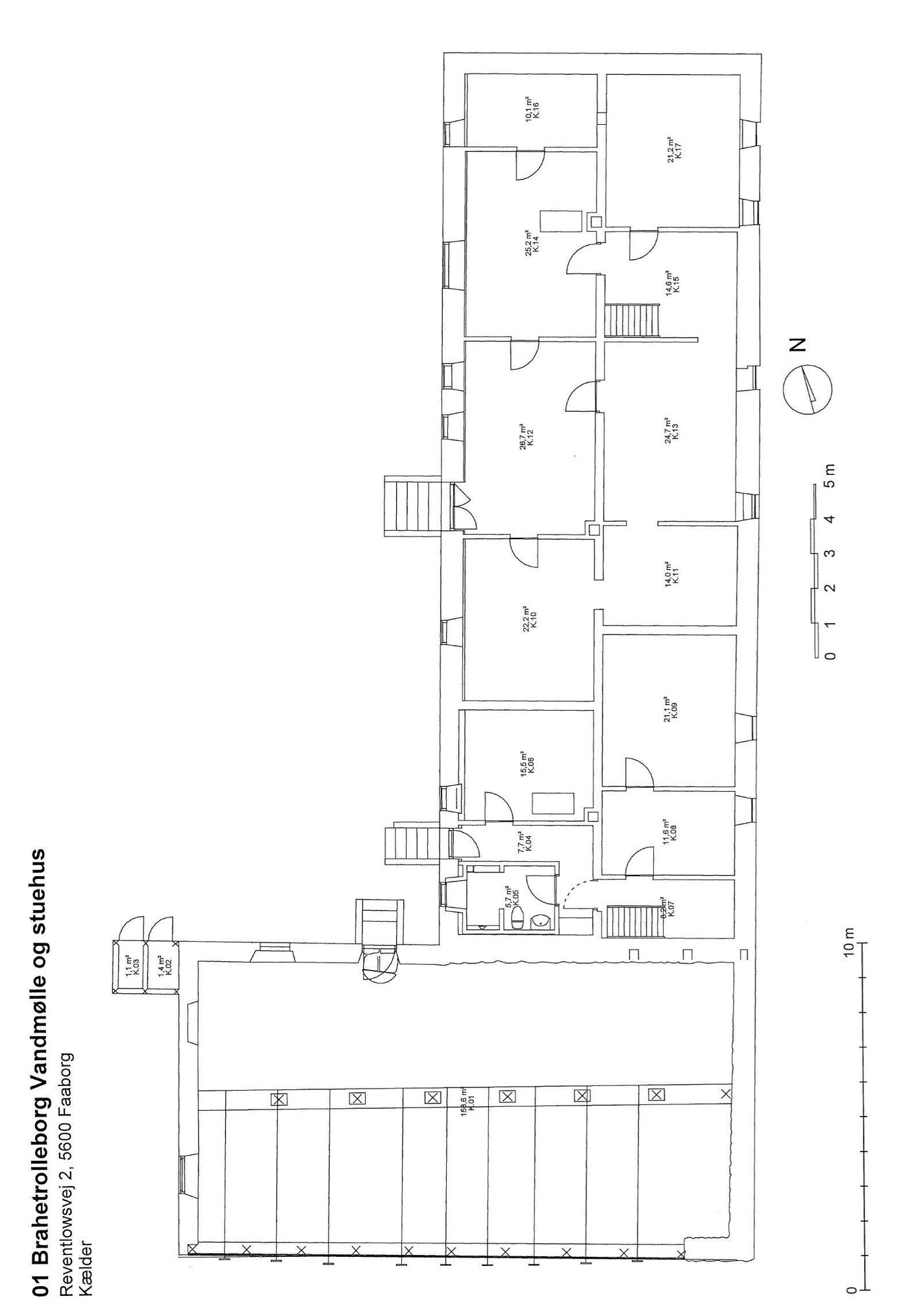
Ejendommen blev i 2014-2016 gennemgribende restaureret af Kulturstyrelsen. Restaureringen omfattede bl.a. nyt tag, facaderenovering og "genopførelse" af bygningen, hvor møllen var placeret. Bygningen indeholder 2 lejligheder, hvoraf den ene er udlejet og den anden ledig.

Den ledige lejlighed (75 m²) er ligeledes blev restaureret. Lejligheden er i stueplan indrettet med 3 værelser og køkken (uden hårde hvidevarer). I kælderen er der indrettet nyt badeværelse, depotrum samt fyrrum med nyt pillefyr.

Den anden lejlighed har været udlejet gennem istandsættelsesforløbet og er således ikke restaureret indvendigt.

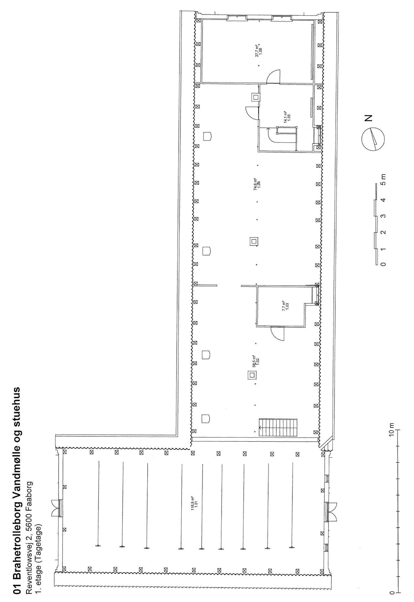
Udover beboelsesarealet besidder ejendommen en større erhvervsdel, den oprindelige vandmølle. Denne består af 3 plan og indeholder et stort spændende lokale i stueetagen på 151 m². Herudover en tagetage med et stort åbent rum med loft til kip og med markante flotte fritlagte hanebånd. Slutteligt et lavloftet kælderareal med flot kampstensfundament.

Bygningen fremstår med gulpudsede facader og er tagdækket med røde vingetal. Den oprindelige mølle har facade i sortmalet træ.

Bygningen er fredet.

Ejendommen sælges for Freja Ejendomme A/S og sælges således med ansvarsfraskrivelsesklausul.

Læs mere

Denne ejendom er solgt

Vil du vide mere?

Ulrich Nielsen

uni@nordicals.dk

+4520267090

Vestergade 165, 5700 Svendborg

+4563217090

5700@nordicals.dk

Besøg vores mæglerside

Lignende ejendomme

Til top