Egensevej 15
5700 Svendborg

Sagsnr. 73110-8

Ejendomstype

Etageareal

Grund

Energiklasse

646 m²

1.266 m²

D

Domicilejendom

Sjældent udbudt domicilejendom, opført med gule mursten tilbage i 1890 og beliggende i hjertet af Svendborg i det rolige og meget populære Høje Bøge kvarter, kun et par minutters gang fra byens gågade.

Ejendommen er før i tiden kendt som Svendborgs retsbygning, men er i 2002 ombygget og indrettet som kontordomicil for daværende rådgivende ingeniørfirma. Efterfølgende og siden 2005 er ejendommen blevet anvendt som kontor for landinspektør virksomhed. Geopartner kigger sig om efter nye lokaliteter, og ejendommen leveres derfor fri til købers disposition.

Der er tale om en stilfuld ejendom med arkitektoniske detaljer, og kombinationen af arkitektur og de rolige og dejlige omgivelser, må gøre ejendommen attraktiv for de virksomheder som søger et rummeligt og stilfuldt domicil med tilhørende parkeringspladser.

Domicilejendommen råder i dag over et samlet erhvervsareal på ca. 646 m², og grunden man får med i handlen andrager ca. 1.266 m². Der henvises i den forbindelse til afsnittet "øvrige forhold" i nærværende salgsopstilling.

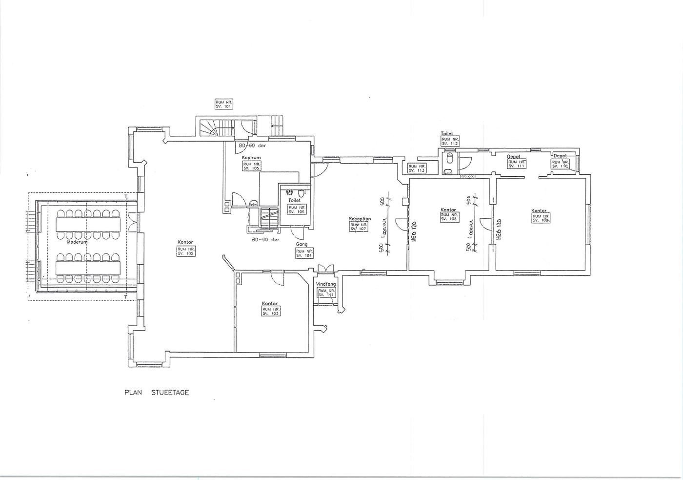
Ejendommen entreres fra det småstensbelagte parkeringsareal. Man får hurtigt fornemmelsen af at træde ind i en velholdt, rummelig og indbydende ejendom, med dejlige højloftede rum, flere med imponerende stuklofter. Stueetagens 360 m² er indrettet med receptionsafsnit midt i ejendommen. Derudover er stueetagen indrettet med 3 kontorer, et åbent kontormiljø samt printerrum. Etagen er forsynet med 2 toiletter. Ejendommen er i 2005 blevet tilført et flot og lyst mødelokale med loft til kip på ca. 40 m² med udgang til have og parkeringsarealet. Samlet set vil ejendommen, afhængigt af anvendelsen, have kapacitet på op til 18 arbejdspladser i stueetagen. En velindrettet og rummelig stueetage i flot og velholdt stand.

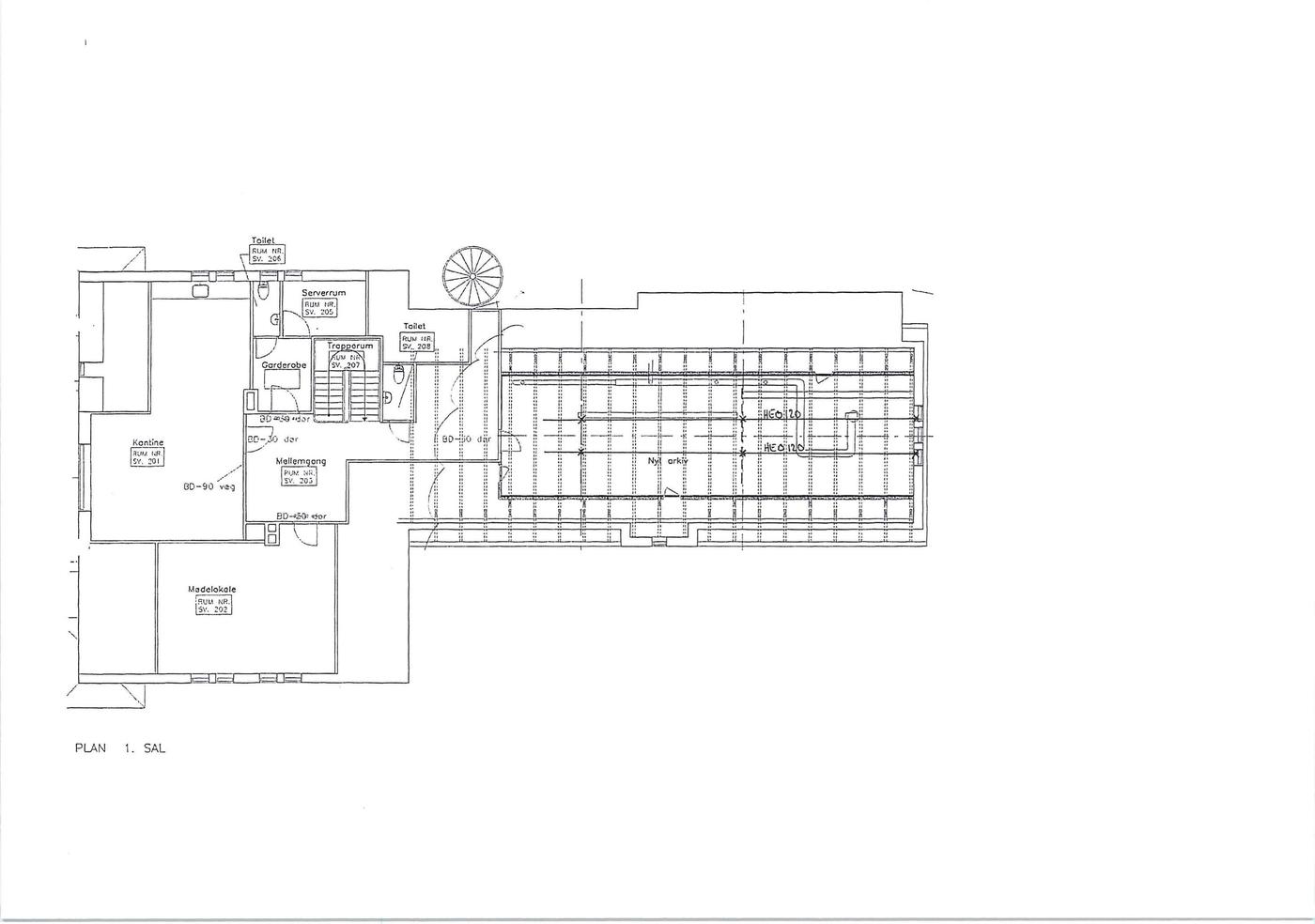
Ejendommens tagetage andrager jf. BBR i alt ca. 193 m². Fra tagetagens gangareal er der adgang til mødelokale/kontor, kantine med god spiseplads, garderobe, serverrum samt to toiletter. Derudover rådes over stort arkiv på ca. 60 m².

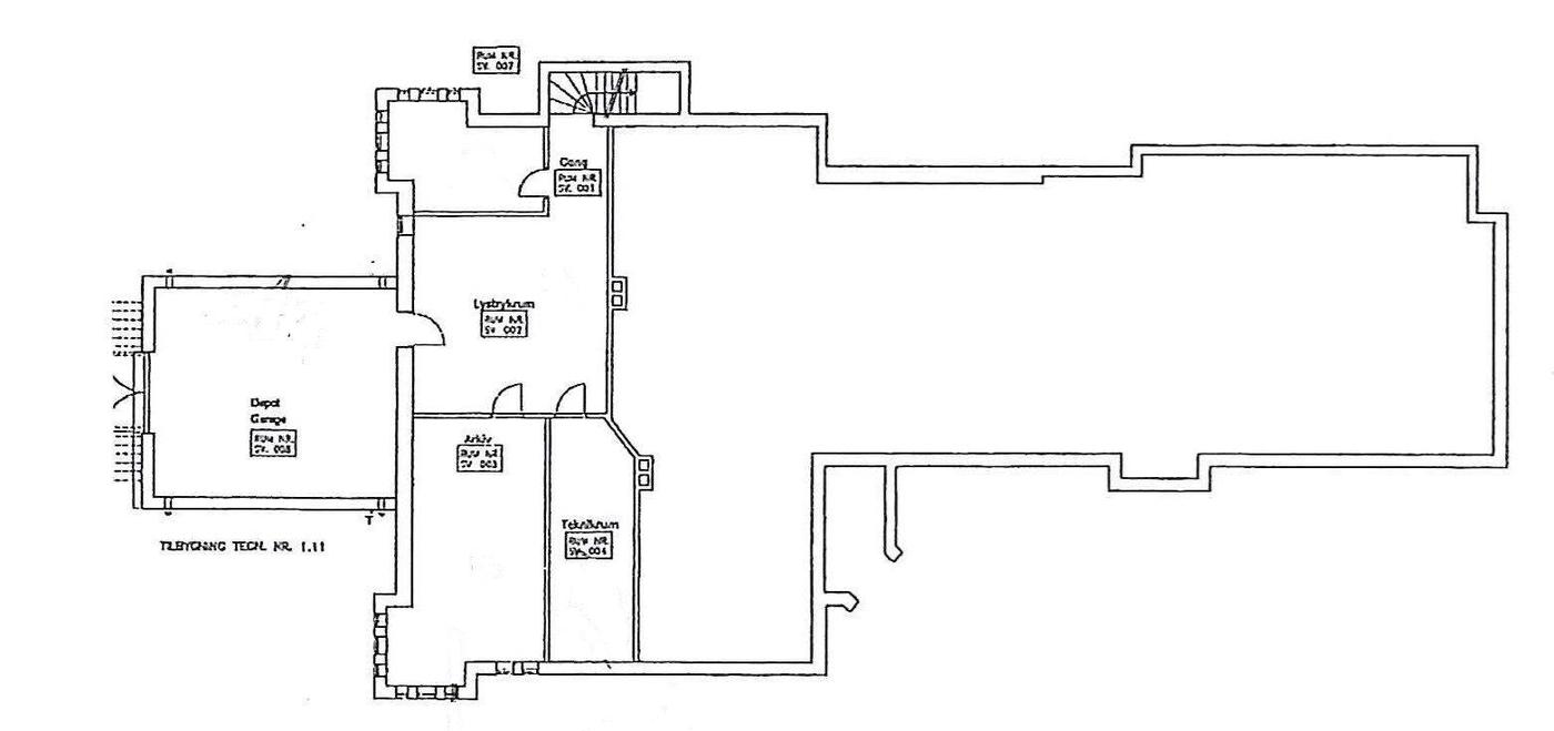
Derudover rådes over en god tør kælder med fin loftshøjde, og som anvendes af nuværende bruger til omklædning, depot og lager.

Ejendommen er i den overvejende del af ejendommen forsynet med vinduer af træ forsynet med et-lags glasrude og forsatsrude. Tilbygningens vinduer er to-lags energiruder. Taget er belagt med skifer. Gulvene er belagt med tæpper, på nær mødelokalet hvor de er lagt pænt trægulv. Generelt fremstår ejendommen meget velholdt.

Der rådes over parkeringsareal med plads til ca. 9 biler.

En fortsat anvendelse som kontordomicil vil være yderst oplagt, men der kan også tænkes i alternative anvendelser til læge/behandler eller måske kombineret bolig og erhverv, hvilket dog vil kræve en myndighedsgodkendelse.

En ejendom for den pladskrævende og kvalitetsbevidste køber der gerne vil etablere sig i bynære omgivelser.

Læs mere

Denne ejendom er solgt

Vil du vide mere?

Vestergade 165, 5700 Svendborg

+4563217090

5700@nordicals.dk

Besøg vores mæglerside

Lignende ejendomme

Til top