Eggertsvej 25A
5700 Svendborg

Sagsnr. 71202-6

Ejendomstype

Etageareal

Grund

Energiklasse

241 m²

620 m²

F

Investeringsejendom

Velholdt og delvist nyopført boligudlejningsejendom med 3 gode lejligheder.

Ejendommen er beliggende centralt i Svendborg i et udpræget boligområde.

Ejendommen er omfattende renoveret og tilbygget i 2015, hvor der er blevet nyopført en 2-etages bygning bagtil. Samtidig er den eksisterende beboelse blevet moderniseret.

Den oprindelige lejlighed består af entré, køkken i åben forbindelse med stue, hvorfra der er udgang til terrasse. Herudover findes værelsesafdeling med 3 værelser samt badeværelse.

Under en del af den oprindelige bygning findes kælder med depotrum.

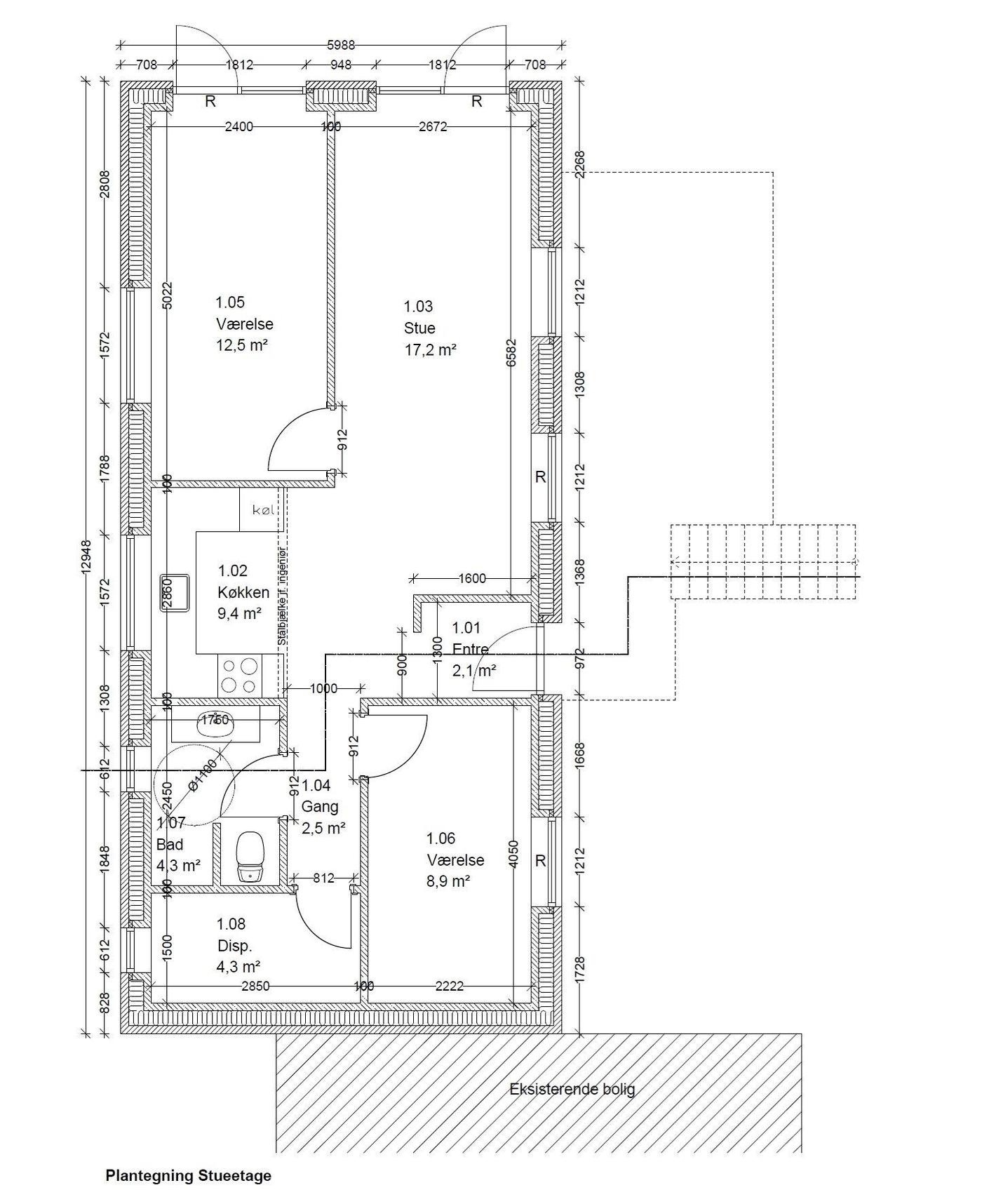
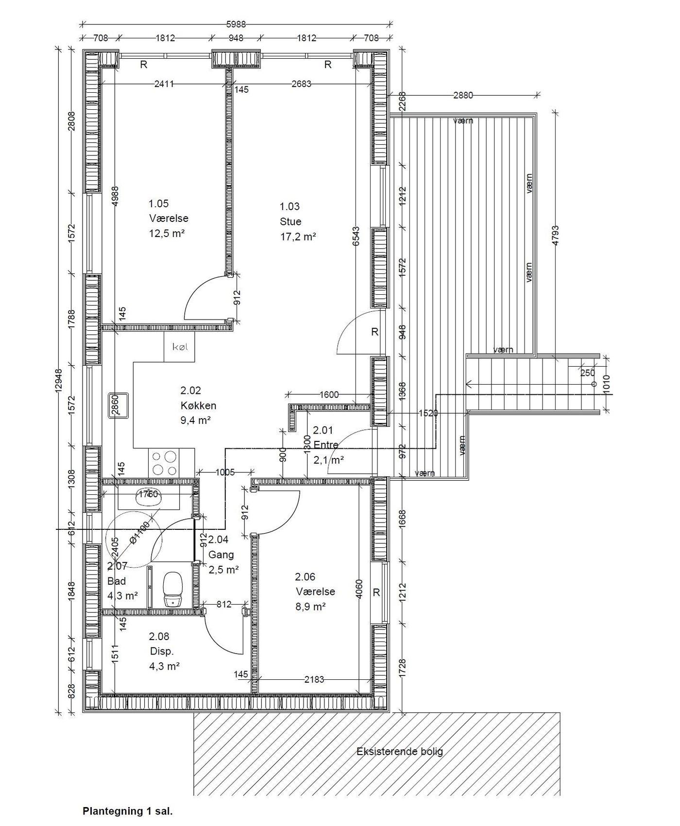
Tilbygningen fra 2015 er indrettet med 2 ens lejligheder i hvert plan.

Lejlighederne indeholder entré, stort køkken i åben forbindelse med stuen, 2 værelser, 1 lille værelse/kammer samt badeværelse med brus.

Fra lejligheden i underetagen er der udgang til egen terrasse fra stuen.

Lejligheden i overetagen har egen træterrasse ud for indgang og stue.

Foran ejendommen findes parkeringspladser på egen grund.

Læs mere

Denne ejendom er solgt

Vil du vide mere?

Ulrich Nielsen

uni@nordicals.dk

+4520267090

Vestergade 165, 5700 Svendborg

+4563217090

5700@nordicals.dk

Besøg vores mæglerside

Lignende ejendomme

Til top