Gerritsgade 40A
5700 Svendborg

Sagsnr. 75441-7

Ejendomstype

Etageareal

Grund

Energiklasse

160 m²

1.297 m²

D

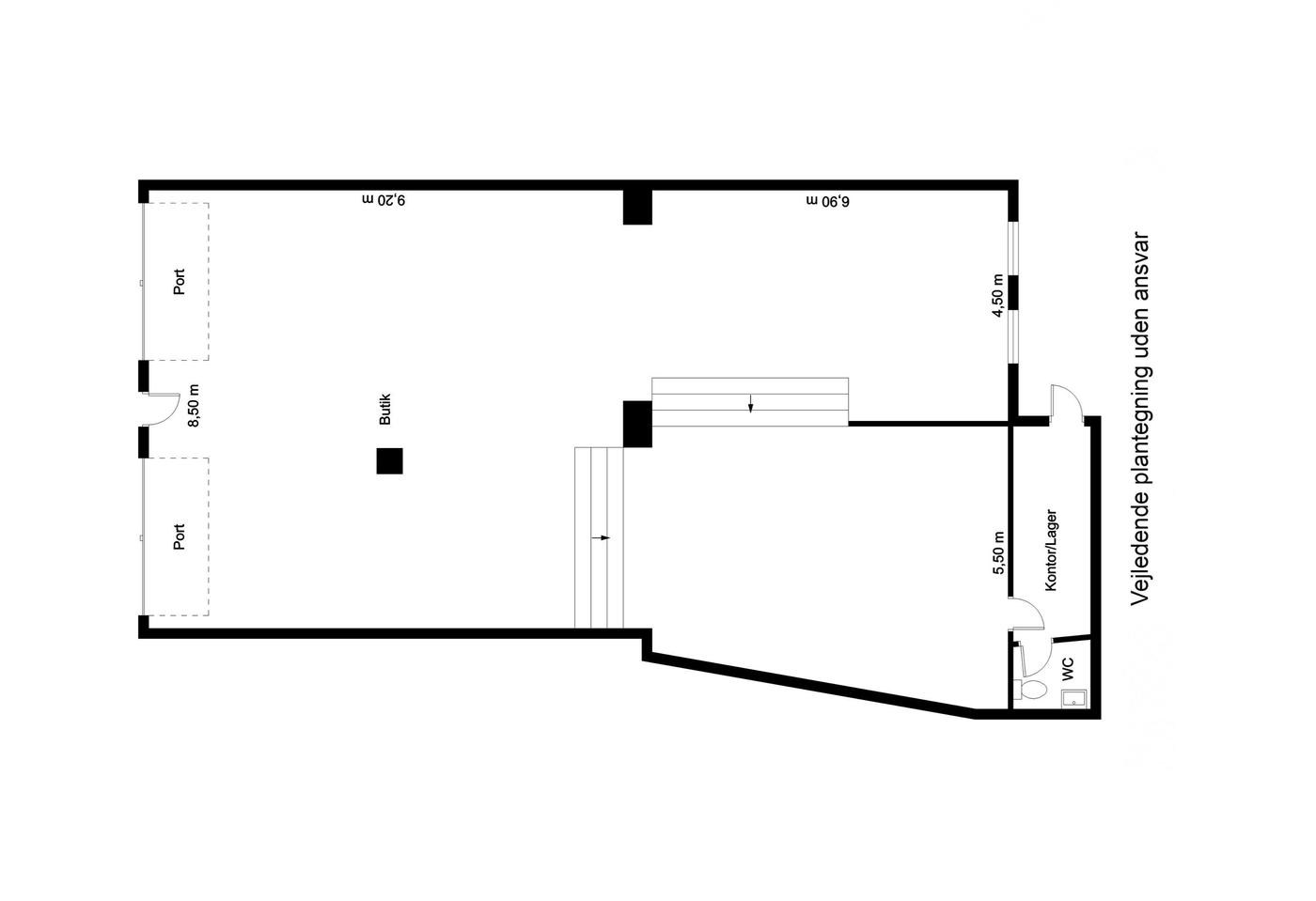
Butikslejemål

Centralt beliggende butikslejemål med A-placering i den del af gågaden, Gerritsgade, hvor kundestrømmen er størst.

Lejemålet har i mange år været udlejet til samme lejer, som har drevet butik med tøj til piger og damer. Lejemålet har en stor og fin facadedækning ud mod Gerritsgade, med niveaufri adgang til butikken. Desuden er der markise dækkende hele facadepartiet, med plads til gågadeudstilling.

Lejemålets ca. 150 m² salgsareal fremstår pæne og imødekommende. Bagerst i lejemålet er der et mindre plateau, som også fungerer som salgsareal, og hvorfra man også har adgang til personalefaciliteter for lejemålet. Der er god loftshøjde og masser af vægplads til brug for en ny lejer - udover de gode udstillingsmuligheder mod Gerritsgade.

Lejemålet overtages med eksisterende gulvbelægning samt varmepumpe over indgangsparti samt 2 øvrige varmepumper i lejemålet. Eksisterende grundbelysning tilhører nuværende lejer.

Som ny lejer i Gerritsgade 40 vil du blive eksponeret i et område med butikker, så som Tryde Andrés, Intersport, Imerco, Synoptik, Pind J. Design, Heiko Stumbeck, Bog & Idé, Jack & Jones samt caféer og restauranter, herunder Jensens Bøfhus, Knæwr Kaffebar, Børsen, Under Uret m.fl.

Et yderst sjældent udbudt lejemål i Svendborgs gågader.

Læs mere

Denne ejendom er udlejet

Vil du vide mere?

Niels Peter Nøddeskou-Fink

npn@nordicals.dk

+4530616109

Vestergade 165, 5700 Svendborg

+4563217090

5700@nordicals.dk

Besøg vores mæglerside

Lignende ejendomme

Til top