Høje Bøge Vej 57
5700 Svendborg

Sagsnr. 71426-6

Ejendomstype

Etageareal

Grund

Energiklasse

167 m²

538 m²

C

Kontantpris

Købspris pr. m²

Afkast

Årlig lejeindtægt

Årlig lejeindtægt pr. m²

Årlig driftsudgift

Årlig driftsudgift pr. m²

2.295.000 kr.

13.743 kr.

6 %

184.200 kr.

1.103 kr.

48.883 kr.

293 kr.

Boligudlejningsejendom med 2 gode lejligheder

Ejendommen er en mindre boligudlejningsejendom beliggende i Høje Bøge kvarteret, som er et attraktiv boområde med kort afstand til Svendborg bymidte og til flere af de store uddannelsesinstitutioner i Svendborg.

Ejendommen er opført i gule mursten og tagdækket med tegltag.

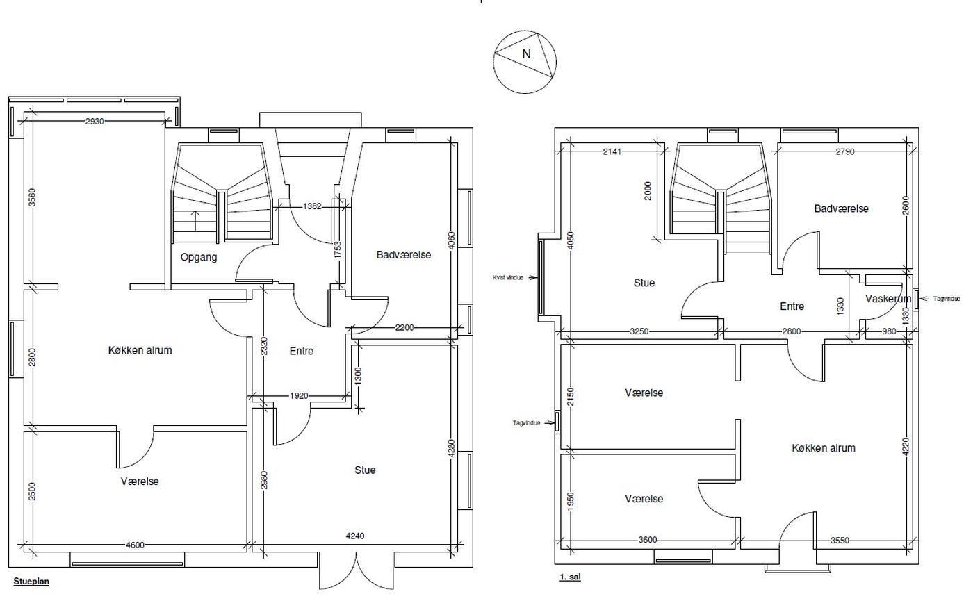
Ejendommen er i 2020 opdelt i 2 lejligheder på hhv. 90 m² og 77 m². Herudover findes stor brugbar kælder, hvor nuværende ejer har søgt og fået godkendt en mindre del til beboelse.

Der er adgang til lejligheden i stueetagen via fælles entre. Herudover er lejligheden med egen entre, nyere stort badeværelse med brus, køkken/alrum, soveværelse samt stue med udgang til have. Lejligheden fremtræder pæn med afhøvlede trægulve.

Lejligheden på 1. sal har lille entre i stueplan med trappe til 1. sal. Her findes repos, badeværelse med brusekabine, soveværelse, stort køkken/alrum med udgang til lille altan. Derudover 2 værelser og et lille depotrum.

Der er egen adgang til kælderen, der er indrettet med entre, køkken, badeværelse, 2 værelser samt fyrrum.

Herudover fælles garage.

Bag ejendommen findes fin lukket have med terrasse.

Læs mere

Vil du vide mere?

Ulrich Nielsen

uni@nordicals.dk

+4520267090

Vestergade 165, 5700 Svendborg

+4563217090

5700@nordicals.dk

Besøg vores mæglerside

Lignende ejendomme

Til top