Nordre Ringvej 125
5700 Svendborg

Sagsnr. 75384-1

Ejendomstype

Etageareal

Grund

1.050 m²

4.208 m²

Forretnings-/værkstedsejendom

I Svendborgs nordlige erhvervsområde udbydes denne kombinerede forretnings- og værkstedsejendom.

Ejendommen er beliggende mellem Stark og Bygma i et velfungerende erhvervsområde, tæt på Ring Nord, som har direkte til- og frakørsel til motorvejen mod Odense.

Af virksomheder i området kan udover Stark og Bygma bl.a. nævnes Lemvigh-Müller, Bi-Plast, Michaels Jagt og Fiskeri, NK Biler, TekTrol Anti Rust og Svendborg Camping Center.

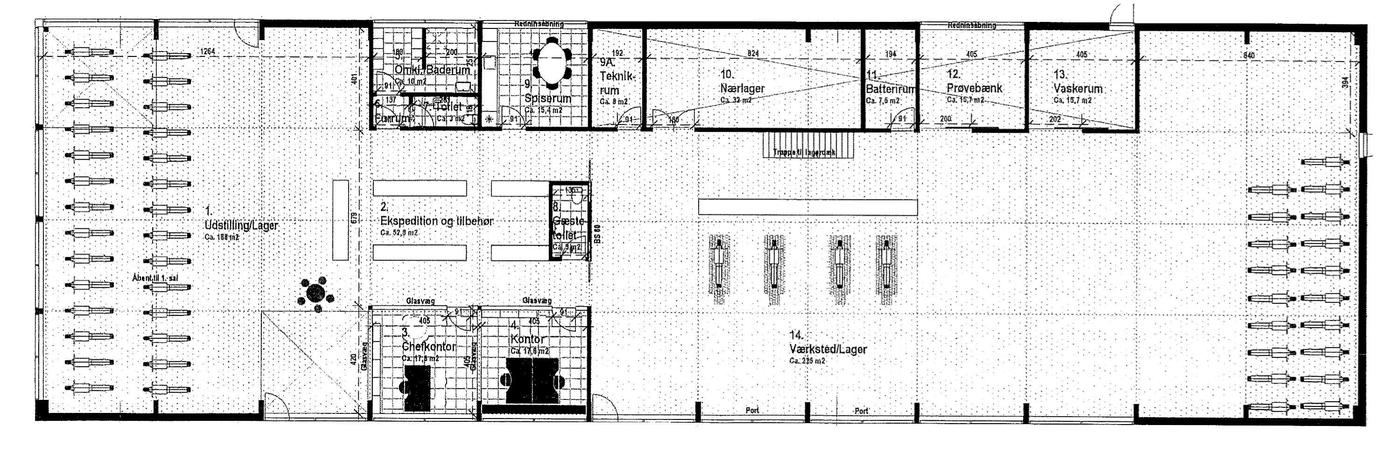
Ejendommen er særdeles godt indrettet og udnyttet med 1.050 m² fordelt på 2 afsnit, 799 m² i stueetagen og 251 m² til indskudte dæk.

Det første afsnit med glasfacade er indrettet med udstillings- og ekspeditionsafsnit på ca. 240 m², mødelokale og kontor med glaspartier og velfærdsfaciliteter i form af frokoststue og omklædning/bad.

Det andet afsnit er indrettet med et værksteds- og lagerafsnit på ca. 225 m² og med nærlagerrum samt vaskerum og teknik.

Dele af ejendommen er udnyttet med flere indskudte dæk hvor loftshøjden er beskeden.

Store dele af ejendommen råder over en loftshøjde på 4,5 meter. Gulvene er støbte og epoxybehandlet og ejendommens loft er beklædt med troltekt.

Der findes 2 hejseporte på hver 4x4 meter.

Lejemålet er sikret med 63 AMP.

Ejendommen er beliggende på en 4.200 m² stor grund med gode tilkørsels- og parkeringsforhold.

Læs mere

Denne ejendom er udlejet

Vil du vide mere?

Ulrich Nielsen

uni@nordicals.dk

+4520267090

Vestergade 165, 5700 Svendborg

+4563217090

5700@nordicals.dk

Besøg vores mæglerside

Lignende ejendomme

Til top