Ryttermarken 3, m.fl.
5700 Svendborg

Sagsnr. 73319-6

Ejendomstype

Etageareal

Grund

560 m²

13.248 m²

Kombineret bolig- og erhvervsejendom

Unik beliggenhed i Svendborgs vestlige erhvervsområde.

Ejendommen er en nyere kombineret bolig- og erhvervsejendom opført i 2010.

Bygningerne er trukket tilbage fra offentlig vej og ligger på en stor parklignende grund med egen sø og samtidig grænser grunden op til Sofielundskoven med rigt dyreliv.

En lille og for mange nok ukendt oase midt i et af Svendborgs erhvervsområder.

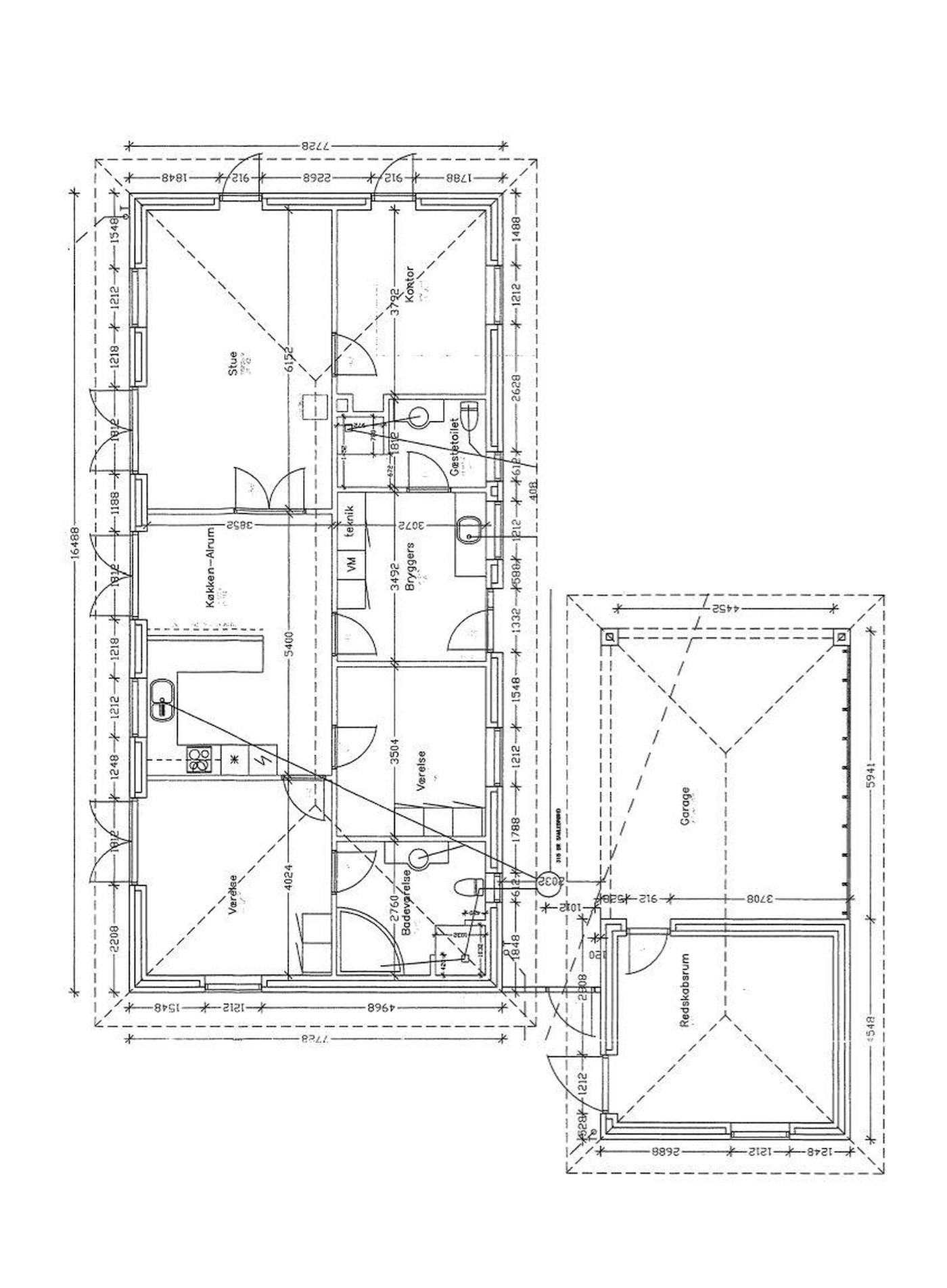
Ejendommen består af en højloftet isoleret lagerhal med mandskabsafsnit samt nydelig privatbeboelse med dobbelt garage og fyrrum.

Hallen er en stålprofilhal med eternittag. Hallen har støbt gulv med afløb og er isoleret. Taget er beklædt med troldtekt og indervægge er med krydsfiner. Hallen har en god frihøjde på ca. 4 meter i siderne og ca. 6,5 meter til kip.

Der er en god portdækning med porte i gavl og i vestvendt side af bygningen. Porten i gavlen måler ca. 4x5,5 meter og i siden 3x4 meter. Der er mandskabsafsnit med omklædningsrum med bad og toilet, fyrrum, frokoststue og kontor.

Beboelsen er opført i røde mursten og tagdækket med sorte betontagsten på saddeltagskonstruktion med afvalmede gavle. Beboelsen fremtræder velbygget bl.a. med murede pudsede indervægge og velindrettet med udgang til terrasse fra flere af beboelsesrummene.

Garagebygningens tagkonstruktion er identisk med beboelsen. Garagen er opført i dels i røde sten og i træ. Garagen er forsynet med elektrisk hejseport. Selve garagen er uisoleret, men det bagvedliggende lager-/fyrrum er isoleret.

Tilkørsel til ejendommen sker via privat fællesvej. Arealerne ved bygningerne er befæstet og overvejende pålagt småsten.

Foran hallen findes areal med vaskeplads med tilhørende olieudskiller og sandfang.

Ved privatbeboelsen er gangarealerne omkring bygning og terrasse belagt med fliser.

Læs mere

Denne ejendom er solgt

Vil du vide mere?

Ulrich Nielsen

uni@nordicals.dk

+4520267090

Vestergade 165, 5700 Svendborg

+4563217090

5700@nordicals.dk

Besøg vores mæglerside

Lignende ejendomme

Til top