Ryttervej 49
5700 Svendborg

Sagsnr. 75418-1

Ejendomstype

Etageareal

Grund

Energiklasse

615 m²

3.673 m²

C

Kontorejendom

Velholdt og indflytningsklar domicilejendom opført i 1999.

Ejendommen er beliggende på en 3.673 m² stor grund. På grunden findes 2 parkeringsarealer med plads til i alt ca. 25 biler. Endvidere findes 2 terrasser og et større grønt areal bagtil.

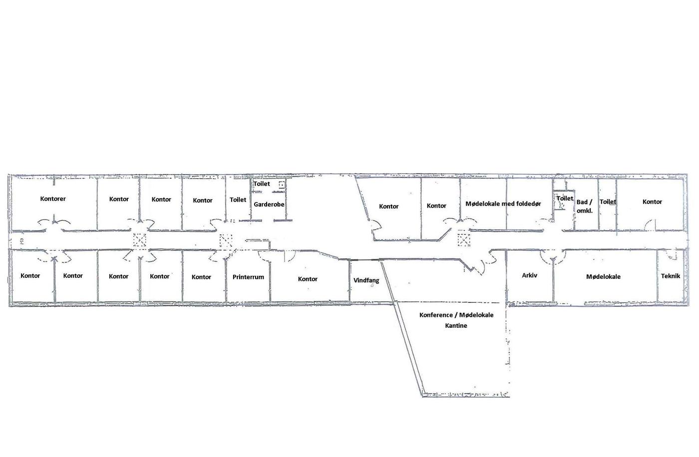
Ejendommen entreres via vindfang med direkte adgang til reception og er indrettet med fordelergang med adgang til større konferencerum/kantine med flot nyere køkken, 13 kontorer, 3 mødelokaler, arkiv/depotrum, teknikrum, 4 toiletter samt bade- og omklædningsrum.

En præsentabel og praktisk indrettet kontorejendom, som primært er indrettet til virksomheder med behov for enkeltmandskontorer. Der er dog mulighed for åbning af kontorerne, såfremt behovet for større kontorer måtte være til stede.

Ejendommen er tagdækket med bølgeeternit og med ovenlys i fordelergangen. I konferencerummet findes elektrisk solafskærmning for vinduerne.

Det her er ejendommen til lejeren der ønsker en regulær og rummelig domicilejendom i en god kvalitet, og som kræver gode parkeringsforhold. Ejendommen er anvendelig til kontorvirksomhed eller f.eks. som institution eller klinik.

Ejendommens ejer er også ejer af nabogrunden. Der vil således være mulighed for leje af yderligere areal, hvis der måtte være et behov.

Læs mere

Denne ejendom er udlejet

Vil du vide mere?

Vestergade 165, 5700 Svendborg

+4563217090

5700@nordicals.dk

Besøg vores mæglerside

Lignende ejendomme

Til top