Tinghusgade 20B & 20C
5700 Svendborg

Sagsnr. 73071-8

Ejendomstype

Etageareal

Grund

Energiklasse

545 m²

592 m²

C

Erhvervsejendom med 2 erhvervsejerlejligheder

Erhvervsejendom indeholdende 2 særskilte erhvervsejerlejligheder med vandret skel, beliggende Tinghusgade 20B og Tinghusgade 20C.

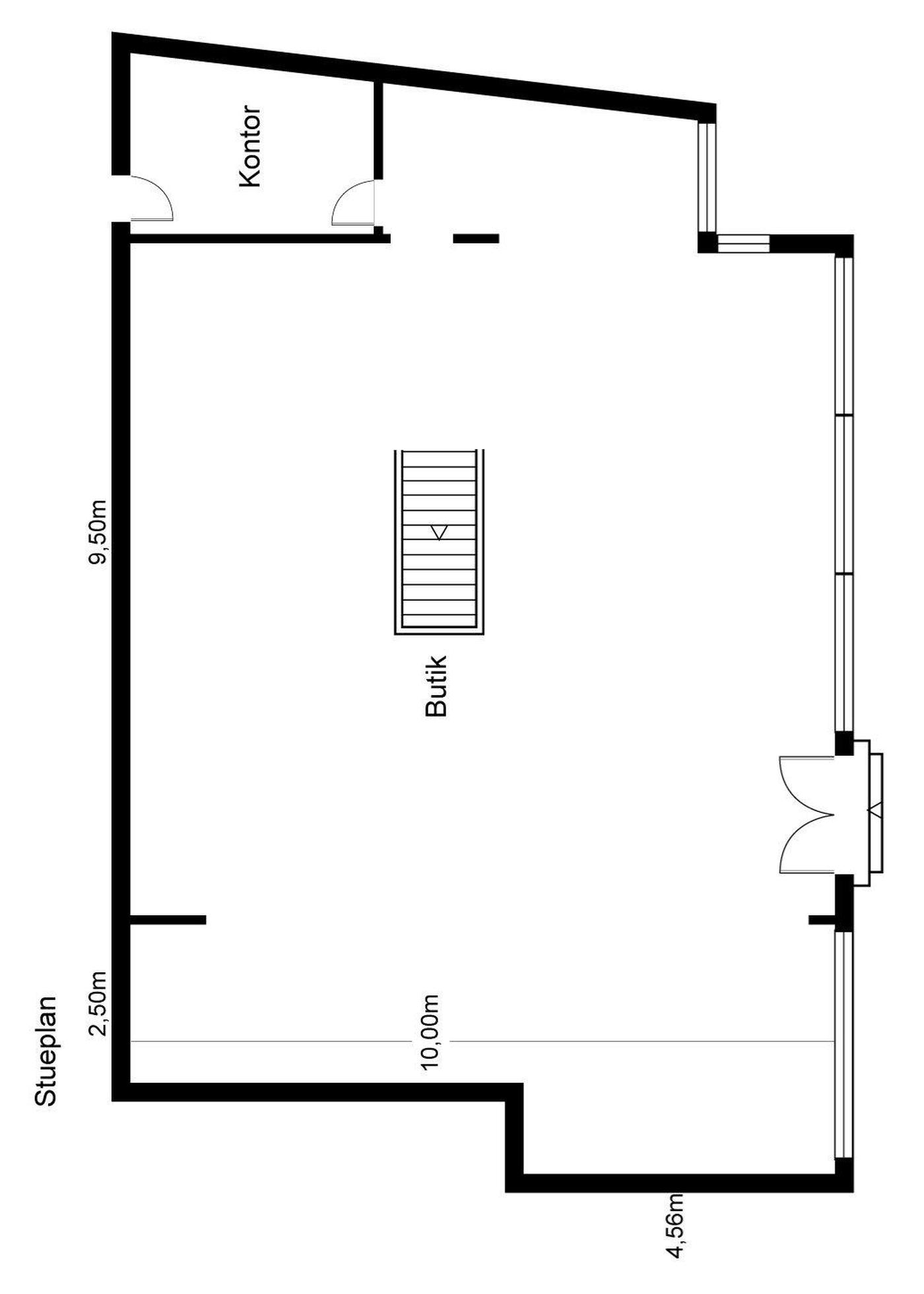
Tinghusgade 20B - stueetagen
Erhvervsejerlejlighed til detailhandel, som jf. BBR-Meddelelsen andrager 346 m². Lejemålet er p.t. frit til købers disposition.

Ejerlejligheden er indrettet med salgsareal i stueetagen, med hovedindgang fra Tinghusgade samt bagindgang fra gården. Stueetagen andrager ca. 171 m² og fremtræder lyst og indbydende med særdeles god facadedækning på ca. 15 meter. Der er fra stueetagen, via indvendig trappe, adgang til underetage på ca. 175 m², indrettet med yderligere salgsareal samt lager- og personalefaciliteter.

Lejemålet anvendes til butik/detail, men er også særdeles velegnet til liberalt erhverv, som f.eks. ejendomsmægler, pengeinstitut, forsikringsselskab m.m.

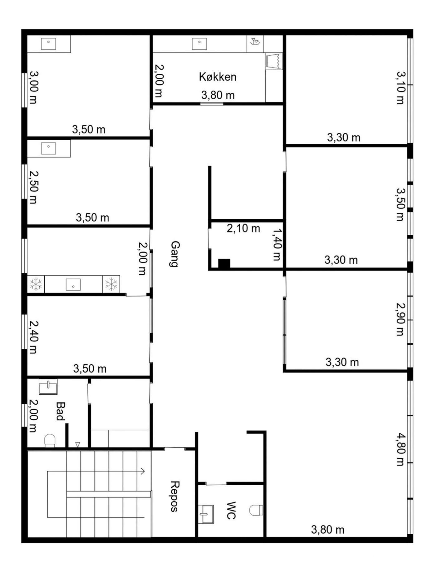
Tinghusgade 20C - 1. sal
Denne ejerlejlighed er p.t. udlejet klinik/behandler.

Ejerlejlighed andrager i alt jf. BBR-Meddelelsen 199 m² og er indrettet med velkomstområde med receptionsafsnit med tilhørende kontor, venteværelse samt garderobe og kundetoilet. Fra gangarealet er der adgang til personalefaciliteter i form af kantine samt garderobe og toilet samt 3-4 kliniklokaler og et mindre lokale indrettet til sterilisation.

Ejerlejligheden fremtræder lys og med en rigtig god indretning. Der findes akustiklofter og delvis glasvæg til nogle af lokalerne. Gulvene er p.t. belagt med gulvtæpper og linoleum.

I gården bagved ejendommen vil køber råde over 2 stk. parkeringspladser.

Ejendommen erbeliggende lige overfor Svendborg Bycenter og med kun ca. 300 meter til byens gågadenet, tæt på byens store hotel.

Sideløbende med salget af ejendommen, forsøges udlejning af ejerlejligheden 20B. Som udgangspunkt kan der kun ske køb af hele ejendommen, ikke køb af ejerlejlighederne særskilt.

Læs mere

Denne ejendom er solgt

Vil du vide mere?

Vestergade 165, 5700 Svendborg

+4563217090

5700@nordicals.dk

Besøg vores mæglerside

Lignende ejendomme

Til top