Vestergade 78
5700 Svendborg

Sagsnr. 75269-8

Ejendomstype

Etageareal

Energiklasse

382 m²

F

Butik/Café/Kiosk/Take Away

Yderst synligt erhvervslejemål beliggende mod en af Svendborgs mest trafikerede indfaldsveje.

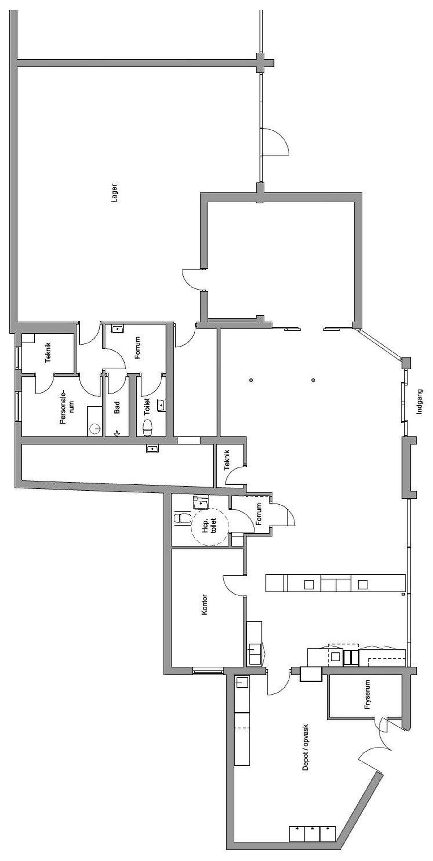
Der har senest været drevet grillbar fra lejemålet, som er beliggende i forbindelse med standeranlægget fra firmaet Go'on. Før anvendelsen til grillbar, blev lejemålet brugt som en del af en Shell servicestation med værksted og vaskehal. I dag er vaskehallen udlejet til 3. mand.

Lejemålet er indrettet med pænt og regulært salgsareal med klinkegulv og adgang til handicaptoilet og kontor.

I forbindelse med etableringen af grillen blev der etableret ny disk. Disken befinder sig stadig i lejemålet og kan evt. anvendes af ny lejer. Sammen med driften af grillen, blev der endvidere etableret afsnit til spillemaskiner. Dette areal kan med fordel inddrages som salgsareal. Salgsareal og arealet til spilmaskinerne andrager i alt ca. 120 m².

Endvidere findes værkstedsafsnit med egen hejseport samt toilet og omklædning. Værkstedet kan anvendes som lager. I lejemålets anden ende findes også lagermuligheder.

Et rummeligt lejemål som kan anvendes til flere forskellige former for erhverv. En lejer har ikke noget med driften af såvel benzinstanderne som vaskehallen at gøre.

Der er registreret trafiktal på ca. 9.300 biler i døgnet.

Læs mere

Denne ejendom er udlejet

Vil du vide mere?

Vestergade 165, 5700 Svendborg

+4563217090

5700@nordicals.dk

Besøg vores mæglerside

Lignende ejendomme

Til top