Vestergade 167D
5700 Svendborg

Sagsnr. 75382-1

Ejendomstype

Etageareal

Grund

Energiklasse

1.000 m²

24.970 m²

E

Butik i Svendborg Storcenter

Regulært indrettet butikslejemål beliggende i et attraktivt område i rivende udvikling.

Der er tale om en erhvervsejerlejlighed på 1.000 m² med hele arealet beliggende i stueetagen.

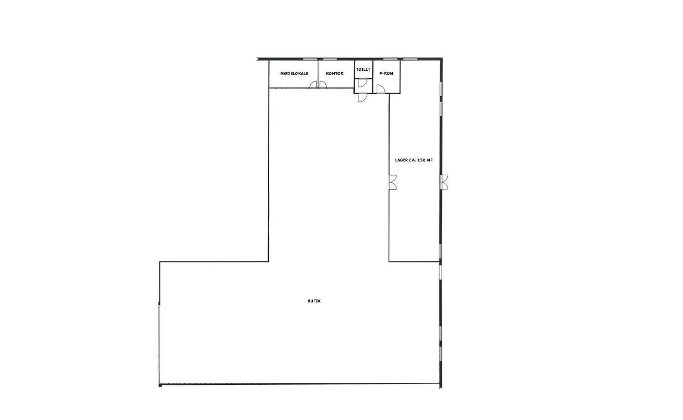
Lejemålet er indrettet med et stort regulært vinkelbygget salgsareal med en facadedækning på ca. 9 meter og med en loftshøjde på ca. 4 meter. I den bagerste del af lejemålet findes lager på ca. 150 m² samt kontor, mødelokale, frokoststue og toilet.

Lejemålet er beliggende i Svendborg Storcenter sammen med bl.a. Kvickly, Kids Coolshop, thansen, Skousen og Svendborg Isenkram.

På den modsatte side af Mølmarksvej finder vi Lidl, ILVA, Jysk, Harald Nyborg og Elgiganten.

Lejemålet overtages ryddeligt og rengjort uden nymalede vægge og med den nuværende gulvbelægning i form af stentæppe samt med den nuværende grundbelysning.

Særdeles gode parkeringsfaciliteter omkring Svendborg Storcenter, bl.a. med et 10.000 m² stort parkeringsareal i kælderen. Der betales ikke for parkering.

Læs mere

Denne ejendom er udlejet

Vil du vide mere?

Vestergade 165, 5700 Svendborg

+4563217090

5700@nordicals.dk

Besøg vores mæglerside

Lignende ejendomme

Til top