Vindebyørevej 50
5700 Svendborg

Sagsnr. 73099-8

Ejendomstype

Etageareal

Grund

Energiklasse

478 m²

10.388 m²

G

Blandet bolig- og erhvervsejendom

Er du til naturskønne omgivelser og kunne du tænke dig at bo ved mark, skov og tæt på strande - måske med en bed & breakfast løsning! Her muligheden for at slå sig ned i idylliske Vindebyøre, etablere sig med privat beboelse og få supplerende lejeindtægter ved bed & breakfast løsning og hytteudlejning på 10.000 m² stor dejlig naturgrund.

Det er sådan i grove træk overskrifterne på denne unikke bolig- og erhvervsejendom, beliggende i fantastiske omgivelser på smukke Vindebyøre.

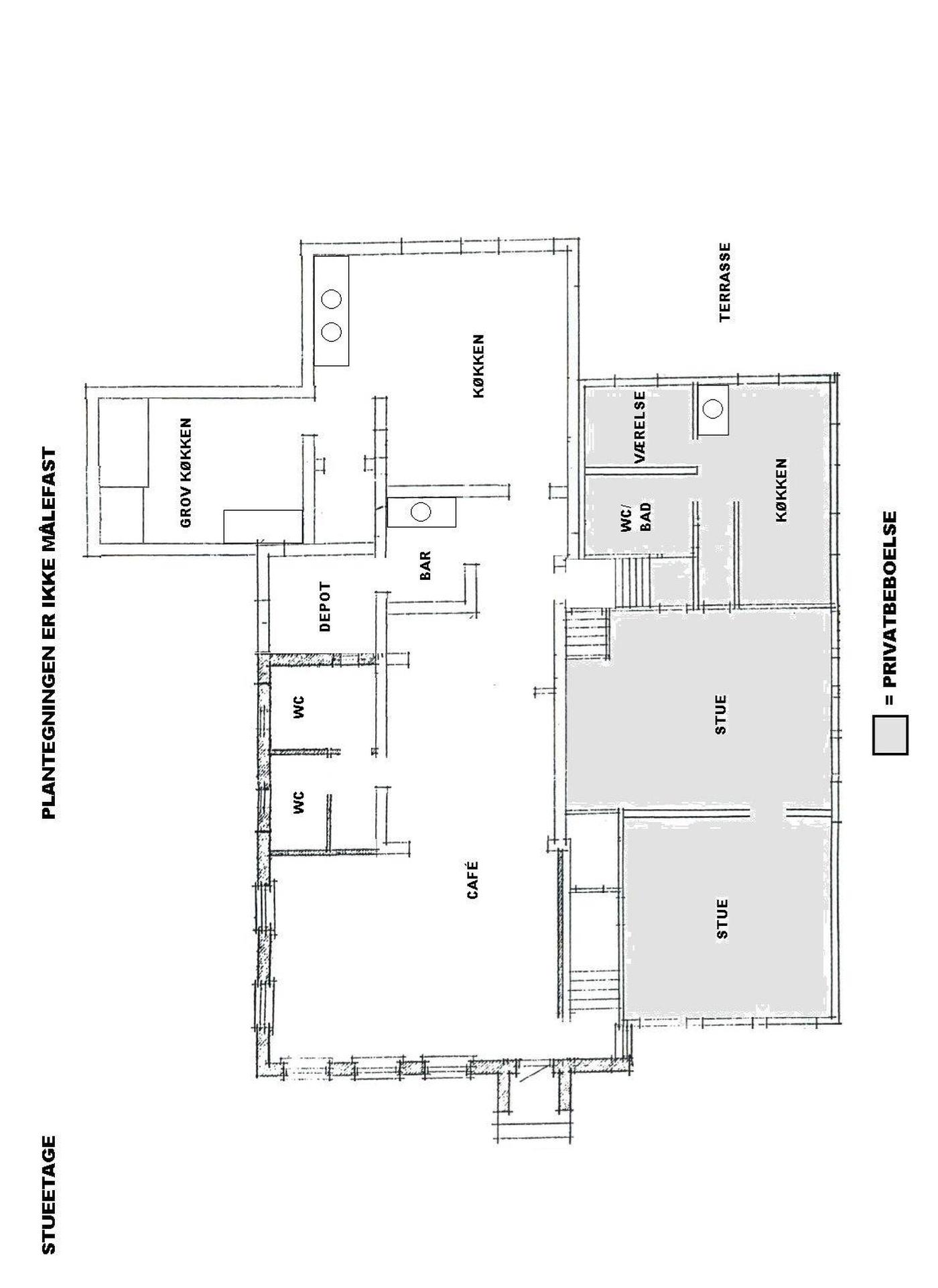
Der har i mange år været drevet Cafe/Spisested fra ejendommen, men nu er tiden kommet dertil, hvor sælger trækker sig fra køkkenet og dermed efterlader en ejendom med masser af muligheder til en ny køber.

Hovedbygningen, som i stueetagen andrager ca. 290 m², har tjent som både bolig og erhverv for den nuværende ejer. Den er indrettet med krostue med barområde, kundetoiletter og ikke mindst godt udnyttet og velindrettet køkken med særskilt vaskeafsnit og køl/frys.

Derudover findes boligdel med hyggelig opholdsstue med sildebensparketgulv, soveværelse samt mindre værelse og køkken og toilet.

Endvidere findes kælder på ca. 85 m² med vaskerum og depot.

På 1. sal med særskilt adgang, findes beboelseslejlighed på ca. 63 m² som p.t. er fri til købers disposition. Den vil evt. kunne udlejes. Til lejligheden hører en dejlig stor terrasse.

Til ejendommen hører endvidere dejlig stor vestvendt terrasseområde til udeservering samt areal til parkering for kroens gæster.

En køber vil også få stor glæde af den 10.000 m² store naturgrund, hvorpå der bl.a. findes 5 hytter til udlejning, en lille sø med gangbro til areal hvor der tidligere har været anlagt en minigolfbane.

Se videopræsentation af ejendommen - klik her


Læs mere

Denne ejendom er solgt

Vil du vide mere?

Vestergade 165, 5700 Svendborg

+4563217090

5700@nordicals.dk

Besøg vores mæglerside

Lignende ejendomme

Til top