Algade 15, st.
5750 Ringe

Sagsnr. 30044-1

Ejendomstype

Etageareal

Energiklasse

201 m²

C

Årlig leje

Leje pr. m²

Depositum

Årlig driftsudgift

Årlig driftsudgift pr. m²

140.700 kr.

700 kr.

70.350 kr.

1 kr.

0 kr.

Erhvervslejemål med central placering i Ringe bymidte

Velbeliggende erhvervslejemål i markant ejendom, som med sin centrale placering i Ringe bymidte giver en kommende lejer stor synlighed.

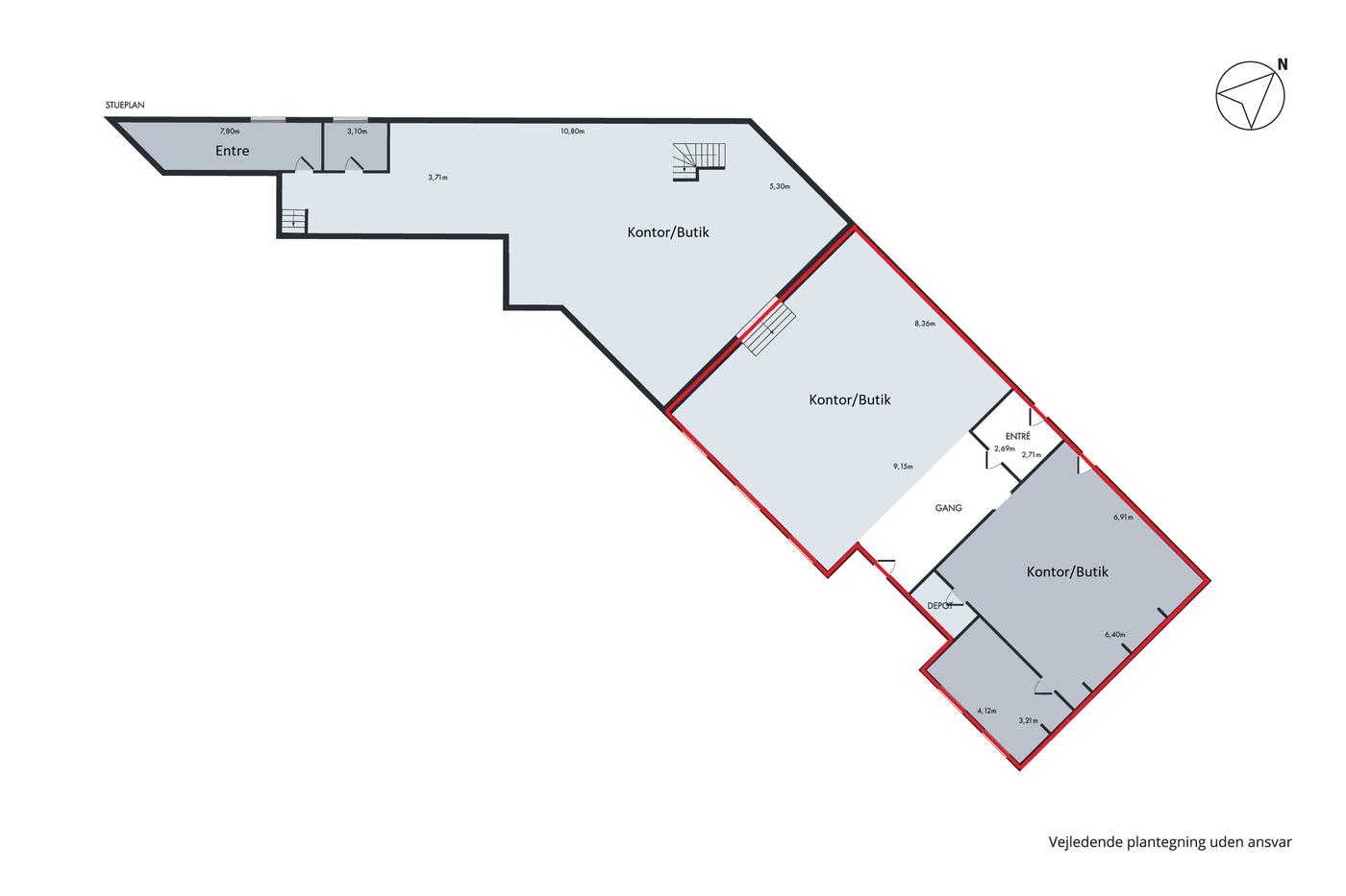
Lejemålet har i en lang årrække været anvendt som bankfilial af Danske Bank og står nu klar til en ny lejer, som kan se sig selv flytte ind i denne yderst præsentabel ejendom. Lejemålet har senest været anvendt til kontorbrug, men lejemålet vil også være særdeles velegnet som butik.

Selve lejemålet består at et stort åbent kontor med god loftshøjde og store vinduespartier på begge sider, som sikrer et rigtig godt lysindfald i lejemålet. Derudover består lejemålet at endnu et kontor med mødelokale, som har egen separat indgang fra gaden.

Lejemålet fremtræder på nuværende tidspunkt delvist med hvide systemlofter med indbygget grundbelysning og ventilation samt gulve primært belagt med sorte tæppefliser. Som billederne viser, så fremstår lejemålet uistandsat og en kommende lejer kan dermed have medindflydelse på indretningen.

Bag ejendommen og i umiddelbar nærhed er der gode parkeringsmuligheder. Der vil også være mulighed for leje af enkelte p-pladser på ejendommen.

Læs mere

Vil du vide mere?

Simon Vinther Blach

svb@nordicals.dk

+4523111988

Kongensgade 27, 1. sal, 5000 Odense C

+4566138060

5000@nordicals.dk

Besøg vores mæglerside

Lignende ejendomme

Til top