Bødkervej 12
5750 Ringe

Sagsnr. 75368-7

Ejendomstype

Etageareal

Grund

Energiklasse

371 m²

9.098 m²

C

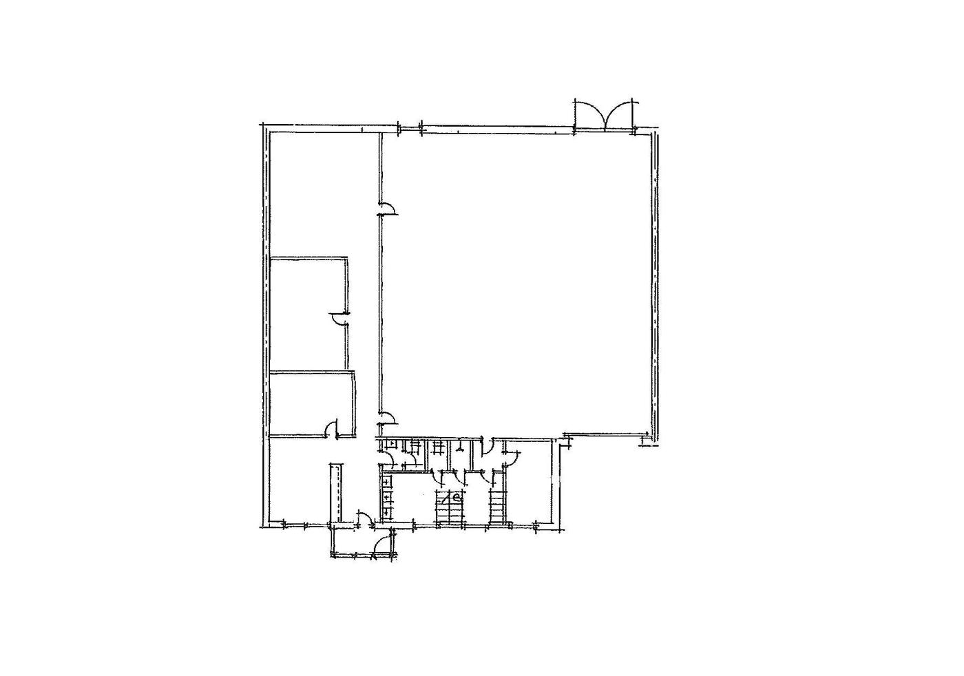
Produktion/Lager

Attraktivt produktions-/lagerlejemål med tilhørende administrationsafsnit.

Lejemålet er beliggende i Ringe Erhvervscenter, der er et mindre erhvervscenter med 6 lejemål, beliggende kun ca. 300 meter fra Svendborgmotorvejen.

Lejemålet består af en regulær søjlefri produktions-/lagerhal på ca. 200 m². Lokalet råder over en loftshøjde på ca. 3 meter i siderne og ca. 5 meter til kip. Der er etableret lysbånd i taget, således at lokalerne fremtræder lyse og indbydende. Gulvet er af beton og der findes elhejseport på ca. 3,5x3 meter. I produktionslokalet blev der i 2012 etableret strålevarme fra varmepaneler tilsluttet naturgasfyr fra samme tidspunkt.

Fra hallen er der adgang til gode personalefaciliteter i form af frokoststue med køkkentrinette, toilet samt omklædnings- og baderum.

Herudover findes administration/modtagelse på ca. 70 m² med særskilt toilet samt kontor/showroom på ca. 100 m². Adskillelsen mellem hallen og kontor/showroom er udført ved en let skillevæg, som kan fjernes ved behov for en større hal.

Foran lejemålet findes stor parkeringsplads belagt med SF-sten.

Et godt veldimensioneret lejemål, der er velegnet til mange erhvervsformål.

Læs mere

Denne ejendom er udlejet

Vil du vide mere?

Niels Peter Nøddeskou-Fink

npn@nordicals.dk

+4530616109

Vestergade 165, 5700 Svendborg

+4563217090

5700@nordicals.dk

Besøg vores mæglerside

Lignende ejendomme

Til top