Industrivej 1, Årslev
5792 Årslev

Sagsnr. 30924

Ejendomstype

Etageareal

Energiklasse

2.701 m²

B

Årlig leje

Leje pr. m²

Depositum

Årlig driftsudgift

Årlig driftsudgift pr. m²

822.825 kr.

305 kr.

411.413 kr.

54.600 kr.

20 kr.

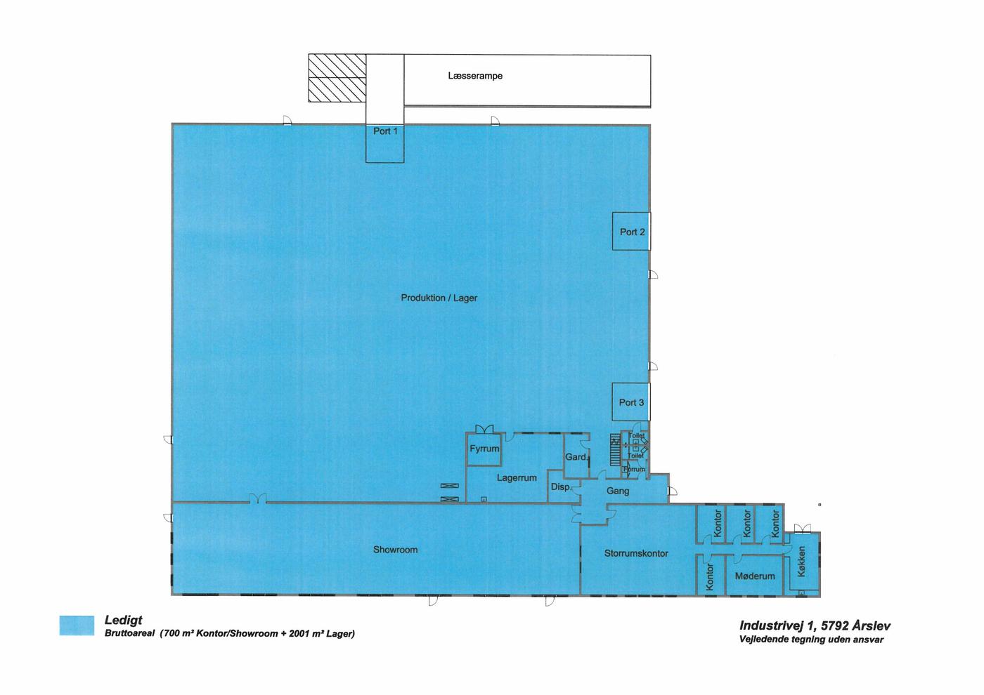
Isoleret lagerhal med tilhørende kontor beliggende tæt på motorvej

I industrikvarteret i Årslev udbydes særdeles synlig erhvervsejendom til leje.

Ejendommen er beliggende ud til den gamle A9-hovedvej og med kun 1 km til motorvejen, er der god infrastruktur til og fra ejendommen.

Ejendommen indeholder lagerhal på 2.001 m² med adgang via 2 porte i niveau eller via port ved rampe.

Hallen er isoleret og opvarmes af caloriferer koblet på oliefyr.

Gulvet i lageret er belagt med asfalt.

I lageret er der etableret et mindre depot/værkstedsrum. Med direkte adgang fra lageret forefindes toilet med bad.

Kontordelen på 200 m² indeholder stort kontor, 5 mindre kontorer, toilet med bad samt køkken med spiseplads. Dertil stort showroom på ca. 500 m², der nemt kan indrettes til kontorer. Dette rum er med store vinduespartier beliggende langs hovedvejen.

Læs mere

Vil du vide mere?

Christopher Bøje

cbo@nordicals.dk

+4551271918

Kongensgade 27, 1. sal, 5000 Odense C

+4566138060

5000@nordicals.dk

Besøg vores mæglerside

Lignende ejendomme

Til top