Frisengårdsvej 7
5800 Nyborg

Sagsnr. 30348

Ejendomstype

Etageareal

Energiklasse

716 m²

C

Årlig leje

Leje pr. m²

Depositum

Årlig driftsudgift

Årlig driftsudgift pr. m²

499.800 kr.

698 kr.

249.900 kr.

22.134 kr.

31 kr.

Boksbutik på central placering i Nyborg

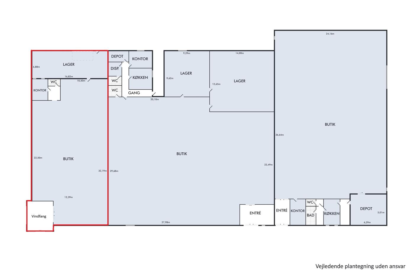
Lejemålet består af i alt 716 m², som fordeler sig med 600 m² boksbutik inkl. personalefaciliteter samt 116 m² lager. Lejemålet har tidligere været benyttet af thansen.

Salgsarealet er indrettet som et stort åbent lokale med loft til kip, som er et shedtag med flere ovenlysvinduer, der sikrer et godt naturligt lysindfald i lejemålet. Den åbne indretning gør lejemålet meget fleksibelt i forhold til indretning for ny lejer. I forlængelse af butikken er der indrettet personalefaciliteter i form af frokoststue samt garderobe og toilet.

Lejemålet består derudover af et lager i forlængelse af butiksarealet, der for nuværende anvendes til dækcenter, hvor der er adgang via port.

Der vil være mulighed for at leje yderligere areal i direkte forbindelse med lejemålet i form af enten 1.300 m² eller 2.300 m² med tilhørende varegård på ca. 600 m².

Lejemålet er beliggende i større handelsområde med naboer som Føtex, Rema 1000, PureGym, Asia Restaurant, Kirkens Korshær, Nyborghallerne m.fl.

Foran ejendommen forefindes mange gratis parkeringspladser.

For yderligere information om lejemålet og dets muligheder, kontakt Nordicals Odense.

Læs mere

Vil du vide mere?

Simon Vinther Blach

svb@nordicals.dk

+4523111988

Kongensgade 27, 1. sal, 5000 Odense C

+4566138060

5000@nordicals.dk

Besøg vores mæglerside

Lignende ejendomme

Til top