Frisengårdsvej 7
5800 Nyborg

Sagsnr. 30348-3

Ejendomstype

Etageareal

Energiklasse

3.016 m²

C

Årlig leje

Leje pr. m²

Depositum

Årlig driftsudgift

Årlig driftsudgift pr. m²

2.282.300 kr.

757 kr.

1.141.150 kr.

106.981 kr.

35 kr.

Stor boksbutik i attraktivt handelsområde

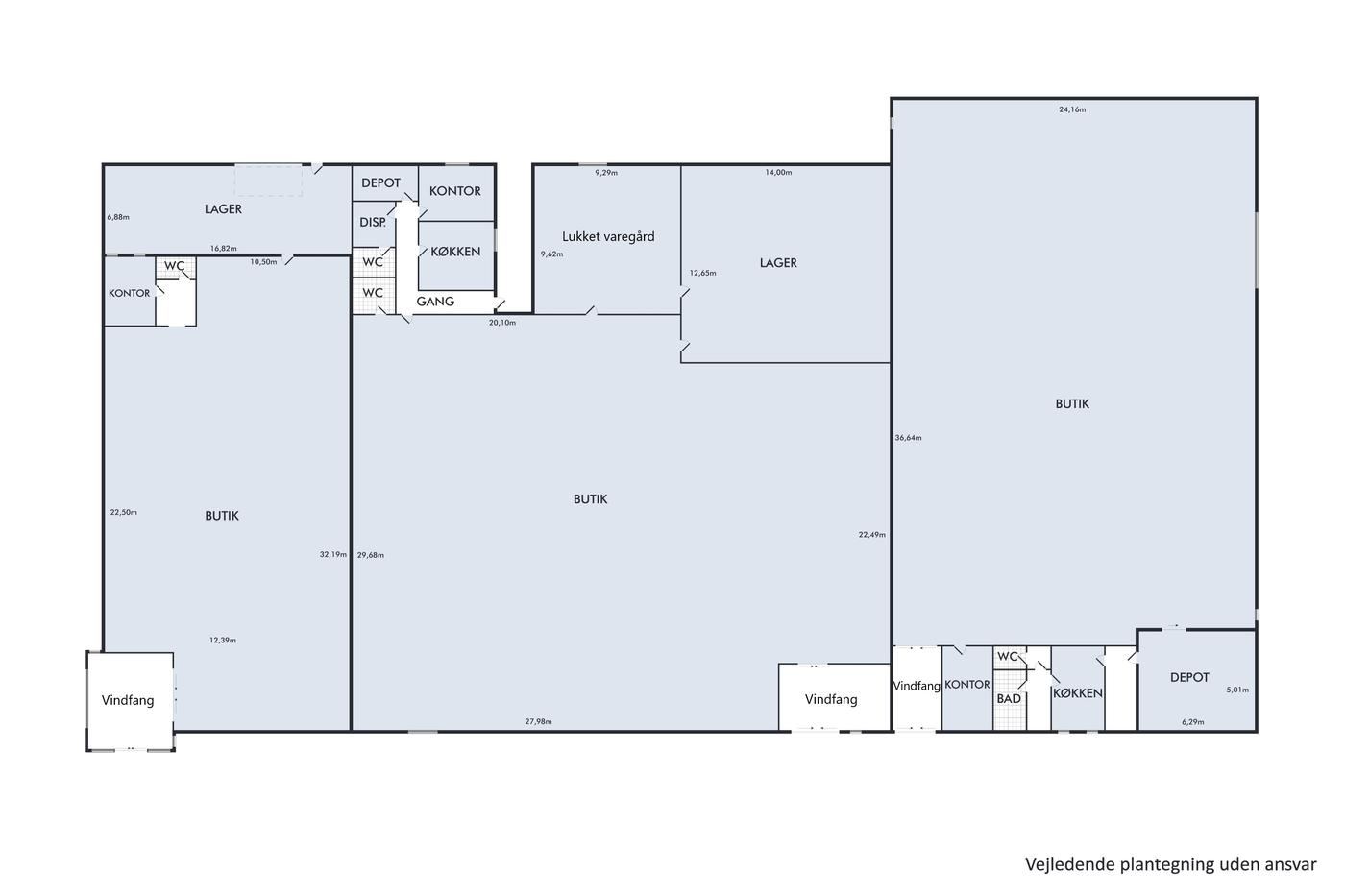
Det samlede lejemål består på nuværende tidspunkt af 3 separate lejemål. To af lejemålene som tidligere er udlejet til thansen og JYSK er ledige, mens det sidste lejemål, udlejet til Jem & Fix, forventeligt vil blive ledigt februar 2026.

Samlet andrager lejemålet 3.016 m² boksbutik med tilhørende kunde- og personalefaciliteter, lagerarealer, samt 740 m² lukket og indhegnet varegård.

Udlejer er indstillet på at udleje det hele samlet. En samlet udlejning og dermed sammenlægning af de 3 lejemål skal drøftes nærmere lejer og udlejer imellem.

Lejemålenes nuværende indretning består af store åbne salgsarealer med loft til kip med ovenlysvinduer, der sikrer et godt naturligt lysindfald. I forlængelse af salgsarealener er der adgang til lager, varegårde samt personalefaciliteter, der består af frokoststuer, kontorer og toiletter.

Lejemålet er beliggende i større handelsområde med naboer som Føtex, Rema 1000, PureGym, Asia Restaurant, Kirkens Korshær, Nyborghallerne m.fl.

Foran ejendommen forefindes mange gratis parkeringspladser.

For yderligere information om lejemålet og dets muligheder, kontakt Nordicals Odense.

Læs mere

Vil du vide mere?

Simon Vinther Blach

svb@nordicals.dk

+4523111988

Kongensgade 27, 1. sal, 5000 Odense C

+4566138060

5000@nordicals.dk

Besøg vores mæglerside

Lignende ejendomme

Til top