Lille Kongegade 2B, st. tv.
5800 Nyborg

Sagsnr. 31127

Ejendomstype

Etageareal

Energiklasse

105 m²

F

Årlig leje

Leje pr. m²

Depositum

73.500 kr.

700 kr.

36.750 kr.

Synligt beliggende butikslejemål nær gågade

Charmerende butikslokale i flot bevaringsværdig bygning synligt beliggende i et af Nyborgs trafikerede områder - i umiddelbar nærhed af byens gågade samt det eftertragtede havnemiljø.

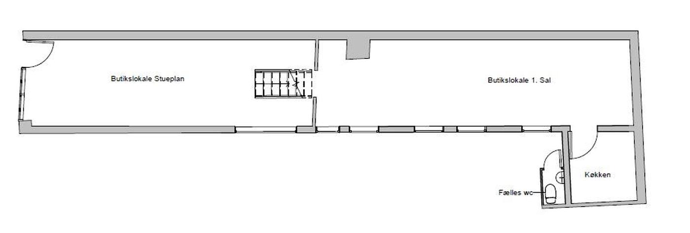
Lejemålet er beliggende i stueetagen i den flotte og velholdte hjørneejendom, og er indrettet som butikslokale. Herfra er der trappe op til butikslokale eller kontor som er beliggende på 1. sal. Endvidere er der lille thekøkken og fælles toilet. Fra køkken er der adgang til loftet, som kan bruges til opbevaring.

Lokalet har tidligere været udlejet til en helsebutik samt kontor, hvor butikken er flyttet i nye lokaler i samme ejendom.

Lejemålet kan overtages nymalet.

Læs mere

Vil du vide mere?

Peter Aagaard Nielsen

pan@nordicals.dk

+45 2347 4476

Kongensgade 27, 1. sal, 5000 Odense C

+4566138060

5000@nordicals.dk

Besøg vores mæglerside

Lignende ejendomme

Til top