Vestergade 32
5800 Nyborg

Sagsnr. 29513

Ejendomstype

Etageareal

Grund

Energiklasse

115 m²

6.000 m²

F

Årlig leje

Leje pr. m²

Depositum

Årlig driftsudgift

Årlig driftsudgift pr. m²

86.250 kr.

750 kr.

43.125 kr.

7.390 kr.

64 kr.

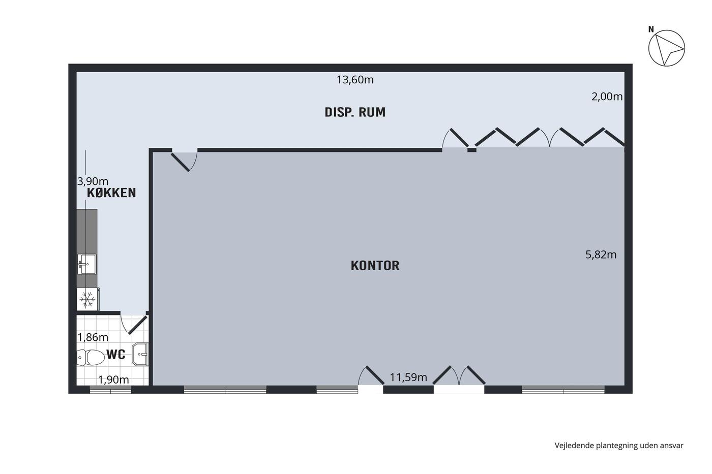
Flot kontor/kliniklokale med stor synlighed

Flot kontorlokale i pæn bygning, med stor facade mod Vestergade.

Her er mulighed for at indrette et flot kontormiljø eller klinik i stor markant ejendom. Lejemålet ligger blandt liberalt erhverv, butikker samt kliniklejemål og har derfor mange anvendelsesmuligheder.

Lokalet er p.t. indrettet med storrumskontor, personalekøkken, toilet og print/depotrum.

Der er mulighed for parkering foran ejendommen.

Læs mere

Vil du vide mere?

Christopher Bøje

cbo@nordicals.dk

+4551271918

Kongensgade 27, 1. sal, 5000 Odense C

+4566138060

5000@nordicals.dk

Besøg vores mæglerside

Lignende ejendomme

Til top