Enebærvej 3
5853 Ørbæk

Sagsnr. 71190-6

Ejendomstype

Etageareal

Grund

Energiklasse

230 m²

832 m²

D

Investerings-/projektejendom

Ejendommen er en rummelig investerings-/projektejendom beliggende i et godt boligområde i Ørbæk by.

Ejendommen har hidtil været anvendt som institutionsejendom, men skønnes relativ let at kunne ombygges til beboelseslejligheder.

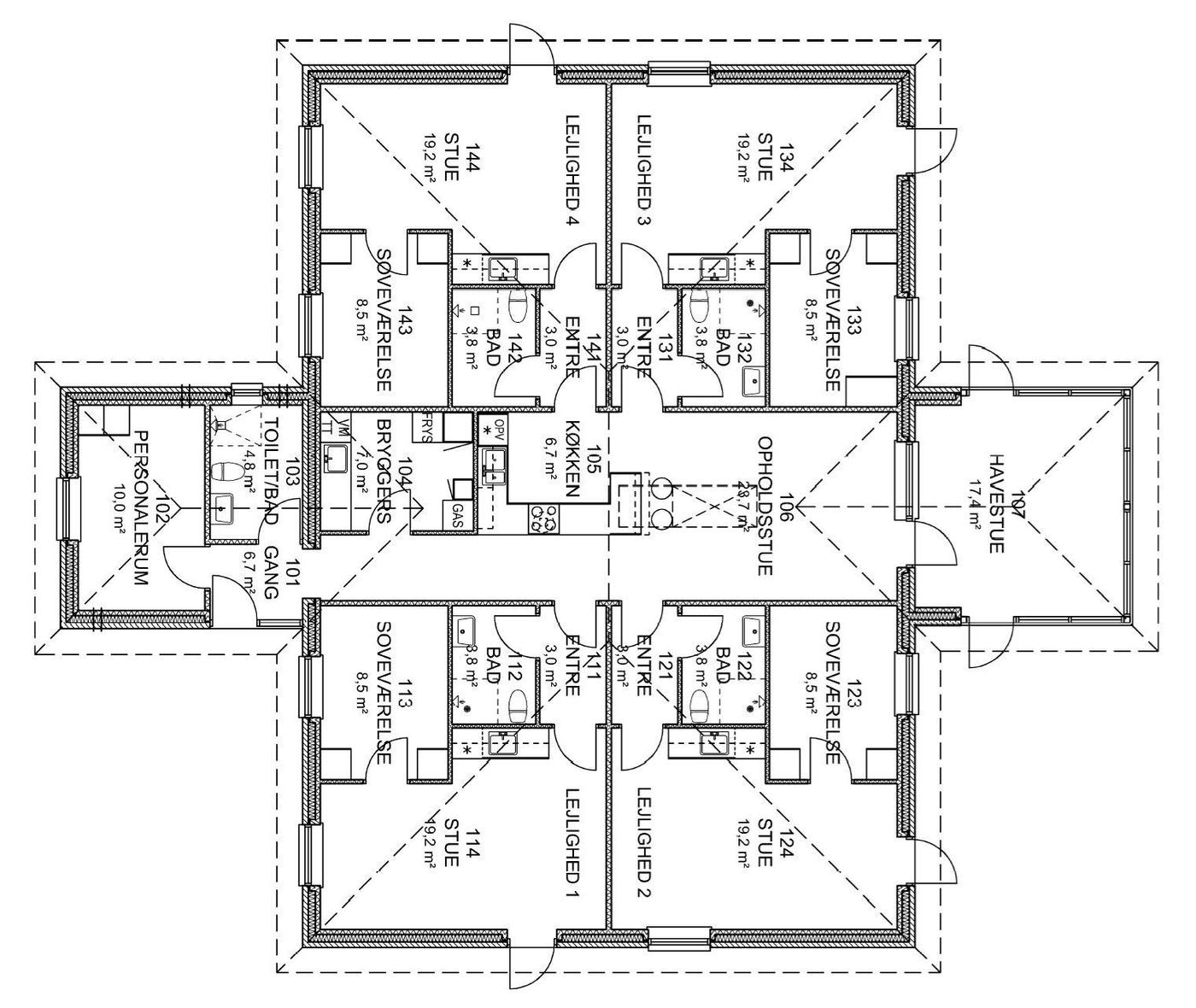
Ejendommen er indrettet med stort køkken/alrum med adgang til 4 mindre lejligheder.

Lejlighederne består af entre, badeværelse med brus, stue og soveværelse.

Endvidere findes fælles bryggers samt personalerum og personalebadeværelse.

Fra køkken/alrummet er der udgang til en stor havestue.

Se vedhæftet plantegning for yderligere indretning.

Omkring ejendommen findes lukket have udlagt med græs. Der er udgang til lille terrasse fra hver af de 4 lejligheder. Der er etableret depotrum til hver af lejlighederne.

Ejendommen er ledig til købers disposition.

Læs mere

Denne ejendom er solgt

Vil du vide mere?

Ulrich Nielsen

uni@nordicals.dk

+4520267090

Vestergade 165, 5700 Svendborg

+4563217090

5700@nordicals.dk

Besøg vores mæglerside

Lignende ejendomme

Til top