Ryttervænget 2, m.fl.
5900 Rudkøbing

Sagsnr. 75257-6

Ejendomstype

Etageareal

Grund

8.876 m²

19.920 m²

Årlig leje

Leje pr. m²

1.809.375 kr.

204 kr.

Produktion/Lager/Kontor

Her er mulighed for at leje regulære produktions-, lager- og kontorlokaler i erhvervsområdet i Rudkøbing. Ejendommen ligger ud til omfartsvejen og har dermed en synlig beliggenhed.

Den ubebyggede del af grunden er overvejende asfalteret og der er særdeles gode tilkørselsforhold for lastbiler.

Lejemål 1 (Produktion/lager - 1.200 m²):
Isoleret stålprofilhal på ca. 1.200 m² med støbt gulv. Hallen har en frihøjde i siden på ca. 4 meter og ca. 6,5 meter til kip, og er velforsynet med aluhejseporte. I hallen er indrettet et mindre lager/produktionslokale. Herudover findes kontor, teknikrum/depot, samt toiletter og mulighed for bad. Lejemålet opvarmes med kaloriferevarme. På den ene side af bygningen findes et overdækket læsseareal på ca. 150 m², samt læsserampe.

Årlig leje pr. m² kr. 250,00 + moms.

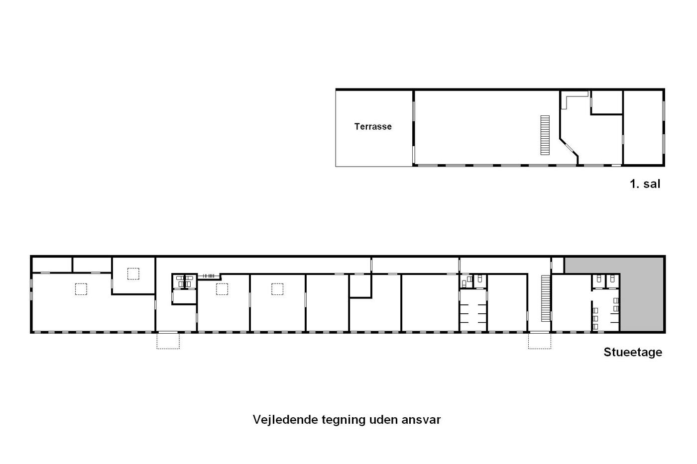
Lejemål 3 (Kontor - 650 m²):
Velindrettede lyse kontorlokaler på ca. 650 m². Lejemålet indeholder indgangsparti med toiletter, stort åbent kontorlokale med plads til ca. 8 arbejdspladser, mødelokale, 3 sammenhængende kontorer, chefkontor, depotrum samt omklædnings- og baderum. På 1. sal findes stort showroom med udgang til tagterrasse, kantine, mødelokale samt depotrum. De indvendige vægge på 1. sal er lette skillevægge og ruminddelingen kan derfor ændres efter nærmere aftale.

Lokalerne fremstår lyse og moderne og overtages nyistandsatte med nymalede vægge, nylakerede gulve i hele lejemålet samt nye lyskilder på 1. sal.

Der er gode parkeringsforhold lige udenfor lejemålet.

Lejemålet kan lejes i sin helhed eller opdeles efter nærmere aftale.

Årlig leje pr. m² kr. 300,00 + moms.

Lejemål 4 (Produktion/lager - 5.213 m²):
Regulær højtloftet produktionshal på ca. 5.213 m². Hallen er forsynet med ovenlys og der er en frihøjde på ca. 5,5 meter under spær. Hallen er velforsynet med aluhejseporte i begge sider. Mod øst er der etableret portsluse. Portslusen andrager ca. 700 m² og medfølger uden beregning, såfremt hallen lejes i sin helhed.

Ejeren har for nylig installeret et ABA-anlæg i lejemålet.

Lejemålet opvarmes ved kaloriferevarme.

Årlig leje pr. m² kr. 175,00 + moms.

Lejemål 5 (Produktion/lager - 1.655 m²):
Regulær højtloftet produktionshal på ca. 1.655 m². Hallen er forsynet med ovenlys og der er en frihøjde på ca. 5,5 meter under spær.

Årlig leje pr. m² kr. 200,00 + moms.

Lejemål 6 (Produktion/lager - 771 m²):
Regulær højtloftet produktionshal på ca. 771 m². Hallen er forsynet med ovenlys og der er en frihøjde på ca. 4 meter i siderne og ca. 7,5 meter til kip.

Lejemålet er rigt forsynet med porte.
Der er 8 manuelle porte på ca. 3 x 4 meter i siderne og i gavlen findes elektrisk port på ca. 5 x 5 meter.
Gulvet er belagt med asfalt. Lejemålet forsynes med el, der er ikke vand, varme eller afløb.

Årlig leje pr. m², kr. 125,00 + moms.

Lejemål 7 (Produktion/lager - 600m²):

Regulær højtloftet produktionshal på ca. 600 m². Hallen er forsynet med ovenlys og der er en frihøjde på ca. 6,5 meter til kip.

Hallen er velforsynet med aluhejseporte og der er opført toiletkerne midt i hallen.
Lejemålet opvarmes ved kalorifeanlæg.

Lejemålet forventes ledigt ved udgangen af Januar 2026.

Årlig leje pr. m² kr. 200,00 + moms.


Lejemål 8 (Kontor - 158 m²):
Mindre fritliggende administrationsbygning på 158 m². Bygningen er indrettet med 6 lyse kontorer, receptionsafsnit, fordelergang, tekøkken, 2 toiletter samt kopi- og lagerrum.

Den ubebyggede del af grunden er belagt med SF-sten. Herudover findes mindre haveareal foran bygningen, som lejer selv skal påregne vedligeholdelse af.

Bygningen er synligt beliggende ud til Schnohrsvej og har egen parkeringsplads.

Årlig leje pr. m² kr. 450,00 + moms.

Såfremt der aftales opdeling af lejemålene, må lejer forvente øgede krav til binding og lejebetaling.

Læs mere

Vil du vide mere?

Ulrich Nielsen

uni@nordicals.dk

+4520267090

Vestergade 165, 5700 Svendborg

+4563217090

5700@nordicals.dk

Besøg vores mæglerside

Lignende ejendomme

Til top