Albuen 5D
6000 Kolding

Sagsnr. 203873

Ejendomstype

Etageareal

Grund

Energiklasse

1.179 m²

13.399 m²

D

Årlig leje

Leje pr. m²

Depositum

Årlig driftsudgift

Årlig driftsudgift pr. m²

825.300 kr.

700 kr.

412.650 kr.

141.480 kr.

120 kr.

Attraktivt beliggende butikslejemål med stor synlighed

Albuen 5D, Kolding er beliggende med facade direkte ud til Vejlevej og over mod Kolding Storcenter.

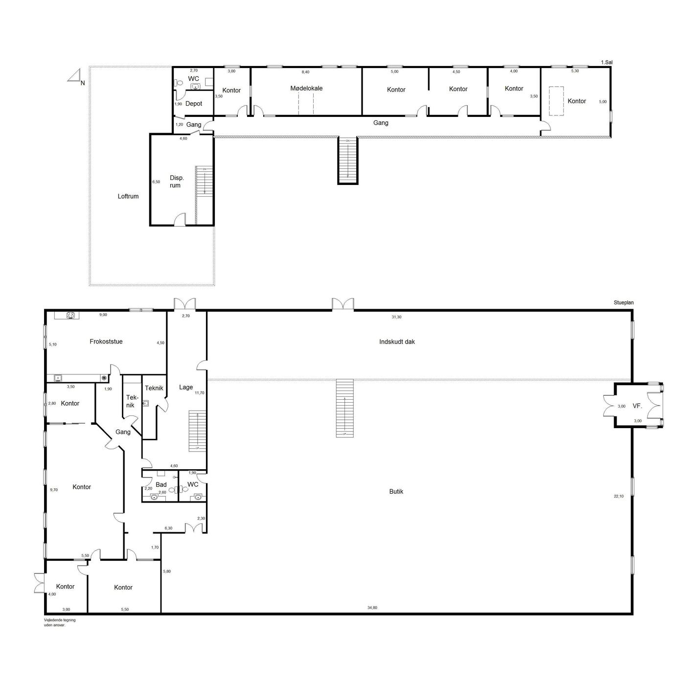
Lejemålet er i alt 1.179 m², hvoraf 749 m² er regulær butik, dertil kommer 430 m² kontor og velfærd. Lejemålets indskudte dæk er yderst velegnet som mødelokale eller kontor, som man kan tilgå via trappen fra butikslokalet i stueetagen. I stueetagen er lejemålet indrettet med et regulært butiksareal. Herudover er der tilhørende personale- og toiletfaciliteter.

Ejendommen er opført som elementbyggeri, så lejemålet er fleksibelt i forhold til udformning, og giver således gode muligheder for at tilpasse indretningen efter lejers behov og ønsker, i samarbejde med udlejer.

Der tilbydes attraktiv trappeleje de første 2 år, før basislejen opnås i år 3:
- Årlig leje i år 1 er kr. 825.300
- Årlig leje i år 2 er kr. 943.200
- Årlig leje i år 3 er kr. 1.071.500
Det er ligeledes muligt at købe ejerlejligheden. Kontakt os for nærmere information herom.

Lejemålet har en god og ikke mindst attraktiv beliggenhed i en veletableret retailpark bestående af 19 stærke butiksnavne som naboer og gode parkeringsforhold lige ved døren. Albuen 5D har en optimal infrastruktur med enestående let tilgængelighed fra såvel motorvejsnettet som de større lande- og indfaldsveje i området. Til- og frakørslen til motorvej E20 og E45 ligger få kilometer fra lejemålet.

Området ved Vejlevej og Kolding Storcenter passeres dagligt af over 20.000 bilister, hvorfor denne markante placering gør lejemålet yderst attraktivt. Kolding Storcenter har over 6 mio. årlige besøgende, og området trækker alene i kraft af det store udbud, kunder fra et meget stort opland i Øst- og Sønderjylland.

Denne retailpark danner rammen om flere stærke detailnavne, og med gratis parkeringspladser ved døren, har du her optimale og gode rammer for at etablere din virksomhed. Nabolejere: Fri BikeShop, KVÄNUM, JOBO, Hobbii, JKE, Multiform, Kolding Pejsecenter, Alm. Brand, LOOP, Design Cykler, AUBO Køkken & Bad, INVITA, Svane Køkken, Golf Experten, Jagt & Fritid, Børne Loppen, Designa, KVIK, HÖÖKS, m.fl.

Læs mere

Vil du vide mere?

Jon Stefansen

jon@nordicals.dk

+4542737400

Birkemose Allé 37A, 1. sal, 6000 Kolding

+4576310160

6000@nordicals.dk

Besøg vores mæglerside

Lignende ejendomme

Til top