Essen 39
6000 Kolding

Sagsnr. 206958

Ejendomstype

Etageareal

Energiklasse

1.020 m²

B

Årlig leje

Leje pr. m²

Depositum

Årlig driftsudgift

Årlig driftsudgift pr. m²

570.000 kr.

559 kr.

285.000 kr.

111.238 kr.

109 kr.

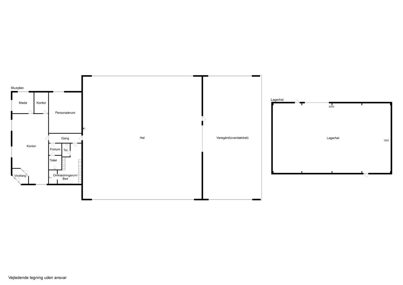
Fleksibelt lejemål med lager og kontor

Dette lejemål tilbyder en attraktiv kombination af lager- og kontorfaciliteter i Koldings sydlige erhvervsområde, kun få minutters kørsel fra E45. Med et samlet areal på 1.020 m² fordelt på to bygninger, er ejendommen ideel til virksomheder med behov for effektiv logistik og administration under samme tag.

Bygning 1 (780 m²) rummer både lager og ca. 180 m² moderne kontorarealer med møderum, kantine og lyse arbejdspladser. Lagerdelen har høj loftshøjde, gode adgangsporte og fleksible opbevaringsmuligheder.

Derudover er der etableret 40 m² kontor i forbindelse med lageret.

Bygning 2 (240 m²) er opført i 2023 og fremstår som en funktionel lagerhal med stor port og nem adgang for vareleverancer. Denne hal er uopvarmet.

Ejendommen ligger på en 3.200 m² grund med stor befæstet plads, der giver optimale tilkørselsforhold for lastbiler og rigelig parkering til medarbejdere og gæster.

Med sin centrale placering, solide konstruktion og fleksible indretning er Essen 39 oplagt for virksomheder inden for handel, distribution, produktion eller service, der ønsker en ejendom med plads til vækst og nem adgang til motorvejsnettet.

Læs mere

Vil du vide mere?

Henrik Lundsgaard Nielsen

hln@nordicals.dk

+4540179090

Birkemose Allé 37A, 1. sal, 6000 Kolding

+4576310160

6000@nordicals.dk

Besøg vores mæglerside

Lignende ejendomme

Til top