Kokbjerg 29B
6000 Kolding

Sagsnr. 206412

Ejendomstype

Etageareal

Energiklasse

2.361 m²

C

Årlig leje

Leje pr. m²

Depositum

Årlig driftsudgift

Årlig driftsudgift pr. m²

1.809.395 kr.

766 kr.

904.698 kr.

247.905 kr.

105 kr.

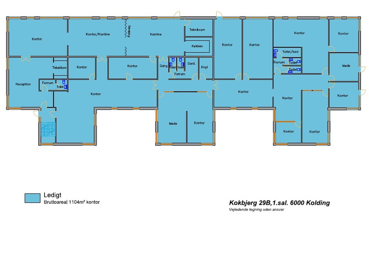
Kontor/showroom med mindre lager i Kolding Nord

Flot lejemål i velholdt ejendom i Kolding Nord. Beliggende på Kokbjerg nær Højvangen og motorvej E20 med adgang til motorvejsnettet i alle retninger.
Området er et meget efterspurgt erhvervsområde i Kolding grundet beliggenheden.

Lejemålet har gode parkeringsforhold hele vejen rundt om bygningen.

Præsentabelt indgangsparti, ind til kontorlokalerne, som er med bl.a. trægulv, troldtekt lofter og godt lysindfald fra store gulv til loft vinduer.

Lejemålet består af en kombination af større kontorlokaler samt enkeltmands kontorer, mødelokaler m.v. Dertil mindre lager samt kantineforhold.
Lejemålet kan ligeledes entreres fra bagsiden af bygningen.
Der er etableret ventilationsanlæg i lejemålet, der sikrer et godt indeklima året rundt.

Læs mere

Vil du vide mere?

Jon Stefansen

jon@nordicals.dk

+4542737400

Birkemose Allé 37A, 1. sal, 6000 Kolding

+4576310160

6000@nordicals.dk

Besøg vores mæglerside

Lignende ejendomme

Til top