Kokholm 3A, st.th., Syd
6000 Kolding

Sagsnr. 20495809

Ejendomstype

Etageareal

Energiklasse

794 m²

A2015

Årlig leje

Leje pr. m²

Depositum

Årlig driftsudgift

Årlig driftsudgift pr. m²

1.024.641 kr.

1.290 kr.

512.321 kr.

268.800 kr.

339 kr.

Kontorlejemål i topmoderne og indbydende kontorhus

TradeCity Kolding er et topmoderne og indbydende kontorhus centralt beliggende i Kolding Nord. Her kan din virksomhed få alt hvad der er brug for, til at få din virksomhed til at trives.
Der er kontorlejemål til både små og store virksomheder. Udlejer tilpasser eller hjælper gerne med at indretter lejemålene specifikt til den enkelte virksomhed, så lejemålet bliver så optimalt som muligt. Og det endda med en attraktiv økonomisk frihed, der giver mulighed for til stadighed, at koncentrere indsatsen omkring drift og udvikling af egen virksomhed.
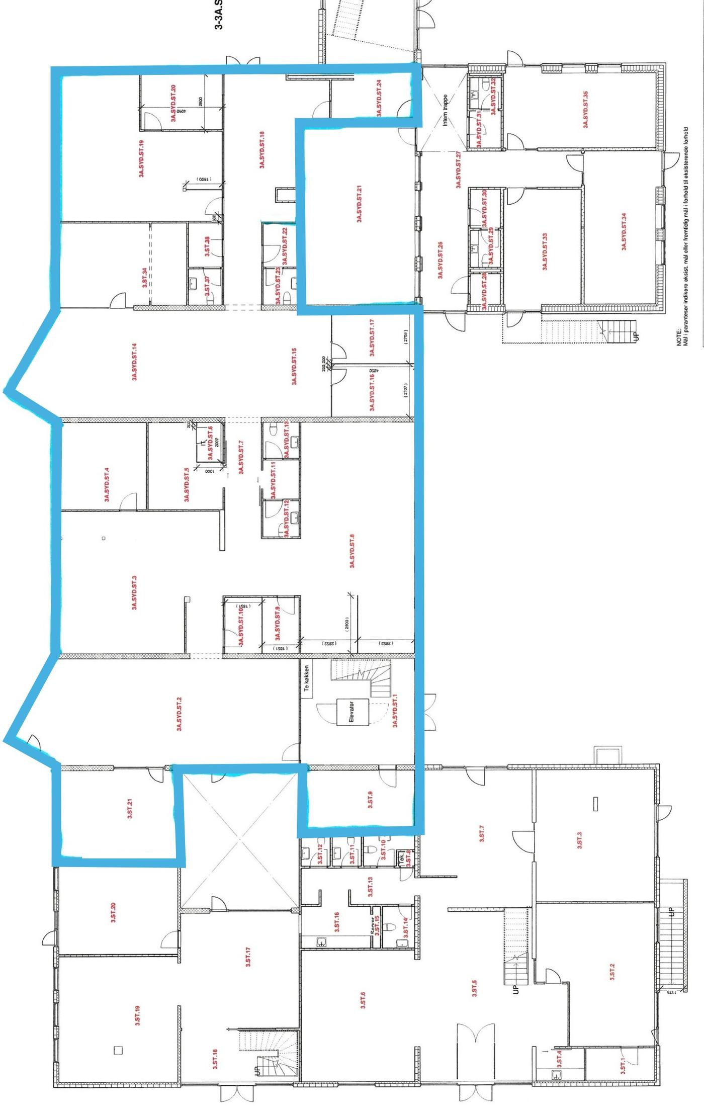
I TradeCity Kolding tilbydes et top moderne lejemål på i alt 794 m² beliggende centralt i bygningskomplekset. Lejemålet er perfekt til en organisation med 45-55 medarbejdere afhængig af jobfunktioner. Lyse kontorer i forskellige størrelser og flot entre giver gode indretnings muligheder og god plads til medarbejderne. Til lejemålet hører foruden egne kontorer og mødelokaler også egne toiletter samt IT/teknik/ printer/mv. rum.
Lejer betaler for 794m², men har adgang og brugsret til yderligere 1.527 m² fællesareal - så i alt råder lejer over mere end 2.321 m², i et moderne, indbydende og geografisk perfekt placeret kontorhus og adgang til følgende funktioner:
- Gode parkeringsforhold til personale og gæster
- Indbydende ankomst & adgangsforhold samt elevator
- Fuldservice og forplejningsløsning i:
- Professionel Café og personale restaurant med "To Go - service", ude & inde områder
- Veludstyret mødecenter med lokaler i mange størrelser og opstillinger
- Indbydende Konferencecenter med professionelt AV-udstyr og god mødelogistik

Komplet ejendomsservice pakke med:
- Vagtordning, alarmsystem, adgangskort og videoovervågning
- Site manager, rengøringsservice, planteservice, m.v.
- Vedligehold af fællesarealer udvendig og indvendig
- Post og pakkeordning. Frit WIFI i alle fællesområder
- Genbrugsordning/affaldssortering og lav CO2 udledning
- Fokus på den grønne profil hele vejen igennem. Bl.a. el lade standere til elbiler.
I TradeCity arbejdes der aktivt med energioptimering,alle tænkelige og mulige stordriftsfordele, miljøbevidsthed, madspild, bæredygtighed og høj brugertilfredshed - alt sammen til gavn for alle husets lejere.
Mulighed for benyttelse af TradeCitys Café/personalerestaurant og fælles mødefaciliter.
Mulighed for at deltage i fælles optimal rengøringsløsning.
Lejer er født medlem af Lejerforeningen der bestemmer over husets serviceniveau.

Læs mere

Vil du vide mere?

Henrik Lundsgaard Nielsen

hln@nordicals.dk

+4540179090

Birkemose Allé 37A, 1. sal, 6000 Kolding

+4576310160

6000@nordicals.dk

Besøg vores mæglerside

Lignende ejendomme

Til top