Saturnvej 11
6000 Kolding

Sagsnr. 206802

Ejendomstype

Etageareal

Energiklasse

1.515 m²

A2010

Årlig leje

Leje pr. m²

Depositum

Årlig driftsudgift

Årlig driftsudgift pr. m²

818.250 kr.

540 kr.

409.125 kr.

110.000 kr.

73 kr.

Moderne domicilejendom med kontor og produktion

Der er trappeleje de første 6 måneder, hvor den månedlige leje udgør kr. 68.188,- + moms. Herefter udgør den månedlige leje kr. 94.963,- + moms.

Lejemålet byder på en præsentabel og funktionel indretning, der kombinerer kontor- og produktionsfaciliteter i høj kvalitet. Ejendommen har et markant arkitektonisk udtryk med grøn tagløsning og store glaspartier, der giver et lyst og indbydende miljø.

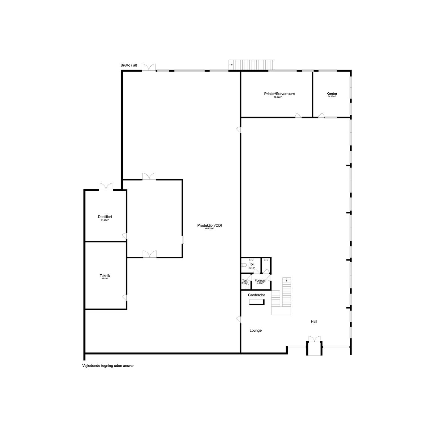
Stueplan
Indgangen sker via et flot glasindgangsparti til en rummelig reception, der skaber et professionelt førstehåndsindtryk. Herfra er der adgang til et åbent storrumskontor, flere mødelokaler samt fleksible kontorarealer, der kan tilpasses efter behov. Materialevalget er moderne med kombination af tæpper og stenbelagte gulve.

I bygningens anden del findes et produktionsområde med stor loftshøjde, epoxybehandlede gulve, gulvvarme og udsugningssystemer. Området har flere separate rum til tekniske installationer og kan tilgås både indefra og via portadgang udefra.

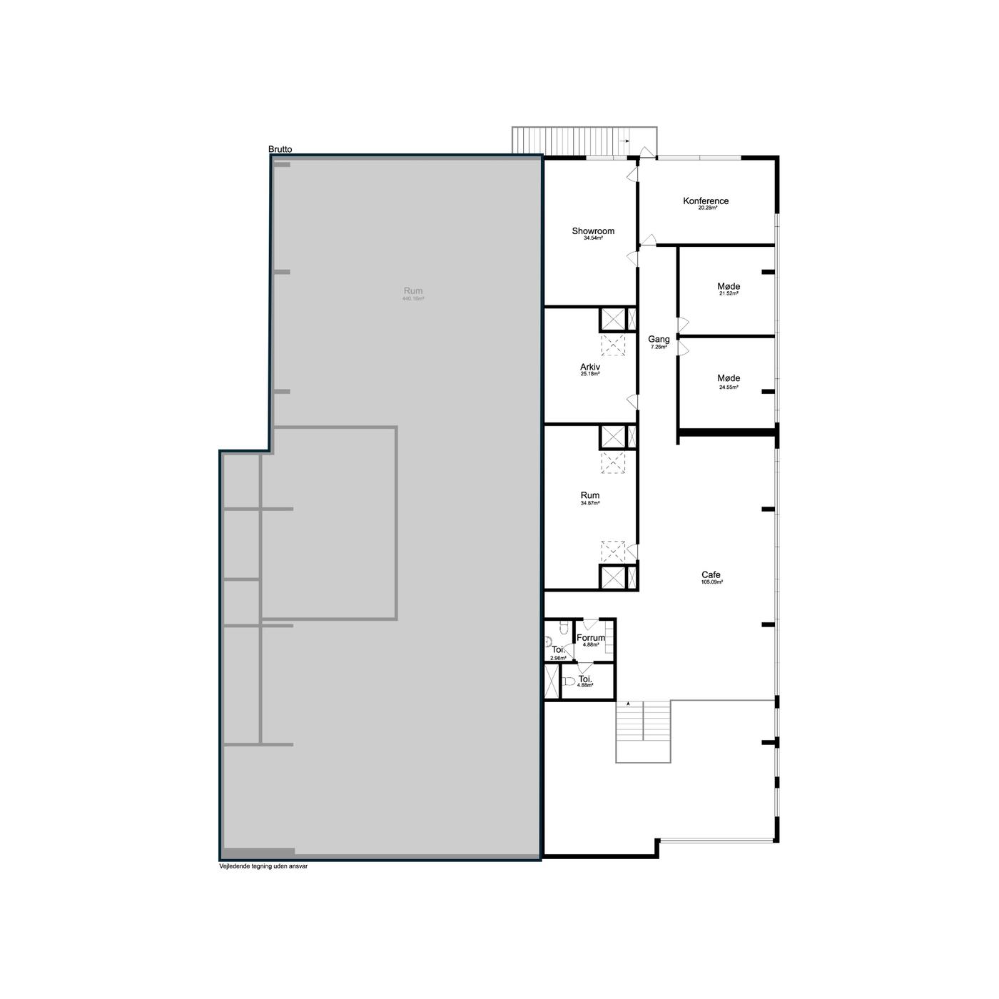
1. sal
Fra receptionen fører en trappe til 1. sal, hvor der er en stor, lys kantine med tilhørende velfærdsfaciliteter samt yderligere mødelokaler.

Faciliteter og udenomsarealer
Ejendommen har tidssvarende toiletforhold på begge etager, gode parkeringsmuligheder og grønne udearealer. Tilkørsel er nem, og der er mulighed for udvidelse af lejemålet på sigt.

Denne ejendom er ideel for virksomheder, der ønsker at samle administration og produktion i en moderne og repræsentativ ramme.

Læs mere

Vil du vide mere?

Jon Stefansen

jon@nordicals.dk

+4542737400

Birkemose Allé 37A, 1. sal, 6000 Kolding

+4576310160

6000@nordicals.dk

Besøg vores mæglerside

Lignende ejendomme

Til top