Trianglen 8B
6000 Kolding

Sagsnr. 206832

Ejendomstype

Etageareal

750 m²

Årlig leje

Leje pr. m²

Depositum

Årlig driftsudgift

Årlig driftsudgift pr. m²

487.500 kr.

650 kr.

243.750 kr.

59.500 kr.

79 kr.

Fleksibelt lejemål i Kolding Nord

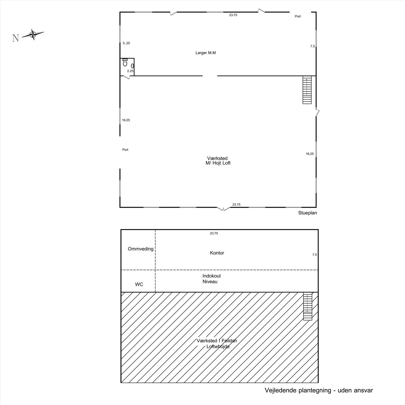
Trianglen 8B tilbyder et alsidigt lejemål med en attraktiv beliggenhed i Kolding Nord - et område kendt for sin gode infrastruktur og erhvervsvenlige profil. Ejendommen er opført i stålprofilplader med store facadevinduer, der giver et moderne udtryk og et lyst arbejdsmiljø.

Lejemålet er indrettet med en rummelig hal med god loftshøjde, ideel til showroom, lager eller værkstedsfunktion. Forreste del af lokalet har imponerende lysindfald fra ovenlys og store vinduespartier, hvilket skaber en præsentabel ramme for kunder og medarbejdere. Cirka en tredjedel af arealet har indskudt dæk med kontorfaciliteter på 1. sal, herunder mødelokaler, personalerum og køkken.

Der er flere porte, som sikrer nem adgang for varelevering og tilkørsel. Udenomsarealet giver gode parkeringsmuligheder for både medarbejdere og besøgende. Ejendommen er en del af et erhvervskompleks med tre næsten ens bygninger, hvilket skaber et professionelt miljø med plads til vækst.

Med placeringen tæt på motorvejskrydset i Kolding Nord er lejemålet oplagt til virksomheder, der ønsker en synlig og central placering i Trekantområdet. Mulighederne er mange - kontor, lager, showroom, salgslokale eller bilforhandler - kun fantasien sætter grænser.

Læs mere

Vil du vide mere?

Jon Stefansen

jon@nordicals.dk

+4542737400

Birkemose Allé 37A, 1. sal, 6000 Kolding

+4576310160

6000@nordicals.dk

Besøg vores mæglerside

Lignende ejendomme

Til top