Bispegade 2, st.
6100 Haderslev

Sagsnr. 431912-1

Ejendomstype

Etageareal

Energiklasse

250 m²

C

Årlig leje

Leje pr. m²

Depositum

180.000 kr.

720 kr.

90.000 kr.

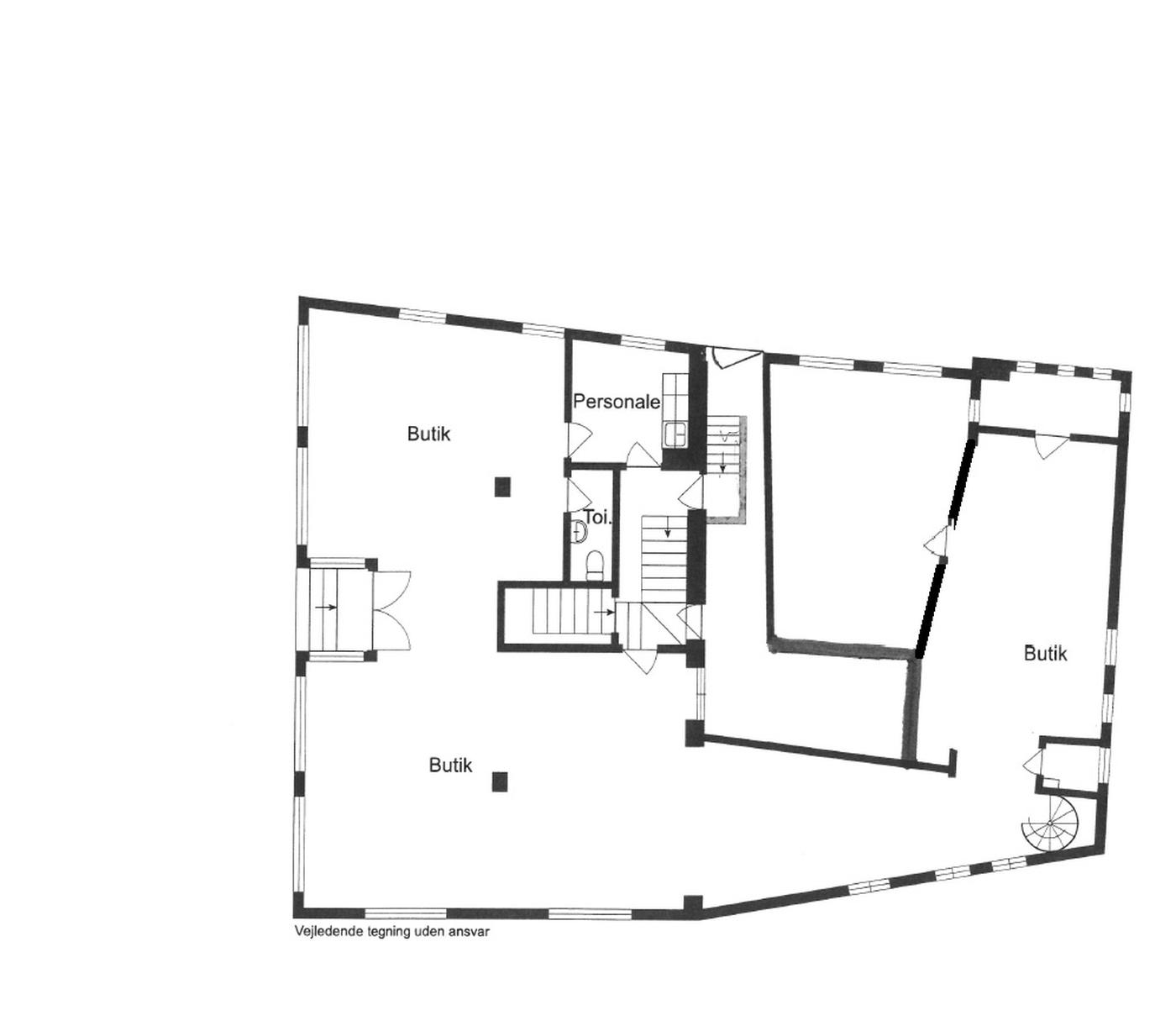
Flot butikslokale med store udstillingsvinduer mod gågaden

Her kan du etablere din butik, klinik eller noget helt andet og få en super god synlighed. Helt tæt på Domkirken ligger Bispegade 2, som er en ældre og meget flot bygning i bybilledet.

Store udstillingsvinduer mod gågaden sikrer, at dine varer bliver set af de mange forbipasserende. Der er ligeledes indgang og udstillingsmuligheder mod Smedegade, hvor der også er mulighed for udstilling på gaden.

Bispegade 2 er en smuk hjørneejendom, som giver gode muligheder for både at have butik, café eller måske en kombination af begge dele.

Lejemålet er istandsat og moderniseret inden for de senere år, hvor lageret også er gjort lidt mindre i selve butikslokalet. Der er således 2 sammenhængende lokaler, frokostrum og toilet. Automatiske markiser på bygningens facade.

Dejligt lyst erhvervslokale med mange muligheder og på en rigtig god placering i Haderslevs gågade.

Der er desuden mulighed for nyopstartede virksomheder for at opnå en nedsat startleje efter nærmere aftale.

Læs mere

Vil du vide mere?

Lene Marie Hansen

lmh@nordicals.dk

+4548808434

Storegade 88, st, 6100 Haderslev

+4574532900

6100@nordicals.dk

Besøg vores mæglerside

Lignende ejendomme

Til top