Finlandsvej 12A+12B
6100 Haderslev

Sagsnr. 437313

Ejendomstype

Etageareal

4.047 m²

Årlig leje

Leje pr. m²

Depositum

Årlig driftsudgift

Årlig driftsudgift pr. m²

1.332.125 kr.

329 kr.

666.063 kr.

108.535 kr.

27 kr.

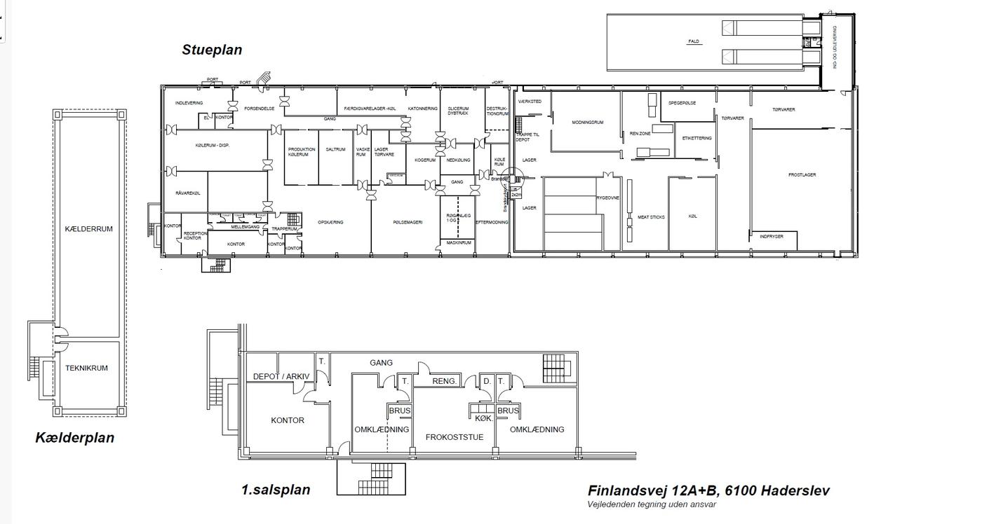
Velholdt erhvervsejendom til fødevareproduktion

Tidligere produktionsfaciliteter for Hanegal - velegnet til fødevareindustri.

Denne velindrettede erhvervsejendom er ideel til virksomheder inden for fødevareproduktion. Ejendommen har i mange år huset produktionen af Hanegals økologiske sortiment og er derfor udstyret med de nødvendige faciliteter til fødevareforarbejdning. Her er produktionsfaciliteter med bl.a. køle - og fryselager, røgovne, modningsrum mm.

Bygningen er opført som en jernbetonkonstruktion med loftshøjde ca. 6,5 meter. Facaderne er med stålprofilplader i sort/grå som beklædning, hvide aluvinduer. Ejendommen fremstår præsentabel udefra.

Ejendommen er delvist moderniseret og fremstår med glatte lofter og opdaterede installationer i den nyeste del og en lidt ældre del af ejendommen, som let kan opdateres.

Indrettet med flot indgangsparti i stål og glas, der giver adgang til 1. sal og stueplan. Begge etager anvendes til administration - kontor, møde - og personalerum med kantine og køkken samt omklædningsrum mm.

De øvrige rum i stueplan er indrettet til kødproduktion, hvoraf de fleste tilvirkningsrum

har køl eller posekøl, lagerrum med køl og røgerum samt varemodtagelsesrum med portadgang

fra ejendommens nordlige side.

Den resterende del af bygningen er et stort højloftet lagerrum med anvendelse til såvel almindelig lagerkapacitet som frysekapacitet. Loftshøjden er god, således at der er mulighed for at have reoler med 4 niveauer. I fortsættelse af dette regulære lagerrum er der, som tilbygning, et rum med 2 sluseporte med rampeadgang.

Beliggende i udkanten af Haderslev, i et særdeles attraktivt erhvervsområde, blot 5 km fra motorvej E45. Beliggenheden giver nem adgang til transport og distribution.

Dette er en oplagt mulighed for virksomheder, der søger funktionelle produktionsfaciliteter til fødevarer eller lignende erhverv, med en særdeles attraktiv beliggenhed.

Læs mere

Vil du vide mere?

Charlotte Halby Petersen

cha@nordicals.dk

+4561443945

Storegade 88, st, 6100 Haderslev

+4574532900

6100@nordicals.dk

Besøg vores mæglerside

Lignende ejendomme

Til top