Hiort Lorenzens Vej 59
6100 Haderslev

Sagsnr. 433682

Ejendomstype

Etageareal

Energiklasse

575 m²

D

Årlig leje

Leje pr. m²

Depositum

230.000 kr.

400 kr.

115.000 kr.

Regulært erhvervslejemål med mange anvendelsesmuligheder

Nu har du mulighed for at leje et rummeligt erhvervslokale på 575m². Ejendommen er opført i 1992 med solid murstensfacade og store vinduespartier i forbindelse med indgangspartiet. Foran ejendommen er
der en stor parkeringsplads.

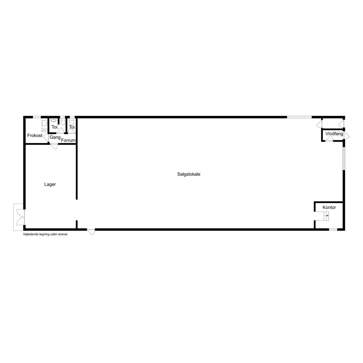
Indgang via vindfang til stort regulært lokale, mange meter væg til udstilling, lager eller lignende. Lille kontor og teknikrum. I modsatte ende er der lagerlokale og personalefaciliteter med kontor, tekøkken og toilet. God plads til opbevaring eller lignende - tidligere kølerum til dagligvarebutik.

Lejemålet overtages rydeligt og rengjort.

Anvendelsesmulighederne er flere og kan være indenfor detail, klinik og foreningslokaler, herunder fitness, second-hand butik m.fl.

Den praktiske indretning og fleksibiliteten i lokalet gør det til en attraktiv mulighed for mange typer erhverv.

Læs mere

Vil du vide mere?

Charlotte Halby Petersen

cha@nordicals.dk

+4561443945

Storegade 88, st, 6100 Haderslev

+4574532900

6100@nordicals.dk

Besøg vores mæglerside

Lignende ejendomme

Til top