Nørregade 15A
6100 Haderslev

Sagsnr. 430442

Ejendomstype

Etageareal

Energiklasse

676 m²

D

Præsentabelt erhvervslejemål

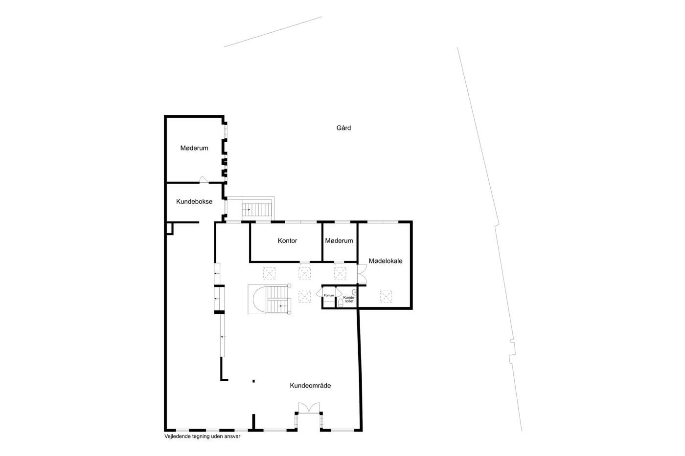
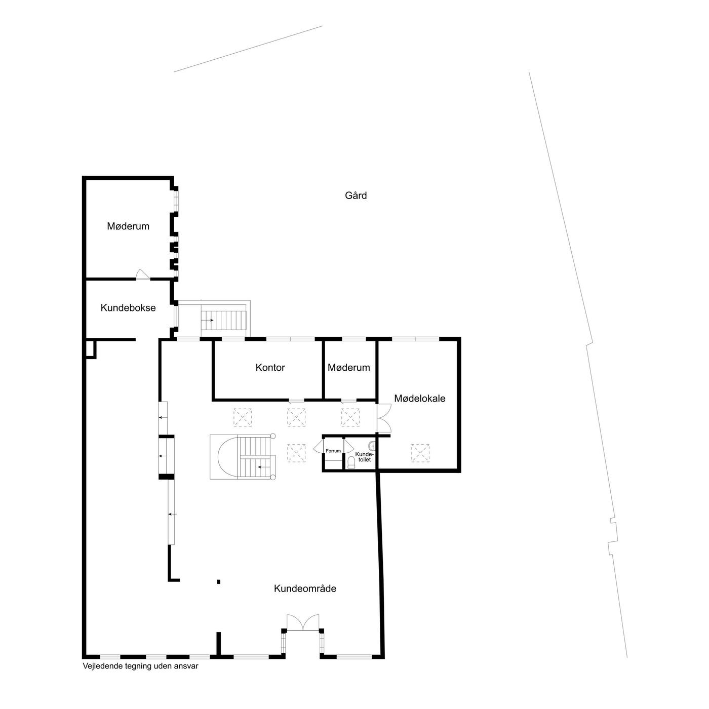
Stort, præsentabelt butikslejemål i historisk ejendom fra 1775 i Haderslev bymidte 100 meter fra domkirken. Lokalerne har hidtil været anvendt af Kreditbanken.

Med sin søjlebåret konstruktion har lejemålet meget fleksible indretningsmuligheder både som stort butikslokale, hvor nuværende vægge ryddes eller det kan skræddersys til klinik, liberale erhverv, resturation mv.

Lejemålet består af 368 m² areal i stueetagen med bred facade mod Nørregade. Der er ventilation og toiletfaciliteter i stueetagen og lokalet fremtræder lyst med ovenlysvinduer og facadevinduer både til gården og til Nørregade. Derudover omfatter lejemålet 308 m² parterre/underetage, som er forbundet med stueetagen via intern trappe. Underetagen er meget anvendelig til lager, showroom, møderum og personalefaciliteter. Etagen indeholder tillige køkken og bad. Der er direkte indgang fra gården.

I gården er der indrettet parkeringspladser, størstedelen af disse medfølger lejemålet.

Nørregade er en aktiv handelsgade med butikker, banker, restauration mv. Gaden ender ved torvet og domkirken og løber parallelt med gågaden.

Der er mange offentlige p-pladser i nærheden, hvorfor lejemålet er let tilgængeligt for kunder og ansatte.

Læs mere

Denne ejendom er udlejet

Vil du vide mere?

Lene Thiim Roelsen

ltr@nordicals.dk

+45 2091 0086

Storegade 88, st, 6100 Haderslev

+4574532900

6100@nordicals.dk

Besøg vores mæglerside

Lignende ejendomme

Til top